GA
Greenview Drive, East Didsbury
By Gascoigne Halman
£ 415,000
Reviews
3 out of 5 stars
Gascoigne Halman says ..
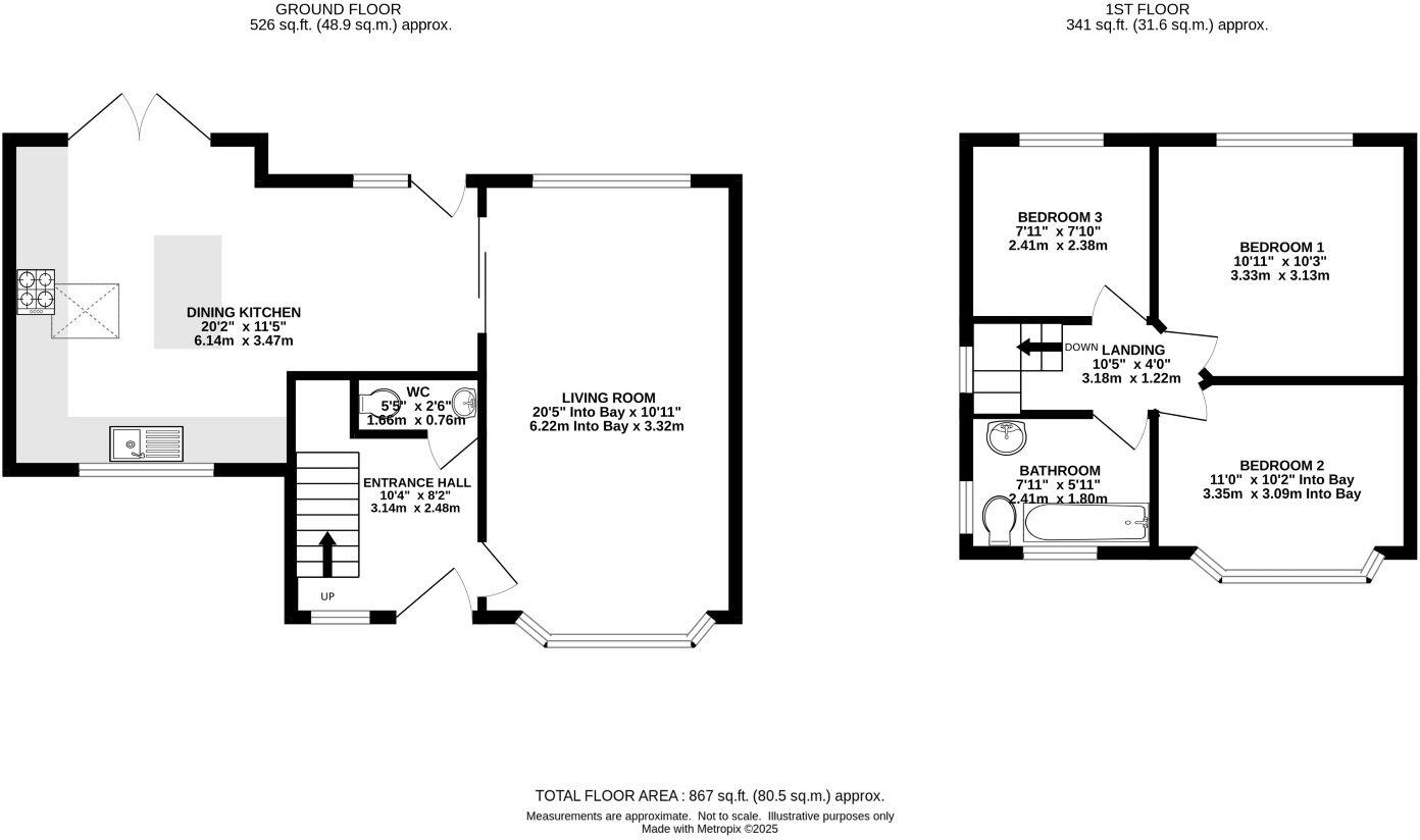
A stunning and spacious extended bay fronted semi detached property which has been immaculately decorated and tastefully extended. Located in a quiet cul-de sac location and close to Didsbury Village and excellent transport links. The property offers ample space and is ideal for first time buyers...
Property Oracle says ..
Therefore, we give this property 7 / 10. *Disclaimer: This is our option and does constitute a recommendation or financial advice. Do your own research. *
- Price
- 7
- Condition
- 8
- Location
- 8
- Land
- 7
- Bedrooms
- 3
- Bathrooms
- 1
- Sqft (est)
- 926.40
The heatmap indicates the level of crime in the area. The color of the heatmap indicates the crime severity and recency.
Metrics Year-on-Year
- Average area value
- 533,583.00 £Increased by 11.40 %
- Est sale value
- 507,667.20 £Increased by 25.98 %
- Average area rental value
- 1,591.00 £/moIncreased by 15.54 %
- Est letting value
- 926.40 £/moUnchanged by 0.00 %
- Est rental Yield
- 3.58 %Increased by 3.77 %
- Crime Rate
- 0.00 %
from 479,000.00 £
from 402,984.00 £
from 1,377.00 £/mo
from 926.40 £/mo
from 3.45 %
from 0.00 %
Agent Activity
Gascoigne Halman created the listing.
Nearby Schools
| Name | Type | Ofsted | Distance |
|---|---|---|---|
| Parrs Wood High School | Academy Converter | Good | 0.35 KM |
| Broad Oak Primary School | Community School | Good | 0.56 KM |
| The Barlow Rc High School And Specialist Science College | Voluntary Aided School | Good | 1.18 KM |
| Didsbury Park | Children's Centre | 1.26 KM | |
| St Catherine'S Rc Primary School | Voluntary Aided School | Outstanding | 1.27 KM |
Images
Nearby Streets
| Name | Average Price | Average Sqft | Distance |
|---|---|---|---|
| Drayton Manor | £ 330,000 | 0 | 0.00 KM |
| Parrs Wood View | £ 0 | 0 | 0.00 KM |
| M60 | £ 0 | 0 | 0.00 KM |
| Kingston Avenue | £ 0 | 0 | 0.00 KM |
| Sandhurst Road | £ 550,000 | 0 | 0.00 KM |
Nearby Transport
| Name | NLC | TLC | Distance |
|---|---|---|---|
| East Didsbury | 2949 | EDY | 0.47 KM |
| Gatley | 2953 | GTY | 1.68 KM |
| Burnage | 2945 | BNA | 1.93 KM |
| Mauldeth Road | 2867 | MAU | 3.43 KM |
| Heald Green | 2860 | HDG | 4.28 KM |
Nearby Listings
| Address | Price | Type | Score | Distance |
|---|---|---|---|---|
| Greenview Drive, East Didsbury | £ 415,000 | BUY | 7 / 10 | 0.00 KM |
| Winwood Road, East Didsbury | £ 375,000 | BUY | 7 / 10 | 0.04 KM |
| Kingsway, East Didsbury | £ 390,000 | BUY | 7 / 10 | 0.06 KM |
| Selsey Drive, East Didsbury, Manchester, M20 | £ 375,000 | BUY | 7 / 10 | 0.06 KM |
| Kingsway, East Didsbury, Manchester, M20 | £ 450,000 | BUY | 6 / 10 | 0.07 KM |
Nearby Properties
| Address | Price | Distance |
|---|---|---|
| 889 Kingsway | £ 185,000 | 0.08 KM |
| 883 Kingsway | £ 145,000 | 0.08 KM |
| 871 Kingsway | £ 246,500 | 0.08 KM |
| 887 Kingsway | £ 132,000 | 0.08 KM |
| 891 Kingsway | £ 182,000 | 0.08 KM |