Jackson-Stops says ..
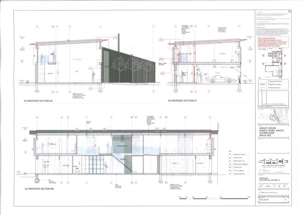
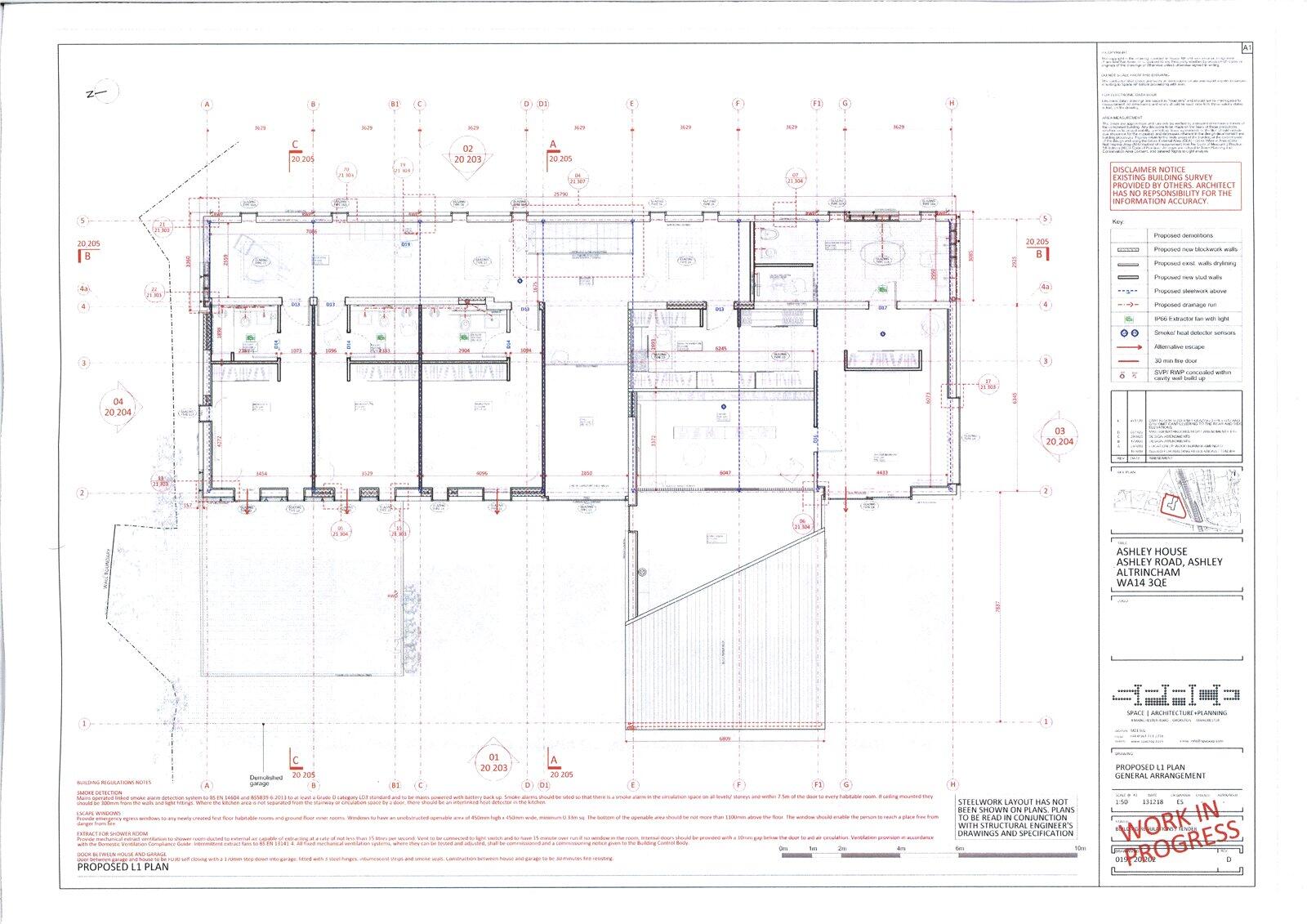
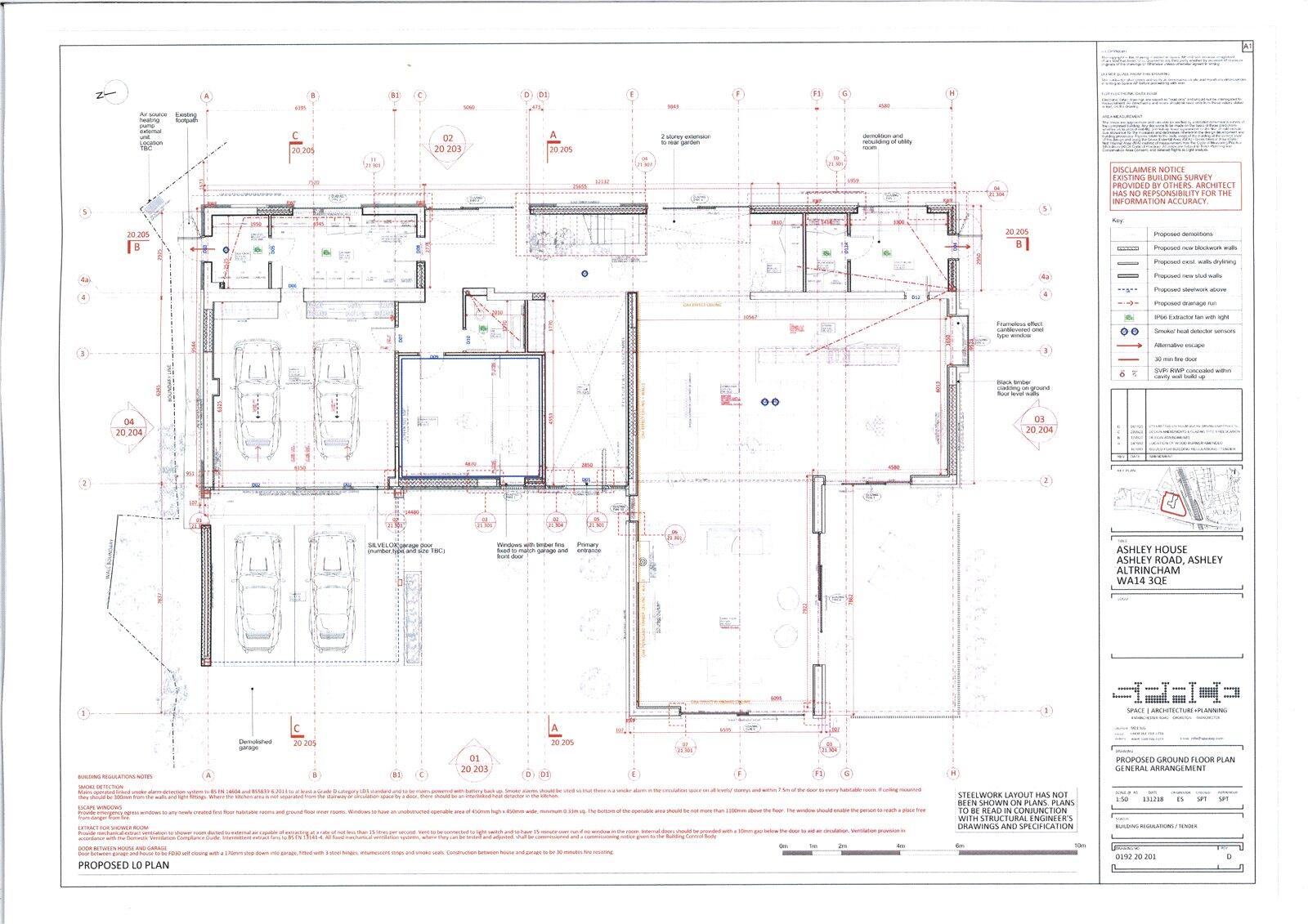
An exceptional opportunity to acquire a generous single building plot, with the benefit of planning permission to construct a dream home of approximately 5,400sq ft. Description Located in a sought-after residential area in Ashley, this plot covers around 0.426 acres and boasts pi...
Property Oracle says ..
The property is a new build detached house located in Ashley, Cheshire. It is situated on a plot of land with a sizable garden. The design is modern, with large windows and a contemporary aesthetic. The location is desirable, with good access to transport links and schools. The property benefits from a large plot of land and is in excellent condition. The price is in line with other properties in the area and represents good value for money.
Therefore, we give this property 8 / 10. *Disclaimer: This is our option and does constitute a recommendation or financial advice. Do your own research. *
- Price
- 8
- Condition
- 10
- Location
- 9
- Land
- 8
- Bedrooms
- 4
- Bathrooms
- 4
- Sqft (est)
- 1,058.00
The heatmap indicates the level of crime in the area. The color of the heatmap indicates the crime severity and recency.
Metrics Year-on-Year
- Average area value
- 607,999.00 £Decreased by 19.74 %
- Est sale value
- 450,708.00 £Decreased by 8.58 %
- Average area rental value
- 1,708.00 £/moDecreased by 59.57 %
- Est letting value
- 1,058.00 £/moDecreased by 50.00 %
- Est rental Yield
- 3.37 %Decreased by 49.63 %
- Crime Rate
- 158.00 %Unchanged by 0.00 %
Agent Activity
Jackson-Stops created the listing.
Nearby Schools
| Name | Type | Ofsted | Distance |
|---|---|---|---|
| Bowdon Cofe Primary School | Voluntary Aided School | Outstanding | 2.51 KM |
| Altrincham Grammar School For Boys | Academy Converter | 2.59 KM | |
| Altrincham Preparatory School | Other Independent School | 2.63 KM | |
| Hale Preparatory School | Other Independent School | 2.78 KM | |
| Saint Ambrose College | Academy Converter | Good | 3.01 KM |
Images
Nearby Streets
| Name | Average Price | Average Sqft | Distance |
|---|---|---|---|
| Birchfields | £ 0 | 0 | 0.00 KM |
| Wadham Way | £ 913,738 | 0 | 0.00 KM |
Nearby Transport
| Name | NLC | TLC | Distance |
|---|---|---|---|
| Ashley | 2850 | ASY | 0.10 KM |
| Hale (Manchester) | 2845 | HAL | 2.70 KM |
| Mobberley | 2849 | MOB | 3.02 KM |
| Altrincham | 2806 | ALT | 3.68 KM |
| Navigation Road | 2940 | NVR | 4.49 KM |
Nearby Listings
| Address | Price | Type | Score | Distance |
|---|---|---|---|---|
| Ashley Road, Ashley, WA14 | £ 795,000 | BUY | 8 / 10 | 0.00 KM |
| Plot, Ashley Road, Ashley, Altrincham | £ 750,000 | BUY | 6 / 10 | 0.04 KM |
| Egerton Moss, Ashley, Altrincham | £ 835,000 | BUY | 7 / 10 | 0.21 KM |
| Cow Lane, Ashley, Cheshire, WA15 | £ 1,200,000 | BUY | 7 / 10 | 0.40 KM |
| Cow Lane, Ashley, Altrincham, Cheshire, WA15 | £ 1,195,000 | BUY | 7 / 10 | 0.41 KM |
Nearby Properties
| Address | Price | Distance |
|---|---|---|
| 18 Hough Green | £ 350,000 | 0.15 KM |
| 8 Hough Green | £ 250,000 | 0.15 KM |
| 13 Hough Green | £ 351,000 | 0.15 KM |
| 22 Hough Green | £ 125,000 | 0.15 KM |
| 25 Hough Green | £ 369,950 | 0.15 KM |