BE
George Street, Leyland
By Ben Rose
£ 160,000
Ben Rose says ..
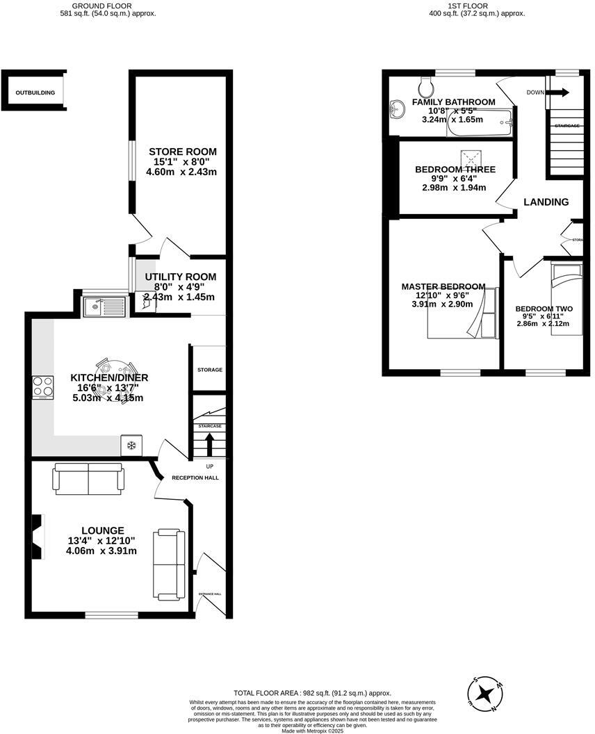
Ben Rose Estate Agents are pleased to present to market this charming three-bedroom, mid-terrace home located on a quiet no-through road in the heart of Leyland. Ideal for first-time buyers, this well-presented property offers spacious and versatile living throughout. Positioned within walking di...
- Bedrooms
- 3
- Bathrooms
- 1
The heatmap indicates the level of crime in the area. The color of the heatmap indicates the crime severity and recency.
Metrics Year-on-Year
- Average area value
- 472,750.00 £Decreased by 21.88 %
- Average area rental value
- 1,418.00 £/moDecreased by 35.04 %
- Est rental Yield
- 3.60 %Decreased by 16.86 %
- Crime Rate
- 15.00 %Unchanged by 0.00 %
from 605,189.00 £
from 2,183.00 £/mo
from 4.33 %
from 15.00 %
Agent Activity
Ben Rose created the listing.
Nearby Schools
| Name | Type | Ofsted | Distance |
|---|---|---|---|
| Farington Primary School | Academy Sponsor Led | 0.22 KM | |
| St Catherine'S Rc Primary School | Voluntary Aided School | Good | 0.77 KM |
| Leyland Methodist Junior School | Voluntary Controlled School | Good | 0.77 KM |
| Leyland Methodist Infant School | Voluntary Controlled School | Outstanding | 0.77 KM |
| Lever House Primary School | Community School | Good | 0.91 KM |
Images
Nearby Streets
| Name | Average Price | Average Sqft | Distance |
|---|---|---|---|
| Moss Lane | £ 150,000 | 0 | 0.00 KM |
| Bow Street | £ 260,000 | 0 | 0.00 KM |
| Murray Street | £ 200,000 | 0 | 0.00 KM |
| St Margaret's Road | £ 0 | 0 | 0.00 KM |
| Brookside Cottages | £ 0 | 0 | 0.00 KM |
Nearby Transport
| Name | NLC | TLC | Distance |
|---|---|---|---|
| Leyland | 2710 | LEY | 0.21 KM |
| Lostock Hall | 2689 | LOH | 2.74 KM |
| Buckshaw Parkway | 7501 | BSV | 4.00 KM |
| Bamber Bridge | 2561 | BMB | 4.07 KM |
| Euxton Balshaw Lane | 2080 | EBA | 4.61 KM |
Nearby Listings
| Address | Price | Type | Score | Distance |
|---|---|---|---|---|
| George Street, Leyland | £ 160,000 | BUY | Unknown | 0.00 KM |
| Clarence Street, Leyland, Lancashire, PR25 | £ 132,000 | BUY | Unknown | 0.05 KM |
| Cross Street, Leyland, Lancashire, PR25 | £ 159,000 | BUY | 5 / 10 | 0.08 KM |
| Cross Street, Leyland, Lancashire, PR25 | £ 165,000 | BUY | 7 / 10 | 0.08 KM |
| Clarence Street, Leyland | £ 220,000 | BUY | 7 / 10 | 0.10 KM |
Nearby Properties
| Address | Price | Distance |
|---|---|---|
| 7 George Street | £ 108,500 | 0.01 KM |
| 3 George Street | £ 87,000 | 0.01 KM |
| 2 George Street | £ 48,000 | 0.01 KM |
| 10 George Street | £ 118,000 | 0.01 KM |
| 1 George Street | £ 132,000 | 0.02 KM |