Rogers & Co says ..
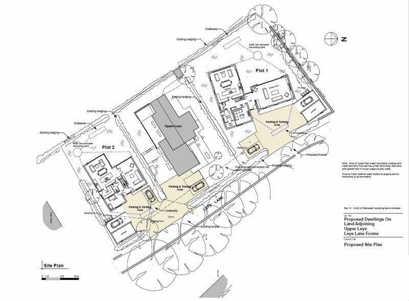
*** BUILDING PLOT *** A once in a lifetime opportunity to buy one of two plots with planning permission on the Northern fringe of Frome.
Property Oracle says ..
This new build property on Leys Lane in Frome, Somerset presents a contemporary and appealing design. The architectural style combines elements of a modern barn conversion with clean lines and high-quality materials. The images showcase a spacious interior layout with a clear distinction between living and sleeping areas. The four bedrooms and three bathrooms make this a potentially suitable family home. The property benefits from a sizeable garden, suitable for outdoor living and entertaining. The location appears quiet and residential, with the added advantage of being near Frome College. The relatively close proximity to Frome town centre might be a beneficial element depending on the buyer’s needs. However, there’s limited information on the finer details of the location such as local shops and transport links. The lack of plot size data prevents an accurate price-per-square-foot analysis. Overall, this property offers a modern design and a relatively convenient location and appears well-priced for the type of property, although further investigation into local comparable properties would enhance the valuation accuracy.
Therefore, we give this property 7 / 10. *Disclaimer: This is our option and does constitute a recommendation or financial advice. Do your own research. *
- Price
- 7
- Condition
- 9
- Location
- 7
- Land
- 6
- Bedrooms
- 4
- Bathrooms
- 3
- Sqft (est)
- 2,075.93
The heatmap indicates the level of crime in the area. The color of the heatmap indicates the crime severity and recency.
Metrics Year-on-Year
- Average area value
- 491,651.00 £Increased by 28.33 %
- Est sale value
- 859,435.02 £Increased by 31.01 %
- Average area rental value
- 1,244.00 £/moIncreased by 23.17 %
- Est letting value
- 2,075.93 £/mo
- Est rental Yield
- 3.04 %Decreased by 3.80 %
- Crime Rate
- 0.00 %
Agent Activity
Rogers & Co created the listing.
Nearby Schools
| Name | Type | Ofsted | Distance |
|---|---|---|---|
| North Hill House | Other Independent Special School | Inadequate | 0.64 KM |
| Frome Community College | Community School | Good | 0.77 KM |
| Farleigh Further Education College - Frome | Special Post 16 Institution | Good | 0.93 KM |
| St Louis Catholic Primary School, Frome | Voluntary Aided School | Good | 1.07 KM |
| Vallis First School | Community School | Good | 1.16 KM |
Images
Nearby Streets
| Name | Average Price | Average Sqft | Distance |
|---|---|---|---|
| Park Hill Drive | £ 272,500 | 0 | 0.00 KM |
| Mendip Close | £ 0 | 0 | 0.00 KM |
| Cuckoo Lane | £ 0 | 0 | 0.00 KM |
| Rose Dale Walk | £ 0 | 0 | 0.00 KM |
| Thomas Bunn Close | £ 0 | 0 | 0.00 KM |
Nearby Transport
| Name | NLC | TLC | Distance |
|---|---|---|---|
| Frome | 5707 | FRO | 1.87 KM |
Nearby Listings
| Address | Price | Type | Score | Distance |
|---|---|---|---|---|
| Leys Lane, Frome | £ 450,000 | BUY | 7 / 10 | 0.00 KM |
| Leys Lane, Frome | £ 350,000 | BUY | 6 / 10 | 0.02 KM |
| Selwood Lodge, Frome, Somerset | £ 3,500,000 | BUY | 7 / 10 | 0.03 KM |
| Mendip Drive, Frome, BA11 | £ 350,000 | BUY | 6 / 10 | 0.18 KM |
| Lilly Batch, Frome | £ 380,000 | BUY | 7 / 10 | 0.19 KM |
Nearby Properties
| Address | Price | Distance |
|---|---|---|
| Selwood Cottage | £ 620,000 | 0.04 KM |
| Selwood Lodge | £ 1,375,000 | 0.04 KM |
| Leys Tyning | £ 845,000 | 0.04 KM |
| Upper Leys House | £ 465,000 | 0.04 KM |
| 3 Sedge Mead | £ 84,500 | 0.07 KM |