MA
WALTHAM ROAD, SCARTHO, GRIMSBY
By Martin Maslin
£ 275,000
Reviews
3 out of 5 stars
Martin Maslin says ..
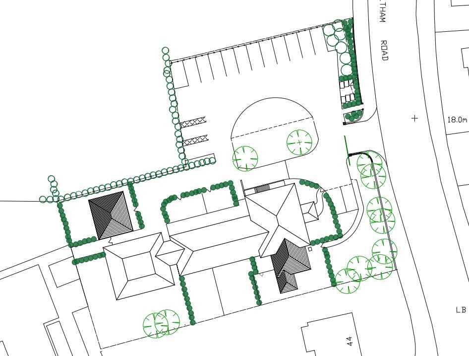
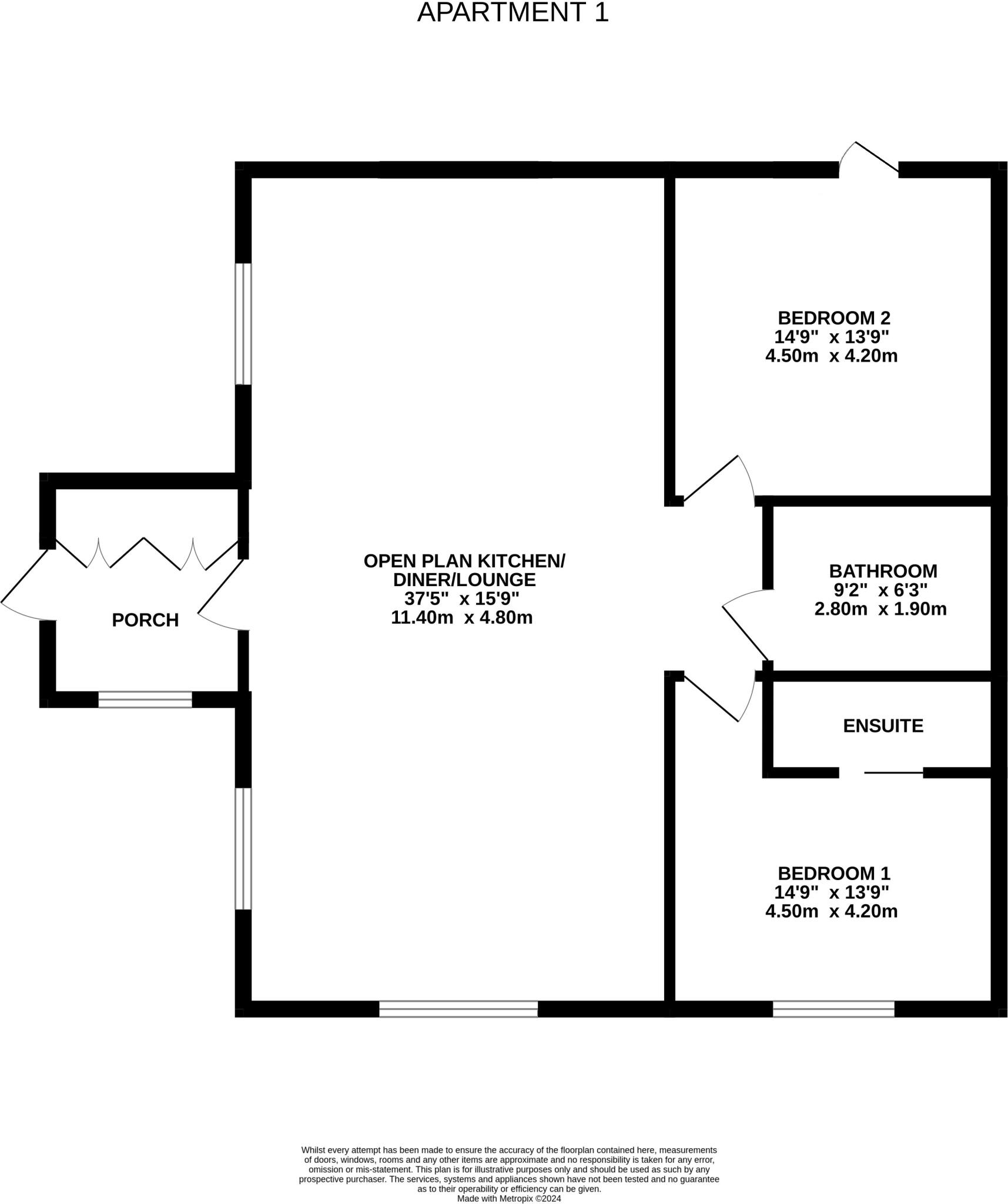
As Agents we are delighted to be appointed to undertake the marketing of Copper Beech Court, a prestigious new development, found in the heart of Scartho village. A fabulous opportunity to become one of the first new owners of one of these exciting exclusive new homes, offering security and (cont.)
Property Oracle says ..
Therefore, we give this property 6 / 10. *Disclaimer: This is our option and does constitute a recommendation or financial advice. Do your own research. *
- Price
- 6
- Condition
- 6
- Location
- 7
- Land
- 7
- Bedrooms
- 2
- Bathrooms
- 2
- Sqft (est)
- 1,150.02
The heatmap indicates the level of crime in the area. The color of the heatmap indicates the crime severity and recency.
Metrics Year-on-Year
- Average area value
- 195,586.00 £Decreased by 8.31 %
- Est sale value
- 230,004.00 £Increased by 3.63 %
- Average area rental value
- 950.00 £/moIncreased by 2.70 %
- Est letting value
- 0.00 £/mo
- Est rental Yield
- 5.83 %Increased by 12.12 %
- Crime Rate
- 7.00 %Unchanged by 0.00 %
from 213,307.00 £
from 221,953.86 £
from 925.00 £/mo
from 0.00 £/mo
from 5.20 %
from 7.00 %
Agent Activity
Martin Maslin created the listing.
Nearby Schools
| Name | Type | Ofsted | Distance |
|---|---|---|---|
| Scartho Outreach | Children's Centre Linked Site | 0.35 KM | |
| Scartho Nursery School | Local Authority Nursery School | Outstanding | 0.46 KM |
| Fairfield Academy | Academy Converter | Good | 0.50 KM |
| Scartho Infants' School And Nursery | Community School | Requires improvement | 1.05 KM |
| Scartho Junior Academy | Academy Converter | Good | 1.11 KM |
Images
Nearby Streets
| Name | Average Price | Average Sqft | Distance |
|---|---|---|---|
| Royal Gardens | £ 0 | 0 | 0.00 KM |
| Cross Lane | £ 0 | 0 | 0.00 KM |
| Dawlish Road | £ 290,000 | 0 | 0.00 KM |
| Clovelly Way | £ 0 | 0 | 0.00 KM |
| Eastend Close | £ 265,000 | 0 | 0.00 KM |
Nearby Transport
| Name | NLC | TLC | Distance |
|---|---|---|---|
| Grimsby Town | 6280 | GMB | 3.48 KM |
| Grimsby Docks | 6276 | GMD | 4.99 KM |
| New Clee | 6289 | NCE | 5.81 KM |
| Great Coates | 6275 | GCT | 6.38 KM |
| Cleethorpes | 6274 | CLE | 7.70 KM |
Nearby Listings
| Address | Price | Type | Score | Distance |
|---|---|---|---|---|
| WALTHAM ROAD, SCARTHO, GRIMSBY | £ 280,000 | BUY | Unknown | 0.00 KM |
| WALTHAM ROAD, SCARTHO, GRIMSBY | £ 330,000 | BUY | Unknown | 0.00 KM |
| COPPER BEECH COURT DEVELOPMENT, GRIMSBY | £ 250,000 | BUY | 7 / 10 | 0.00 KM |
| WALTHAM ROAD, SCARTHO, GRIMSBY | £ 270,000 | BUY | Unknown | 0.00 KM |
| WALTHAM ROAD, SCARTHO, GRIMSBY | £ 260,000 | BUY | Unknown | 0.00 KM |
Nearby Properties
| Address | Price | Distance |
|---|---|---|
| 13 Taunton Way | £ 42,500 | 0.05 KM |
| 5 Taunton Way | £ 93,000 | 0.05 KM |
| 17 Taunton Way | £ 115,000 | 0.05 KM |
| 4 Taunton Way | £ 93,001 | 0.05 KM |
| 1 Taunton Way | £ 110,000 | 0.05 KM |