Hayle Terrace, Hayle, Cornwall, TR27 4BT
By Marshalls Estate Agents
£ 180,000
Reviews
3 out of 5 stars
Marshalls Estate Agents says ..
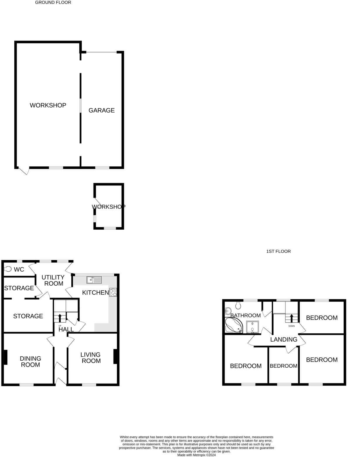
Offered for sale by the modern method of auction is this four bedroom mid terraced family home situated near the centre of Hayle town. The property comprises of two reception rooms, kitchen/breakfast room, utility, cloakroom and two store rooms on
Property Oracle says ..
This property is a 4-bedroom end of terrace house located in Hayle, Cornwall. The location benefits from being close to Hayle train station and several schools, including the Outstanding-rated Penpol School. While the property shows its age and would benefit from some modernisation, it offers a good-sized garden and a detached garage, features that are desirable in the area. The list price of £180,000 is significantly below the average price for the area, which is £468,178, suggesting it could represent good value for money, considering its size and features. However, the need for potential renovations should be factored into any purchase decision.
Therefore, we give this property 7 / 10. *Disclaimer: This is our option and does constitute a recommendation or financial advice. Do your own research. *
- Price
- 9
- Condition
- 6
- Location
- 8
- Land
- 7
- Bedrooms
- 4
- Bathrooms
- 1
- Sqft (est)
- 1,007.88
The heatmap indicates the level of crime in the area. The color of the heatmap indicates the crime severity and recency.
Metrics Year-on-Year
- Average area value
- 380,500.00 £Decreased by 7.95 %
- Est sale value
- 307,403.40 £Increased by 0.66 %
- Average area rental value
- 1,550.00 £/moIncreased by 31.91 %
- Est letting value
- 1,007.88 £/mo
- Est rental Yield
- 4.89 %Increased by 43.40 %
- Crime Rate
- 11.00 %Unchanged by 0.00 %
Agent Activity
Marshalls Estate Agents created the listing.
Nearby Schools
| Name | Type | Ofsted | Distance |
|---|---|---|---|
| Penpol School | Community School | Outstanding | 0.60 KM |
| Hayle Children'S Centre | Children's Centre | 1.02 KM | |
| Bodriggy Academy | Academy Converter | Requires improvement | 1.03 KM |
| Hayle Academy | Academy Converter | 1.04 KM | |
| St Piran'S School (Gb) Ltd | Other Independent School | 1.23 KM |
Images
Nearby Streets
| Name | Average Price | Average Sqft | Distance |
|---|---|---|---|
| Chapel Hill | £ 200,250 | 0 | 0.00 KM |
| Station Approach | £ 230,000 | 0 | 0.00 KM |
| King George V Memorial Walk | £ 0 | 0 | 0.00 KM |
| Mount Pleasant | £ 321,656 | 0 | 0.00 KM |
| Trevoarn | £ 0 | 0 | 0.00 KM |
Nearby Transport
| Name | NLC | TLC | Distance |
|---|---|---|---|
| Hayle | 3513 | HYL | 0.28 KM |
| Lelant | 3539 | LEL | 1.94 KM |
| Lelant Saltings | 3498 | LTS | 2.59 KM |
| St Erth | 3537 | SER | 3.36 KM |
| Carbis Bay | 3542 | CBB | 4.94 KM |
Nearby Listings
| Address | Price | Type | Score | Distance |
|---|---|---|---|---|
| Hayle Terrace, Hayle, Cornwall, TR27 4BT | £ 180,000 | BUY | 7 / 10 | 0.00 KM |
| Hayle, Double fronted home moments from town | £ 450,000 | BUY | 7 / 10 | 0.03 KM |
| Hayle Terrace, Hayle, Cornwall, TR27 4BT | £ 230,000 | BUY | 6 / 10 | 0.04 KM |
| Treveglos, Hayle | £ 250,000 | BUY | 6 / 10 | 0.08 KM |
| HAYLE TERRACE, HAYLE. TR27 | £ 250,000 | BUY | Unknown | 0.09 KM |
Nearby Properties
| Address | Price | Distance |
|---|---|---|
| 74 Hayle Terrace | £ 210,000 | 0.06 KM |
| 30 Hayle Terrace | £ 342,500 | 0.06 KM |
| 60a Hayle Terrace | £ 197,500 | 0.06 KM |
| 88 Hayle Terrace | £ 250,000 | 0.06 KM |
| 60b Hayle Terrace | £ 246,000 | 0.06 KM |