Ridley Street, Leicester, Leicestershire, LE3
By Shonki Brothers
£ 155,000
Reviews
2 out of 5 stars
Shonki Brothers says ..
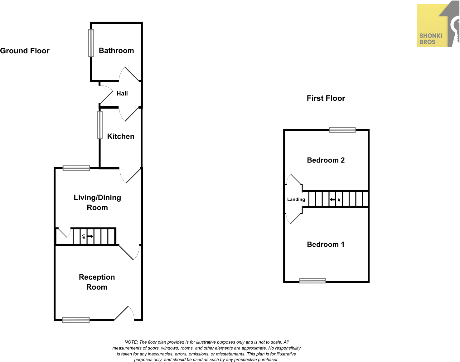
We are pleased to offer for sale this two bedroom mid terrace property, located off Hinckley Road on Ridley Street, ideal for investors or first-time buyers seeking a renovation project!
Property Oracle says ..
This property is a two bedroom terraced house located in Leicester. The property is in need of modernisation and is priced at £155,000. The average price for a property in the area is £193,827, with an average price per square foot of £221. This property is smaller than average at 447.96 sqft. The property benefits from being close to local schools and transport links. However, it requires significant renovation work, and the lack of outdoor space is a drawback. The price reflects the need for renovation; however, it is lower than the average price in the area.
Therefore, we give this property 4 / 10. *Disclaimer: This is our option and does constitute a recommendation or financial advice. Do your own research. *
- Price
- 6
- Condition
- 3
- Location
- 7
- Land
- 1
- Bedrooms
- 2
- Bathrooms
- 1
- Sqft (est)
- 447.96
The heatmap indicates the level of crime in the area. The color of the heatmap indicates the crime severity and recency.
Metrics Year-on-Year
- Average area value
- 207,292.00 £Increased by 6.80 %
- Est sale value
- 111,990.00 £Increased by 31.58 %
- Average area rental value
- 1,080.00 £/moIncreased by 60.95 %
- Est letting value
- 447.96 £/mo
- Est rental Yield
- 6.25 %Increased by 50.60 %
- Crime Rate
- 9.00 %Unchanged by 0.00 %
Agent Activity
Shonki Brothers created the listing.
Nearby Schools
| Name | Type | Ofsted | Distance |
|---|---|---|---|
| Shaftesbury Junior School | Community School | Requires improvement | 0.12 KM |
| West End Sure Start Children'S Centre | Children's Centre Linked Site | 0.21 KM | |
| King Richard Iii Infant And Nursery School | Community School | Good | 0.27 KM |
| Avanti Fields School | Free Schools | 0.52 KM | |
| Brook Mead Academy | Free Schools | 0.78 KM |
Images
Nearby Streets
| Name | Average Price | Average Sqft | Distance |
|---|---|---|---|
| Narborough Road North | £ 0 | 0 | 0.00 KM |
| Tudor Close | £ 0 | 0 | 0.00 KM |
| Tewkesbury Street | £ 285,515 | 0 | 0.00 KM |
| Upperton Road | £ 0 | 0 | 0.00 KM |
| Martin Ryan Walk | £ 0 | 0 | 0.00 KM |
Nearby Transport
| Name | NLC | TLC | Distance |
|---|---|---|---|
| Leicester | 1947 | LEI | 2.72 KM |
| South Wigston | 1949 | SWS | 5.59 KM |
| Narborough | 1881 | NBR | 8.81 KM |
Nearby Listings
| Address | Price | Type | Score | Distance |
|---|---|---|---|---|
| Ridley Street, Leicester, Leicestershire, LE3 | £ 155,000 | BUY | 4 / 10 | 0.00 KM |
| 56 Ridley Street, Off Hinckley Road, Leicester, LE3 0QJ | £ 119,000 | BUY | 5 / 10 | 0.01 KM |
| 58 Ridley Street, Off Hinckley Road, Leicester, LE3 0QJ | £ 125,000 | BUY | 5 / 10 | 0.01 KM |
| Latimer Street, Leicester | £ 225,000 | BUY | 5 / 10 | 0.08 KM |
| Cranmer Street, Leicester | £ 150,000 | BUY | 5 / 10 | 0.08 KM |
Nearby Properties
| Address | Price | Distance |
|---|---|---|
| 98 Ridley Street | £ 98,000 | 0.00 KM |
| 8 Ridley Street | £ 132,000 | 0.00 KM |
| 38 Ridley Street | £ 125,000 | 0.00 KM |
| 88 Ridley Street | £ 180,000 | 0.00 KM |
| 90 Ridley Street | £ 105,000 | 0.00 KM |