Front Street, Monkseaton
EM

Front Street, Monkseaton

By Embleys Estate Agents

£ 650,000

Reviews

4 out of 5 stars

Embleys Estate Agents says ..

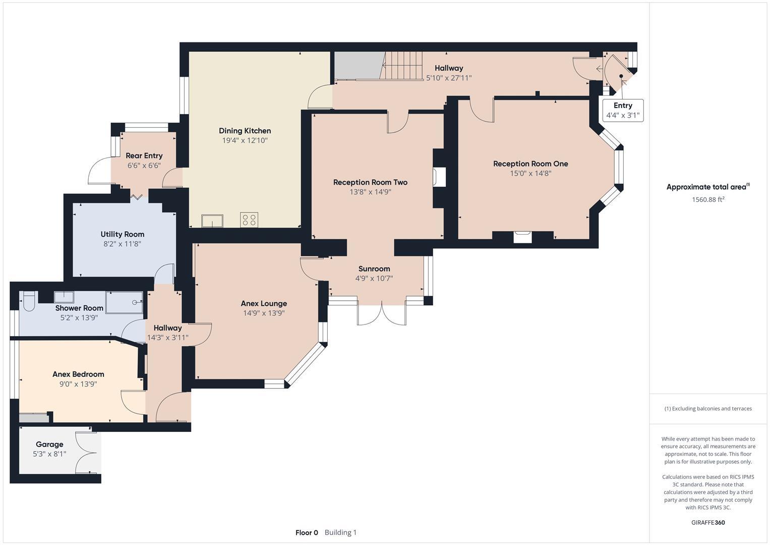
Embleys are delighted to be instructed in the sale of this impressive and well presented, semi detached house which is located in a sought after residential area. It boasts a wealth of modern features with period charm and is ideal for a family. With over 3127 square feet of accommodation set...

Property Oracle says ..

This seven-bedroom property in Monkseaton, North Tyneside is a substantial family home. The property boasts a large plot size of 3,127.77 sqft and is presented in good condition throughout, as shown in the provided photographs. The interior features modern updates in the kitchen and bathrooms, while maintaining some period charm. The location is desirable, with nearby schools including the Outstanding Whitley Bay High School and good transport links. The list price of £650,000 is slightly above the average price for the area (£525,346) but is justified considering the size (2,838.26 sqft), condition, and desirable location. Comparable properties in the area have sold for significantly higher prices, indicating that this property is reasonably priced.

Therefore, we give this property 8 / 10. *Disclaimer: This is our option and does constitute a recommendation or financial advice. Do your own research. *

Price
7
Condition
8
Location
9
Land
8
Bedrooms
7
Bathrooms
2
Sqft (est)
2,838.26
Lot (est)
3,127.77

The heatmap indicates the level of crime in the area. The color of the heatmap indicates the crime severity and recency.

Metrics Year-on-Year

Average area value
911,990.00 £
Increased by 52.54 %
from 597,864.00 £
Est sale value
1,356,688.28 £
Decreased by 4.59 %
from 1,421,968.26 £
Average area rental value
1,200.00 £/mo
Decreased by 18.81 %
from 1,478.00 £/mo
Est letting value
0.00 £/mo
Decreased by 100.00 %
from 2,838.26 £/mo
Est rental Yield
1.58 %
Decreased by 46.80 %
from 2.97 %
Crime Rate
11.00 %
Unchanged by 0.00 %
from 11.00 %

Agent Activity

  • Embleys Estate Agents created the listing.

Nearby Schools

NameTypeOfstedDistance
Monkseaton Middle SchoolFoundation SchoolRequires improvement0.46 KM
Appletree Gardens First SchoolFoundation SchoolGood0.68 KM
Whitley Bay High SchoolFoundation SchoolOutstanding0.92 KM
Star Of The Sea Catholic Primary School, Whitley BayAcademy Converter1.12 KM
Valley Gardens Middle SchoolFoundation SchoolOutstanding1.17 KM

Images

CAM01604G0-PR0536-STILL001.jpg CAM01604G0-PR0536-STILL002.jpg CAM01604G0-PR0536-STILL004.jpg CAM01604G0-PR0536-STILL009.jpg CAM01604G0-PR0536-STILL006.jpg CAM01604G0-PR0536-STILL010.jpg CAM01604G0-PR0536-STILL011.jpg CAM01604G0-PR0536-STILL013.jpg CAM01604G0-PR0536-STILL014.jpg CAM01604G0-PR0536-STILL015.jpg CAM01604G0-PR0536-STILL016.jpg CAM01604G0-PR0536-STILL019.jpg CAM01604G0-PR0536-STILL018.jpg CAM01604G0-PR0536-STILL021.jpg CAM01604G0-PR0536-STILL022.jpg CAM01604G0-PR0536-STILL026.jpg CAM01604G0-PR0536-STILL029.jpg CAM01604G0-PR0536-STILL025.jpg CAM01604G0-PR0536-STILL028.jpg CAM01604G0-PR0536-STILL030.jpg CAM01604G0-PR0536-STILL005.jpg

Nearby Streets

NameAverage PriceAverage SqftDistance
St Georges Crescent £ 795,00000.00 KM
The Avenue £ 000.00 KM
Gladstone Avenue £ 365,00000.00 KM
Priory Avenue £ 000.00 KM
Foxhunters Road £ 000.00 KM

Nearby Listings

AddressPriceTypeScoreDistance
Front Street, Monkseaton £ 650,000BUY8 / 100.00 KM
Front Street, Monkseaton, Whitley Bay £ 140,000BUY6 / 100.01 KM
The Leas, Monkseaton £ 149,950BUY5 / 100.02 KM
Kensington Gardens, Monkseaton £ 300,000BUYUnknown0.10 KM
St. Ronans Road, Monkseaton £ 150,000BUYUnknown0.11 KM

Nearby Properties

AddressPriceDistance
3 Front Street £ 472,5000.02 KM
36 Front Street £ 200,0000.06 KM
4 Front Street £ 320,0000.06 KM
18 Front Street £ 180,0000.06 KM
34 Front Street £ 136,5000.06 KM