Humberts says ..
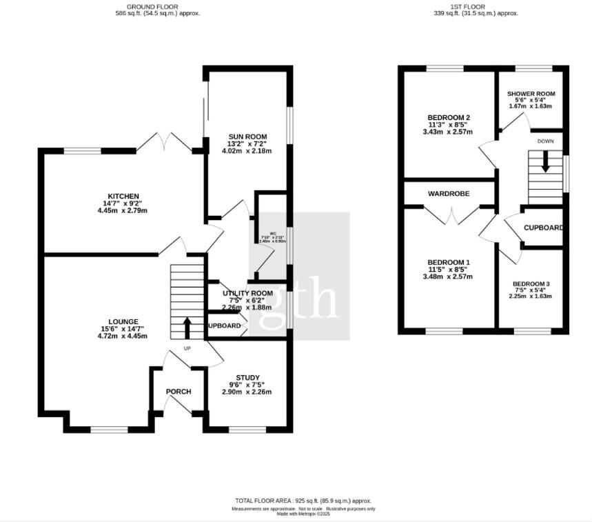
A beautifully presented three bedroom detached house situated in a lovely small cul-de-sac location
Property Oracle says ..
Therefore, we give this property 7 / 10. *Disclaimer: This is our option and does constitute a recommendation or financial advice. Do your own research. *
- Price
- 7
- Condition
- 7
- Location
- 7
- Land
- 7
- Bedrooms
- 3
- Bathrooms
- 2
The heatmap indicates the level of crime in the area. The color of the heatmap indicates the crime severity and recency.
Metrics Year-on-Year
- Average area value
- 322,500.00 £Increased by 7.16 %
- Average area rental value
- 850.00 £/moDecreased by 16.58 %
- Est rental Yield
- 3.16 %Decreased by 22.17 %
- Crime Rate
- 14.00 %Unchanged by 0.00 %
from 300,948.00 £
from 1,019.00 £/mo
from 4.06 %
from 14.00 %
Agent Activity
Humberts created the listing.
Nearby Schools
| Name | Type | Ofsted | Distance |
|---|---|---|---|
| Honiton & District Children'S Centre | Children's Centre | 2.02 KM | |
| Littletown Primary Academy | Academy Converter | Good | 2.15 KM |
| Honiton Community College | Academy Converter | Good | 2.54 KM |
| Honiton Primary School | Community School | Requires improvement | 2.84 KM |
| Awliscombe Church Of England Primary School | Voluntary Aided School | Good | 3.02 KM |
Images
Nearby Streets
| Name | Average Price | Average Sqft | Distance |
|---|---|---|---|
| Maple Close | £ 279,950 | 0 | 0.00 KM |
| Sycamore Close | £ 0 | 0 | 0.00 KM |
| Hodges Close | £ 440,000 | 0 | 0.00 KM |
| St Mark's Road | £ 0 | 0 | 0.00 KM |
| St Paul's Road | £ 195,000 | 0 | 0.00 KM |
Nearby Transport
| Name | NLC | TLC | Distance |
|---|---|---|---|
| Honiton | 5717 | HON | 2.70 KM |
| Feniton | 5808 | FNT | 8.36 KM |
Nearby Listings
| Address | Price | Type | Score | Distance |
|---|---|---|---|---|
| Ferndale Close, Honiton, Devon | £ 335,000 | BUY | 7 / 10 | 0.00 KM |
| Ferndale Close, Honiton | £ 325,000 | BUY | 7 / 10 | 0.00 KM |
| Ferndale Close, Honiton, Devon, EX14 | £ 335,000 | BUY | 7 / 10 | 0.00 KM |
| Ferndale Close, Honiton, Devon, EX14 | £ 325,000 | BUY | 6 / 10 | 0.02 KM |
| 7 Ferndale Close, Honiton | £ 475,000 | BUY | 7 / 10 | 0.03 KM |
Nearby Properties
| Address | Price | Distance |
|---|---|---|
| 9 Ferndale Close | £ 550,000 | 0.02 KM |
| 2 Ferndale Close | £ 234,390 | 0.02 KM |
| 11 Ferndale Close | £ 249,950 | 0.02 KM |
| 7 Ferndale Close | £ 345,000 | 0.02 KM |
| 6 Ferndale Close | £ 217,500 | 0.02 KM |