Liverpool Road, Burnley, Lancashire, BB12
By Entwistle Green
£ 1,100,000
Reviews
1 out of 5 stars
Entwistle Green says ..
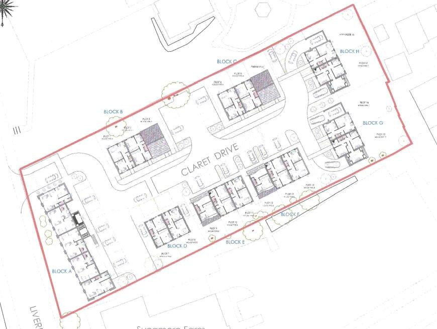
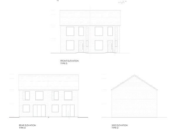
DEVELOPMENT OPPORTUNITY WITH PLANS FOR 28 UNITS Entwistle Green are delighted to the present this rare development opportunity to the market. Based in the highly convenient and sought after area of Lowerhouse & Rosegrove, Burnley, this site is within very easy reach to the M65 mot...
Property Oracle says ..
The property is a plot of land on Liverpool Road in Burnley. While the location offers proximity to schools and transportation, the current condition of the land requires extensive work. The asking price of £1,100,000 seems significantly overvalued compared to average property prices in the area. This valuation is based on the potential development opportunity, however, this is subject to planning permission.
Therefore, we give this property 3 / 10. *Disclaimer: This is our option and does constitute a recommendation or financial advice. Do your own research. *
- Price
- 1
- Condition
- 1
- Location
- 6
- Land
- 7
- Bedrooms
- 0
- Bathrooms
- 0
The heatmap indicates the level of crime in the area. The color of the heatmap indicates the crime severity and recency.
Metrics Year-on-Year
- Average area value
- 124,975.00 £Decreased by 18.50 %
- Average area rental value
- 673.00 £/moIncreased by 1.36 %
- Est rental Yield
- 6.46 %Increased by 24.23 %
- Crime Rate
- 0.00 %
Agent Activity
Entwistle Green created the listing.
Nearby Schools
| Name | Type | Ofsted | Distance |
|---|---|---|---|
| Burnley Lowerhouse Junior School | Community School | Good | 0.34 KM |
| Rosegrove Infant School | Community School | Good | 0.36 KM |
| St Augustine Of Canterbury Rc Primary School, A Voluntary Academy | Academy Converter | 0.50 KM | |
| Rosegrove Nursery School | Local Authority Nursery School | Outstanding | 0.74 KM |
| St Joseph'S Park Hill School | Other Independent School | 1.12 KM |
Images
Nearby Streets
| Name | Average Price | Average Sqft | Distance |
|---|---|---|---|
| Havelock Street | £ 172,500 | 0 | 0.00 KM |
| Maden Fold Bank | £ 214,995 | 0 | 0.00 KM |
| Cunliffe Drive | £ 0 | 0 | 0.00 KM |
| Mercer Street | £ 55,000 | 0 | 0.00 KM |
| All Saints Close | £ 0 | 0 | 0.00 KM |
Nearby Transport
| Name | NLC | TLC | Distance |
|---|---|---|---|
| Rose Grove | 2722 | RSG | 0.37 KM |
| Burnley Barracks | 2743 | BUB | 3.06 KM |
| Hapton | 2557 | HPN | 3.53 KM |
| Burnley Manchester Road | 2549 | BYM | 4.08 KM |
| Burnley Central | 2550 | BNC | 4.54 KM |
Nearby Listings
| Address | Price | Type | Score | Distance |
|---|---|---|---|---|
| Liverpool Road, Burnley, Lancashire, BB12 | £ 1,100,000 | BUY | 3 / 10 | 0.00 KM |
| Liverpool Road, Burnley | £ 75,000 | BUY | Unknown | 0.15 KM |
| Dorset Street, Burnley, BB12 | £ 90,000 | BUY | 5 / 10 | 0.23 KM |
| Dorset Street, Burnley, BB12 | £ 82,995 | BUY | 6 / 10 | 0.25 KM |
| Liverpool Road, Burnley | £ 75,000 | BUY | Unknown | 0.26 KM |
Nearby Properties
| Address | Price | Distance |
|---|---|---|
| 50 Liverpool Road | £ 65,000 | 0.18 KM |
| 26 Liverpool Road | £ 65,000 | 0.18 KM |
| 12 Liverpool Road | £ 50,000 | 0.18 KM |
| 48 Liverpool Road | £ 79,995 | 0.18 KM |
| 4 Liverpool Road | £ 28,000 | 0.18 KM |