LO
Plot 25 - North Street, Winterton, North Lincolnshire, DN15
By Lovelle Estate Agency
£ 319,950
Reviews
3 out of 5 stars
Lovelle Estate Agency says ..
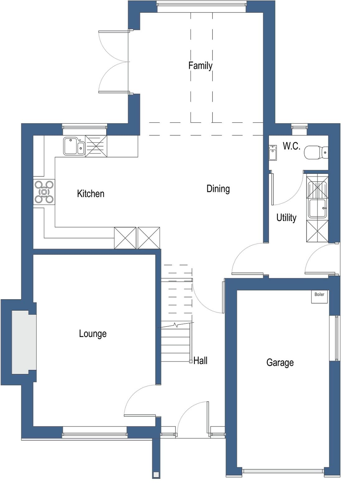
The Kingston is a four-bedroom detached home with an integral garage, family bathroom, and en-suite to the master bedroom. Designed for modern living, it offers comfort, space, and practicality throughout.
Property Oracle says ..
Therefore, we give this property 6 / 10. *Disclaimer: This is our option and does constitute a recommendation or financial advice. Do your own research. *
- Price
- 6
- Condition
- 9
- Location
- 7
- Land
- 5
- Bedrooms
- 4
- Bathrooms
- 2
- Sqft (est)
- 1,048.00
The heatmap indicates the level of crime in the area. The color of the heatmap indicates the crime severity and recency.
Metrics Year-on-Year
- Average area value
- 235,000.00 £Increased by 7.42 %
- Est sale value
- 316,496.00 £Increased by 43.13 %
- Average area rental value
- 1,149.00 £/moDecreased by 3.45 %
- Est letting value
- 1,048.00 £/moUnchanged by 0.00 %
- Est rental Yield
- 5.87 %Decreased by 10.11 %
- Crime Rate
- 13.00 %Unchanged by 0.00 %
from 218,759.00 £
from 221,128.00 £
from 1,190.00 £/mo
from 1,048.00 £/mo
from 6.53 %
from 13.00 %
Agent Activity
Lovelle Estate Agency created the listing.
Nearby Schools
| Name | Type | Ofsted | Distance |
|---|---|---|---|
| Winterton Junior School | Community School | Good | 0.36 KM |
| Winterton Children'S Centre | Children's Centre | 0.43 KM | |
| Flourish With Us | Other Independent Special School | 0.46 KM | |
| Winterton Church Of England Infants' School | Voluntary Controlled School | Good | 0.48 KM |
| Winterton Community Academy | Academy Converter | Good | 0.64 KM |
Images
Nearby Streets
| Name | Average Price | Average Sqft | Distance |
|---|---|---|---|
| Millhouse Lane | £ 0 | 0 | 0.00 KM |
| Winteringham Road | £ 0 | 0 | 0.00 KM |
| Market Street | £ 330,000 | 0 | 0.00 KM |
| Goosey Lane | £ 0 | 0 | 0.00 KM |
| Cornfield Way | £ 0 | 0 | 0.00 KM |
Nearby Transport
| Name | NLC | TLC | Distance |
|---|---|---|---|
| Brough | 8051 | BUH | 7.89 KM |
Nearby Listings
| Address | Price | Type | Score | Distance |
|---|---|---|---|---|
| Plot 58 - North Street, Winterton, North Lincolnshire, DN15 | £ 309,950 | BUY | 6 / 10 | 0.00 KM |
| Plot 25 - North Street, Winterton, North Lincolnshire, DN15 | £ 319,950 | BUY | 6 / 10 | 0.00 KM |
| Plot 59 - North Street, Winterton, North Lincolnshire, DN15 | £ 254,950 | BUY | 6 / 10 | 0.01 KM |
| Plot 2 - North Street, Winterton, North Lincolnshire, DN15 | £ 289,950 | BUY | Unknown | 0.01 KM |
| Plot 57 - North Street, Winterton, North Lincolnshire, DN15 | £ 339,950 | BUY | 6 / 10 | 0.01 KM |
Nearby Properties
| Address | Price | Distance |
|---|---|---|
| 34 North Street | £ 160,000 | 0.09 KM |
| 84 North Street | £ 275,000 | 0.09 KM |
| 78 North Street | £ 247,500 | 0.09 KM |
| 42 North Street | £ 160,000 | 0.09 KM |
| 47 North Street | £ 215,000 | 0.09 KM |