Guildford Road, Bisley, Woking, Surrey, GU24
By Seymours Estate Agents
£ 550,000
Reviews
4 out of 5 stars
Seymours Estate Agents says ..
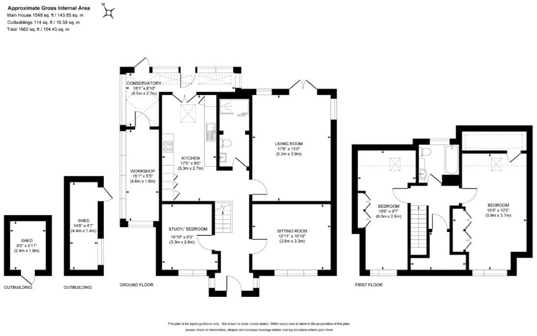
This attractive double fronted chalet detached bungalow has undergone an extensive remodelling and refurbishment programme and is simply unrecognisable to what it was previously. Upon entering the property, you are immediately aware of the high standard of finish, a theme that continues to ...
Property Oracle says ..
This property is a well-presented bungalow situated in Bisley, Woking. The location benefits from being close to Bisley Cofe Primary School (rated good by Ofsted) and several other schools within a reasonable distance. Brookwood train station is also relatively close by, providing convenient access to commuting routes. The property itself appears to be in excellent condition, with a recently updated kitchen and bathrooms. The images show a modern and well-maintained interior. The bungalow has a good-sized garden with a patio area, offering outdoor space. While the plot size is not specified, the garden appears to be substantial. Considering the average price per square foot in the area is £514 and this property is listed at £550,000 with 1,548 sqft, the list price seems slightly below average, potentially representing good value for money. However, more information on the plot size would be beneficial for a more comprehensive valuation.
Therefore, we give this property 8 / 10. *Disclaimer: This is our option and does constitute a recommendation or financial advice. Do your own research. *
- Price
- 8
- Condition
- 9
- Location
- 8
- Land
- 7
- Bedrooms
- 2
- Bathrooms
- 2
- Sqft (est)
- 1,548.00
The heatmap indicates the level of crime in the area. The color of the heatmap indicates the crime severity and recency.
Metrics Year-on-Year
- Average area value
- 644,188.00 £Increased by 3.54 %
- Est sale value
- 656,352.00 £Decreased by 26.64 %
- Average area rental value
- 2,466.00 £/moDecreased by 21.84 %
- Est letting value
- 1,548.00 £/moDecreased by 50.00 %
- Est rental Yield
- 4.59 %Decreased by 24.63 %
- Crime Rate
- 11.00 %Unchanged by 0.00 %
Agent Activity
Seymours Estate Agents created the listing.
Nearby Schools
| Name | Type | Ofsted | Distance |
|---|---|---|---|
| Bisley Cofe Primary School | Voluntary Aided School | Good | 0.29 KM |
| The Knaphill Lower School | Academy Converter | 1.25 KM | |
| Knaphill School | Academy Converter | 1.29 KM | |
| Brookwood Primary School | Academy Sponsor Led | Good | 1.99 KM |
| Brookwood & Pirbright Sure Start Children'S Centre | Children's Centre | 2.01 KM |
Images
Nearby Streets
| Name | Average Price | Average Sqft | Distance |
|---|---|---|---|
| Iris Drive | £ 0 | 0 | 0.00 KM |
| Strawberry Fields | £ 925,000 | 0 | 0.00 KM |
| Stafford Lake | £ 0 | 0 | 0.00 KM |
| Guernsey Way | £ 0 | 0 | 0.00 KM |
| Gloucester Close | £ 735,000 | 0 | 0.00 KM |
Nearby Transport
| Name | NLC | TLC | Distance |
|---|---|---|---|
| Brookwood | 5687 | BKO | 2.14 KM |
| Worplesdon | 5686 | WPL | 6.75 KM |
| Bagshot | 5681 | BAG | 7.68 KM |
| Sunningdale | 5671 | SNG | 7.70 KM |
| Longcross | 5674 | LNG | 8.15 KM |
Nearby Listings
| Address | Price | Type | Score | Distance |
|---|---|---|---|---|
| Guildford Road, Bisley, Woking, Surrey, GU24 | £ 550,000 | BUY | 8 / 10 | 0.00 KM |
| Guildford Road, Bisley, Woking | £ 699,950 | BUY | 6 / 10 | 0.08 KM |
| Queens Road, Bisley, Woking, Surrey, GU24 | £ 650,000 | BUY | Unknown | 0.15 KM |
| Guildford Road, Bisley, Woking, Surrey, GU24 | £ 800,000 | BUY | 8 / 10 | 0.16 KM |
| Clews Lane, Bisley, Woking, GU24 | £ 450,000 | BUY | Unknown | 0.17 KM |
Nearby Properties
| Address | Price | Distance |
|---|---|---|
| Eventide | £ 485,000 | 0.10 KM |
| Arden | £ 474,000 | 0.10 KM |
| Elmgrove Farm | £ 647,500 | 0.10 KM |
| Elmgrove | £ 545,000 | 0.10 KM |
| Hazeldene | £ 545,000 | 0.10 KM |