Quarry Lane, Kingsweston, Bristol
By Maggs & Allen
£ 55,000
Reviews
2 out of 5 stars
Maggs & Allen says ..
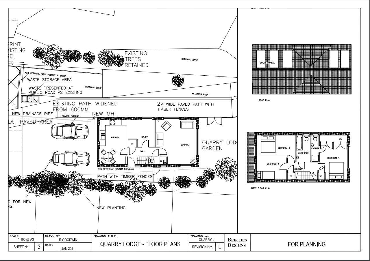
GUIDE PRICE: £55,000-£65,000 An opportunity to purchase a residential building plot with outline planning consent granted for the erection of a detached 3 bedroom house with parking and gardens. Currently, the majority of relevant plans have been approved with approval of the details of the lands...
Property Oracle says ..
This property in Kingsweston, Bristol, is listed as a plot of land with planning permission for a new build. The current state of the property is a largely undeveloped area with the remains of what looks like an old building, requiring complete demolition and new construction. While the location offers proximity to several schools and train stations, it’s not particularly convenient for shops and other daily amenities, although Lawrence Weston offers the closest options. The plans indicate a substantial two-story home is planned for construction. The existing land is relatively small and may require significant landscaping. The list price of £55,000 is significantly below the average for homes in nearby streets, but it is important to understand this is for undeveloped land and the costs required to build the new property. This needs to be considered in any potential purchase, accounting for construction and development costs in the evaluation. The proximity of good schools may increase the appeal and potential resale value, once the property is complete.
Therefore, we give this property 4 / 10. *Disclaimer: This is our option and does constitute a recommendation or financial advice. Do your own research. *
- Price
- 7
- Condition
- 2
- Location
- 4
- Land
- 3
- Bedrooms
- 0
- Bathrooms
- 0
- Sqft (est)
- 780.00
The heatmap indicates the level of crime in the area. The color of the heatmap indicates the crime severity and recency.
Metrics Year-on-Year
- Average area value
- 314,285.00 £Decreased by 23.82 %
- Est sale value
- 268,320.00 £Increased by 13.53 %
- Average area rental value
- 1,470.00 £/moIncreased by 11.20 %
- Est letting value
- 780.00 £/mo
- Est rental Yield
- 5.61 %Increased by 45.71 %
- Crime Rate
- 12.00 %Unchanged by 0.00 %
Agent Activity
Maggs & Allen created the listing.
Nearby Schools
| Name | Type | Ofsted | Distance |
|---|---|---|---|
| Oasis Academy Bank Leaze | Academy Sponsor Led | Good | 0.53 KM |
| St Bede'S Catholic College | Academy Converter | Good | 0.87 KM |
| Kingsweston School | Community Special School | Good | 1.36 KM |
| Our Lady Of The Rosary Catholic Primary School, Bristol | Voluntary Aided School | Outstanding | 1.55 KM |
| Sea Mills Primary School And Children'S Centre | Children's Centre | 1.67 KM |
Images
Nearby Streets
| Name | Average Price | Average Sqft | Distance |
|---|---|---|---|
| Greenhill Lane | £ 612,500 | 0 | 0.00 KM |
| Chapel Lane | £ 495,000 | 0 | 0.00 KM |
| George Boon Drive | £ 0 | 0 | 0.00 KM |
| Capel Road | £ 0 | 0 | 0.00 KM |
| Bilberry Close | £ 337,500 | 0 | 0.00 KM |
Nearby Transport
| Name | NLC | TLC | Distance |
|---|---|---|---|
| Sea Mills | 3254 | SML | 2.58 KM |
| Shirehampton | 3206 | SHH | 3.96 KM |
| St Andrews Road | 3252 | SAR | 5.35 KM |
| Avonmouth | 3200 | AVN | 5.60 KM |
| Clifton Down | 3202 | CFN | 5.94 KM |
Nearby Listings
| Address | Price | Type | Score | Distance |
|---|---|---|---|---|
| Lawrence Weston Road, Bristol | £ 350,000 | BUY | 6 / 10 | 0.07 KM |
| Chantry Grove, Lawrence Weston, Bristol, Bristol | £ 325,000 | BUY | 6 / 10 | 0.10 KM |
| Lawrence Weston Road, Lawrence Weston, Bristol | £ 310,000 | BUY | 6 / 10 | 0.14 KM |
| Deering Close, Bristol | £ 375,000 | BUY | 7 / 10 | 0.16 KM |
| Lawrence Weston Road, Bristol, BS11 | £ 290,000 | BUY | 5 / 10 | 0.17 KM |
Nearby Properties
| Address | Price | Distance |
|---|---|---|
| 70 Lawrence Weston Road | £ 217,000 | 0.06 KM |
| 74 Lawrence Weston Road | £ 134,950 | 0.06 KM |
| 54 Lawrence Weston Road | £ 182,000 | 0.06 KM |
| 76 Lawrence Weston Road | £ 130,000 | 0.06 KM |
| 44 Lawrence Weston Road | £ 160,000 | 0.06 KM |