Exchange Gardens, Vauxhall, SW8
BE

Exchange Gardens, Vauxhall, SW8

By Benham & Reeves

£ 1,750,000

Reviews

3 out of 5 stars

Benham & Reeves says ..

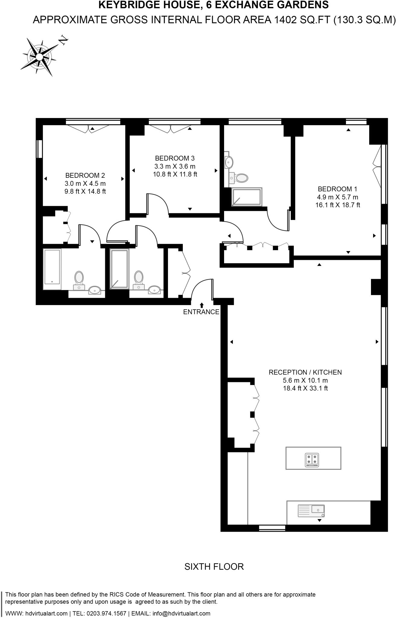
A fantastic sixth floor three bedroom, three bathroom apartment set in the privileged and modern development of Keybridge, well located near Vauxhall Underground Station.

Property Oracle says ..

This is a modern apartment located in the well-connected area of Vauxhall, London. The property boasts three bedrooms and three bathrooms, with a total area of 1,402 sqft. The apartment is in excellent condition, featuring modern fixtures and fittings. While the apartment itself doesn’t have a private garden, it benefits from communal outdoor spaces and balconies. Transportation links are excellent, with Vauxhall station nearby. Several schools are within a reasonable distance, including the ‘Outstanding’ rated Wyvil Primary School. The price is reasonable considering the location, size, and condition of the property.

Therefore, we give this property 7 / 10. *Disclaimer: This is our option and does constitute a recommendation or financial advice. Do your own research. *

Price
6
Condition
9
Location
8
Land
6
Bedrooms
3
Bathrooms
3
Sqft (est)
1,402.00

The heatmap indicates the level of crime in the area. The color of the heatmap indicates the crime severity and recency.

Metrics Year-on-Year

Average area value
1,317,905.00 £
Decreased by 10.65 %
from 1,474,911.00 £
Est sale value
2,658,192.00 £
Increased by 28.72 %
from 2,065,146.00 £
Average area rental value
2,872.00 £/mo
Decreased by 3.72 %
from 2,983.00 £/mo
Est letting value
5,608.00 £/mo
Increased by 100.00 %
from 2,804.00 £/mo
Est rental Yield
2.62 %
Increased by 7.82 %
from 2.43 %
Crime Rate
12.00 %
Unchanged by 0.00 %
from 12.00 %

Agent Activity

  • Benham & Reeves created the listing.

Nearby Schools

NameTypeOfstedDistance
Wyvil Primary School And Resource Bases For Speech, Language And Communication Needs, And AutismFoundation SchoolOutstanding0.16 KM
St Stephen'S Church Of England Primary SchoolVoluntary Aided SchoolGood0.38 KM
St Stephens Ce Primary School & Children'S CentreChildren's Centre0.41 KM
Herbert Morrison Primary SchoolCommunity SchoolOutstanding0.44 KM
St Anne'S Catholic Primary SchoolVoluntary Aided SchoolGood0.67 KM

Images

Picture No. 22 Picture No. 03 Picture No. 04 Picture No. 05 Picture No. 15 Picture No. 11 Picture No. 18 Picture No. 20 Picture No. 02 Picture No. 06 Picture No. 10 Picture No. 17 Picture No. 08 Picture No. 21 Picture No. 07 Picture No. 09 Picture No. 12 Picture No. 13 Picture No. 16 Picture No. 14 Picture No. 23 Picture No. 24 Picture No. 25

Nearby Streets

NameAverage PriceAverage SqftDistance
Parry Street £ 3,163,75000.00 KM
Bondway £ 1,443,00000.00 KM
Walton Close £ 000.00 KM
Wyvil Road £ 820,00000.00 KM
Wandsworth Road £ 1,649,00000.00 KM

Nearby Transport

NameNLCTLCDistance
Vauxhall5597VXH0.46 KM
Wandsworth Road5372WWR2.06 KM
Clapham High Street5301CLP2.08 KM
Brixton5081BRX2.42 KM
Queenstown Road (Battersea)5596QRB2.58 KM

Nearby Listings

AddressPriceTypeScoreDistance
Exchange Gardens, Vauxhall, SW8 £ 1,750,000BUY7 / 100.00 KM
Keybridge House, 2 Exchange Gardens, Vauxhall £ 925,000BUY7 / 100.00 KM
Keybridge Tower, 1 Exchange Gardens, Vauxhall £ 1,795,000BUY6 / 100.00 KM
Exchange Gardens, Vauxhall, London, SW8 £ 875,000BUYUnknown0.00 KM
Exchange Gardens, SW8, Vauxhall, London, SW8 £ 920,000BUYUnknown0.00 KM

Nearby Properties

AddressPriceDistance
49a South Lambeth Road £ 246,0000.06 KM
185 Fentiman Road £ 680,0000.17 KM
189 Fentiman Road £ 1,700,0000.17 KM
183 Fentiman Road £ 1,124,5000.17 KM
3 Regents Bridge Gardens £ 570,0000.24 KM