Roundwood Close, Pen-Y-Lan, Cardiff
By Online Agent Cardiff
£ 350,000
Reviews
3 out of 5 stars
Online Agent Cardiff says ..
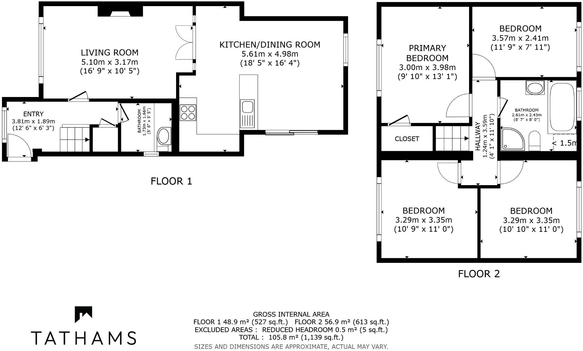
Tathams are excited to present this 4 bedroom semi-detached property in Pen y Lan, Cardiff
Property Oracle says ..
This property is a 4-bedroom house located in Penylan, Cardiff. Based on the provided images, the property appears to be in good condition, with a recently updated kitchen and bathroom. There is a garden present. The list price of £350,000 is slightly below the average price for the area (£403,623), and while the average price per sqft is £344, this property is slightly larger than average at 1,077.82 sqft. Considering its condition, location, and land size, the price seems reasonable, potentially even slightly below market value for a property of this type in the area.
Therefore, we give this property 7 / 10. *Disclaimer: This is our option and does constitute a recommendation or financial advice. Do your own research. *
- Price
- 8
- Condition
- 8
- Location
- 7
- Land
- 7
- Bedrooms
- 4
- Bathrooms
- 0
- Sqft (est)
- 1,077.82
- Lot (est)
- 1,138.82
The heatmap indicates the level of crime in the area. The color of the heatmap indicates the crime severity and recency.
Metrics Year-on-Year
- Average area value
- 530,708.00 £Increased by 26.23 %
- Est sale value
- 442,984.02 £Increased by 13.54 %
- Average area rental value
- 1,546.00 £/moIncreased by 18.65 %
- Est letting value
- 1,077.82 £/moUnchanged by 0.00 %
- Est rental Yield
- 3.50 %Decreased by 5.91 %
- Crime Rate
- 6.00 %Unchanged by 0.00 %
Agent Activity
Online Agent Cardiff created the listing.
Nearby Schools
| Name | Type | Ofsted | Distance |
|---|---|---|---|
| Llanedeyrn Primary School | Welsh Establishment | 0.42 KM | |
| St Teilo'S C.I.W. High School | Welsh Establishment | 0.69 KM | |
| All Saints C.I.W. Primary School | Welsh Establishment | 0.95 KM | |
| St Phillip Evans R.C. Primary School | Welsh Establishment | 1.20 KM | |
| Ysgol Bro Eirwg | Welsh Establishment | 1.35 KM |
Images
Nearby Streets
| Name | Average Price | Average Sqft | Distance |
|---|---|---|---|
| Round Wood Close | £ 320,000 | 0 | 0.00 KM |
| Pine Wood Crescent | £ 312,500 | 0 | 0.00 KM |
| King Wood Close | £ 325,000 | 0 | 0.00 KM |
| Circle Way West | £ 275,000 | 0 | 0.00 KM |
| Oak Wood Avenue | £ 360,495 | 0 | 0.00 KM |
Nearby Transport
| Name | NLC | TLC | Distance |
|---|---|---|---|
| Cardiff Queen Street | 3900 | CDQ | 3.71 KM |
| Heath High Level | 3845 | HHL | 3.90 KM |
| Heath Low Level | 3908 | HLL | 3.92 KM |
| Cathays | 3820 | CYS | 3.96 KM |
| Llanishen | 3847 | LLS | 4.77 KM |
Nearby Listings
| Address | Price | Type | Score | Distance |
|---|---|---|---|---|
| Roundwood Close, Pen-Y-Lan, Cardiff | £ 350,000 | BUY | 7 / 10 | 0.00 KM |
| Roundwood Close, Penylan, Cardiff, CF23 | £ 279,950 | BUY | Unknown | 0.02 KM |
| Pinewood Crescent, Penylan, Cardiff, CF23 | £ 275,000 | BUY | 6 / 10 | 0.20 KM |
| Llanedeyrn Road, Penylan, Cardiff | £ 300,000 | BUY | 7 / 10 | 0.25 KM |
| Llanedeyrn Road, Penylan, Cardiff, CF23 | £ 319,950 | BUY | 7 / 10 | 0.30 KM |
Nearby Properties
| Address | Price | Distance |
|---|---|---|
| 13 Roundwood Close | £ 189,000 | 0.02 KM |
| 24 Roundwood Close | £ 303,000 | 0.02 KM |
| 22 Roundwood Close | £ 65,500 | 0.02 KM |
| 12 Roundwood Close | £ 170,000 | 0.02 KM |
| 14 Roundwood Close | £ 171,500 | 0.02 KM |