Clyde Property says ..
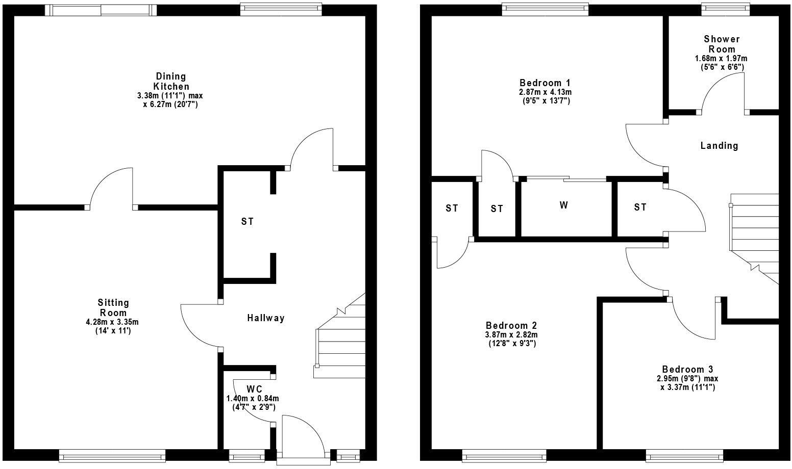
Substantial modern three bedroom end terraced villa located within a cul de sac in popular Hallglen.
Property Oracle says ..
This 3-bedroom villa in Falkirk presents a significant renovation opportunity. While the property requires extensive work, its attractive price point and garden offer potential for investors or buyers willing to undertake a project. The location in Falkirk South provides access to local amenities, though it’s not the most desirable area. Nearby schools and transportation links add to the property’s appeal.
Therefore, we give this property 5 / 10. *Disclaimer: This is our option and does constitute a recommendation or financial advice. Do your own research. *
- Price
- 8
- Condition
- 3
- Location
- 6
- Land
- 6
- Bedrooms
- 3
- Bathrooms
- 1
- Sqft (est)
- 219.91
The heatmap indicates the level of crime in the area. The color of the heatmap indicates the crime severity and recency.
Metrics Year-on-Year
- Average area value
- 490,000.00 £Decreased by 5.86 %
- Est sale value
- 99,399.32 £Increased by 75.88 %
- Average area rental value
- 1,975.00 £/moIncreased by 83.72 %
- Est letting value
- 219.91 £/mo
- Est rental Yield
- 4.84 %Increased by 95.16 %
- Crime Rate
- 0.00 %
Agent Activity
Clyde Property created the listing.
Nearby Schools
| Name | Type | Ofsted | Distance |
|---|---|---|---|
| Oakwood School | Offshore Schools | 2.33 KM |
Images
Nearby Streets
| Name | Average Price | Average Sqft | Distance |
|---|---|---|---|
| Cuillin Court | £ 0 | 0 | 0.00 KM |
| Calder Place | £ 90,000 | 0 | 0.00 KM |
| Cruachan Court | £ 0 | 0 | 0.00 KM |
| Dochart Place | £ 0 | 0 | 0.00 KM |
| Westray Terrace | £ 130,000 | 0 | 0.00 KM |
Nearby Transport
| Name | NLC | TLC | Distance |
|---|---|---|---|
| Falkirk High | 9931 | FKK | 2.09 KM |
| Falkirk Grahamston | 9930 | FKG | 2.24 KM |
| Camelon | 9878 | CMO | 5.29 KM |
| Polmont | 9936 | PMT | 6.58 KM |
| Larbert | 9876 | LBT | 7.46 KM |
Nearby Listings
| Address | Price | Type | Score | Distance |
|---|---|---|---|---|
| Annan Court, Falkirk, FK1 | £ 85,000 | BUY | 5 / 10 | 0.00 KM |
| Annan Court, Falkirk, FK1 | £ 120,000 | BUY | 7 / 10 | 0.02 KM |
| Annan Court, Falkirk, FK1 | £ 117,500 | BUY | 7 / 10 | 0.08 KM |
| Culvain Place, Falkirk, FK1 | £ 114,000 | BUY | Unknown | 0.15 KM |
| 10 Culvain Place, Falkirk, FK1 2QF | £ 124,995 | BUY | 7 / 10 | 0.17 KM |