NO
Redesdale Gardens, Adel, Leeds, LS16
By Northwood
£ 150,000
Reviews
3 out of 5 stars
Northwood says ..
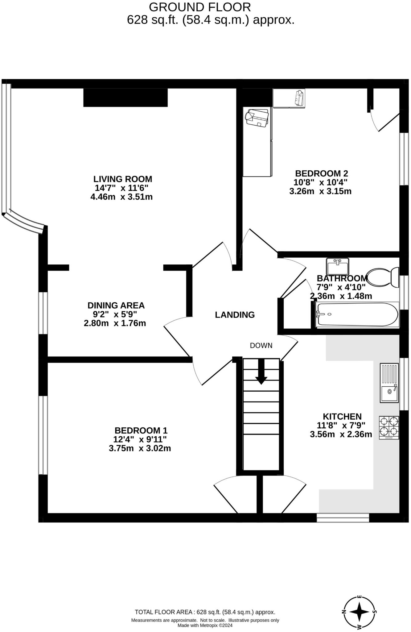
**Available with a tenant in situ with a fixed term until July 25 then moving onto a rolling contract - paying £825pcm, which provides a NET yield of 5.5%**Situated on a popular residential street in Adel, this is a spacious two bedroom first floor apartment which is offered with ...
Property Oracle says ..
Therefore, we give this property 7 / 10. *Disclaimer: This is our option and does constitute a recommendation or financial advice. Do your own research. *
- Price
- 9
- Condition
- 4
- Location
- 7
- Land
- 8
- Bedrooms
- 2
- Bathrooms
- 1
- Sqft (est)
- 628.00
The heatmap indicates the level of crime in the area. The color of the heatmap indicates the crime severity and recency.
Metrics Year-on-Year
- Average area value
- 444,966.00 £Increased by 5.54 %
- Est sale value
- 282,600.00 £Increased by 32.35 %
- Average area rental value
- 1,480.00 £/moDecreased by 0.34 %
- Est letting value
- 628.00 £/moUnchanged by 0.00 %
- Est rental Yield
- 3.99 %Decreased by 5.67 %
- Crime Rate
- 4.00 %Unchanged by 0.00 %
from 421,604.00 £
from 213,520.00 £
from 1,485.00 £/mo
from 628.00 £/mo
from 4.23 %
from 4.00 %
Agent Activity
Northwood created the listing.
Nearby Schools
| Name | Type | Ofsted | Distance |
|---|---|---|---|
| Ireland Wood Children'S Centre | Children's Centre | 0.78 KM | |
| Holy Name Catholic Voluntary Academy | Academy Sponsor Led | Good | 0.78 KM |
| Ireland Wood Primary School | Foundation School | Good | 0.81 KM |
| Iveson Primary School | Foundation School | Good | 1.14 KM |
| Ralph Thoresby School | Foundation School | Good | 1.30 KM |
Images
Nearby Streets
| Name | Average Price | Average Sqft | Distance |
|---|---|---|---|
| Chestnut Drive | £ 0 | 0 | 0.00 KM |
| St Helen's Lane | £ 1,037,500 | 0 | 0.00 KM |
| Woodlands Grove | £ 435,000 | 0 | 0.00 KM |
| The Meadows | £ 1,150,000 | 0 | 0.00 KM |
| Walsh Court | £ 0 | 0 | 0.00 KM |
Nearby Transport
| Name | NLC | TLC | Distance |
|---|---|---|---|
| Horsforth | 8499 | HRS | 3.57 KM |
| Headingley | 8498 | HDY | 3.62 KM |
| Kirkstall Forge | 6544 | KLF | 4.00 KM |
| Burley Park | 8500 | BUY | 4.81 KM |
| Bramley (West Yorkshire) | 8496 | BLE | 6.61 KM |
Nearby Listings
| Address | Price | Type | Score | Distance |
|---|---|---|---|---|
| Redesdale Gardens, Adel, Leeds, LS16 | £ 150,000 | BUY | 7 / 10 | 0.00 KM |
| Redesdale Gardens, Leeds, West Yorkshire, LS16 | £ 110,000 | BUY | 6 / 10 | 0.01 KM |
| Otterburn Gardens, Adel, Leeds, West Yorkshire | £ 190,000 | BUY | 7 / 10 | 0.06 KM |
| Redesdale Gardens, Leeds, West Yorkshire | £ 160,000 | BUY | 7 / 10 | 0.06 KM |
| New Adel Lane, Leeds, West Yorkshire, LS16 | £ 150,000 | BUY | 7 / 10 | 0.07 KM |
Nearby Properties
| Address | Price | Distance |
|---|---|---|
| 10 Otterburn Gardens | £ 49,250 | 0.04 KM |
| 14 Otterburn Gardens | £ 90,000 | 0.04 KM |
| 2 Otterburn Gardens | £ 110,000 | 0.04 KM |
| 20 Otterburn Gardens | £ 124,500 | 0.04 KM |
| 3 Otterburn Gardens | £ 143,000 | 0.04 KM |