91 Elder Street, Flat 0/3, Govan, Glasgow, G51 3NJ
By Clyde Property
£ 129,000
Reviews
4 out of 5 stars
Clyde Property says ..
Enjoying a prime ground floor position within a modern and attractive development, this bright and spacious two-bedroom apartment offers contemporary living in one of Govan’s most desirable locations.
Property Oracle says ..
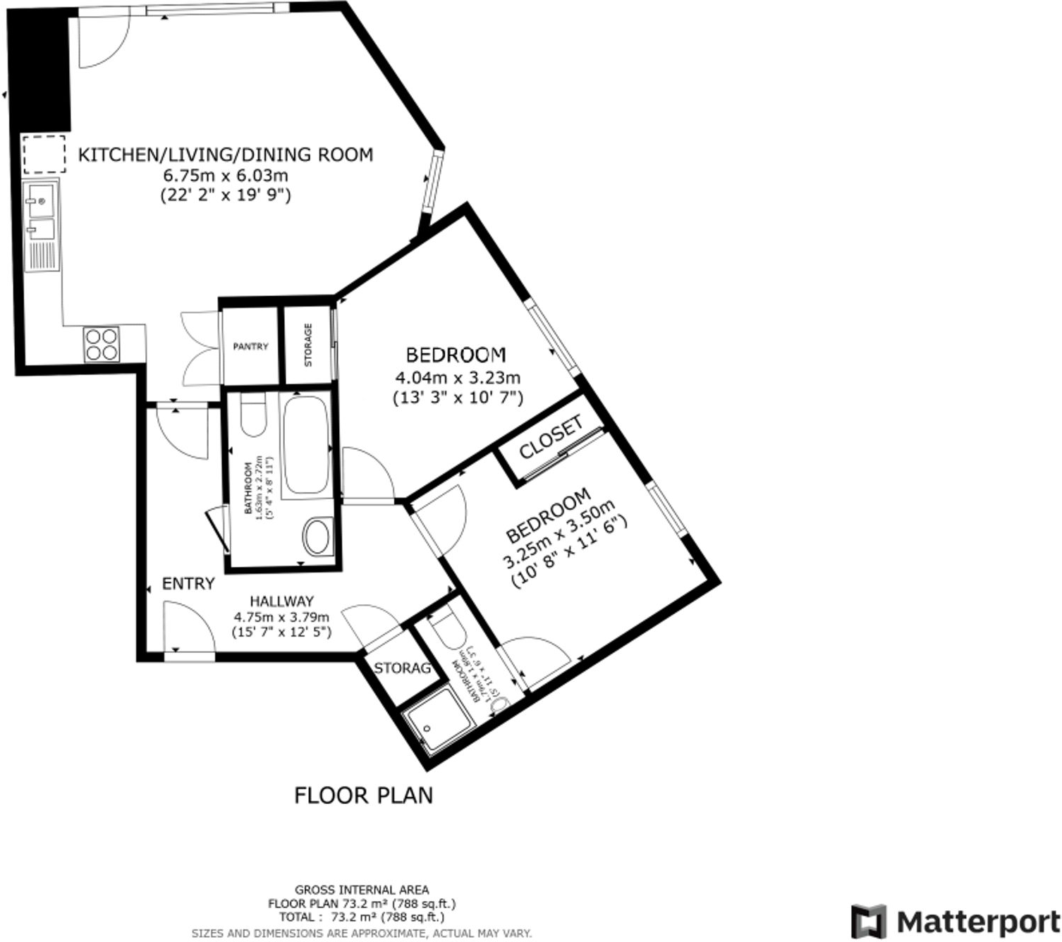
This property is a 2 bedroom, 2 bathroom flat located in Govan, Glasgow. Based on the images, the property appears to be in excellent condition, recently renovated to a modern standard. The flat is part of a modern development, with communal green space and parking. The location is convenient with several train stations within a reasonable distance. The list price of £129,000 is slightly above the average price for the area (£127,318), however, considering the modern condition, the additional square footage (990 sq ft vs average 813 sq ft) and the inclusion of parking, the price appears reasonable.
Therefore, we give this property 8 / 10. *Disclaimer: This is our option and does constitute a recommendation or financial advice. Do your own research. *
- Price
- 8
- Condition
- 10
- Location
- 7
- Land
- 7
- Bedrooms
- 2
- Bathrooms
- 2
- Sqft (est)
- 990.23
- Lot (est)
- 787.92
The heatmap indicates the level of crime in the area. The color of the heatmap indicates the crime severity and recency.
Metrics Year-on-Year
- Average area value
- 142,423.00 £Decreased by 11.64 %
- Est sale value
- 206,958.07 £Increased by 1.46 %
- Average area rental value
- 1,376.00 £/moIncreased by 33.59 %
- Est letting value
- 1,980.46 £/moIncreased by 100.00 %
- Est rental Yield
- 11.59 %Increased by 51.11 %
- Crime Rate
- 0.00 %
Agent Activity
Clyde Property created the listing.
Images
Nearby Streets
| Name | Average Price | Average Sqft | Distance |
|---|---|---|---|
| Garmouth Court | £ 0 | 0 | 0.00 KM |
| Fairfield Place | £ 130,000 | 0 | 0.00 KM |
| Garmouth Place | £ 0 | 0 | 0.00 KM |
| Rathlin Street | £ 0 | 0 | 0.00 KM |
| Napier Road | £ 0 | 0 | 0.00 KM |
Nearby Transport
| Name | NLC | TLC | Distance |
|---|---|---|---|
| Partick | 9917 | PTK | 1.31 KM |
| Hyndland | 9845 | HYN | 2.00 KM |
| Jordanhill | 9995 | JOR | 2.44 KM |
| Dumbreck | 9622 | DUM | 2.64 KM |
| Cardonald | 9624 | CDO | 2.76 KM |
Nearby Listings
| Address | Price | Type | Score | Distance |
|---|---|---|---|---|
| 91 Elder Street, Flat 0/3, Govan, Glasgow, G51 3NJ | £ 129,000 | BUY | 8 / 10 | 0.00 KM |
| Harhill Street, Glasgow, G51 | £ 130,000 | BUY | 7 / 10 | 0.10 KM |
| Elder Street, Glasgow, G51 | £ 140,000 | BUY | 5 / 10 | 0.10 KM |
| Elder Street, Glasgow, G51 | £ 135,000 | BUY | Unknown | 0.10 KM |
| Golspie Street, Govan, G51 | £ 160,000 | BUY | 6 / 10 | 0.14 KM |