AM
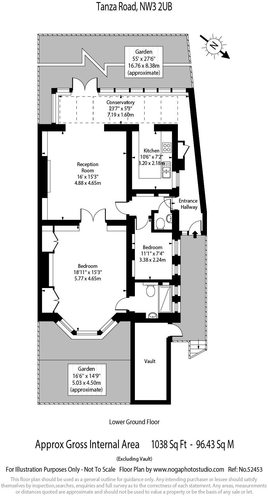
Tanza Road, Hampstead NW3
By Amberden Estates
£ 1,325,000
Reviews
4 out of 5 stars
Amberden Estates says ..
A rarely available two bedroom flat (1,038 Sq Ft - 96.43 Sq M), with a private, 55’ south-west facing garden, moments from Hampstead Heath.
Property Oracle says ..
Therefore, we give this property 8 / 10. *Disclaimer: This is our option and does constitute a recommendation or financial advice. Do your own research. *
- Price
- 8
- Condition
- 8
- Location
- 9
- Land
- 7
- Bedrooms
- 2
- Bathrooms
- 1
- Sqft (est)
- 1,038.00
The heatmap indicates the level of crime in the area. The color of the heatmap indicates the crime severity and recency.
Metrics Year-on-Year
- Average area value
- 2,218,571.00 £Increased by 9.99 %
- Est sale value
- 1,940,022.00 £Increased by 16.30 %
- Average area rental value
- 3,652.00 £/moIncreased by 18.30 %
- Est letting value
- 3,114.00 £/moIncreased by 50.00 %
- Est rental Yield
- 1.98 %Increased by 7.61 %
- Crime Rate
- 3.00 %Unchanged by 0.00 %
from 2,017,148.00 £
from 1,668,066.00 £
from 3,087.00 £/mo
from 2,076.00 £/mo
from 1.84 %
from 3.00 %
Agent Activity
Amberden Estates created the listing.
Nearby Schools
| Name | Type | Ofsted | Distance |
|---|---|---|---|
| Ccfl Key Stage 4 Pru | Pupil Referral Unit | Good | 0.41 KM |
| Fleet Primary School | Community School | Good | 0.47 KM |
| Royal Free Hospital Children'S School | Community Special School | Outstanding | 0.65 KM |
| St Dominic'S Catholic Primary School | Voluntary Aided School | Good | 0.74 KM |
| Rosary Catholic Primary School | Voluntary Aided School | Good | 0.86 KM |
Images
Nearby Streets
| Name | Average Price | Average Sqft | Distance |
|---|---|---|---|
| Fleet Road | £ 950,000 | 0 | 0.00 KM |
| Tranley Mews | £ 0 | 0 | 0.00 KM |
| South End Green | £ 0 | 0 | 0.00 KM |
| Mall Studios | £ 0 | 0 | 0.00 KM |
| The Mall Studios | £ 0 | 0 | 0.00 KM |
Nearby Transport
| Name | NLC | TLC | Distance |
|---|---|---|---|
| Hampstead Heath | 1413 | HDH | 0.56 KM |
| Gospel Oak | 1409 | GPO | 1.16 KM |
| Kentish Town West | 1449 | KTW | 1.99 KM |
| Kentish Town | 1553 | KTN | 2.41 KM |
| Finchley Road And Frognal | 1445 | FNY | 2.56 KM |
Nearby Listings
| Address | Price | Type | Score | Distance |
|---|---|---|---|---|
| Tanza Road, Hampstead NW3 | £ 1,325,000 | BUY | 8 / 10 | 0.00 KM |
| Tanza Road, Hampstead NW3 | £ 795,000 | BUY | 7 / 10 | 0.05 KM |
| Nassington Road, London | £ 850,000 | BUY | 8 / 10 | 0.08 KM |
| 17d Nassington Road, Hampstead, London, NW3 2TX | £ 600,000 | BUY | 5 / 10 | 0.14 KM |
| Parliament Hill, London, NW3 | £ 8,500,000 | BUY | 8 / 10 | 0.14 KM |
Nearby Properties
| Address | Price | Distance |
|---|---|---|
| 8a Tanza Road | £ 358,000 | 0.00 KM |
| 21 Tanza Road | £ 4,900,000 | 0.05 KM |
| 35 Tanza Road | £ 4,675,000 | 0.05 KM |
| 11 Tanza Road | £ 2,250,000 | 0.05 KM |
| 7 Tanza Road | £ 4,425,000 | 0.05 KM |