Littlefield Road, Alton, Hampshire, GU34
By British Homesellers
£ 330,000
Reviews
3 out of 5 stars
British Homesellers says ..
Charming Two-Bedroom Terraced Home with Garden in Alton. This charming terraced home is set in a desirable part of Alton, offering a welcoming feel from the moment you step inside. The property provides a well-balanced layout that suits a variety of buyers, from first-time purchasers t...
Property Oracle says ..
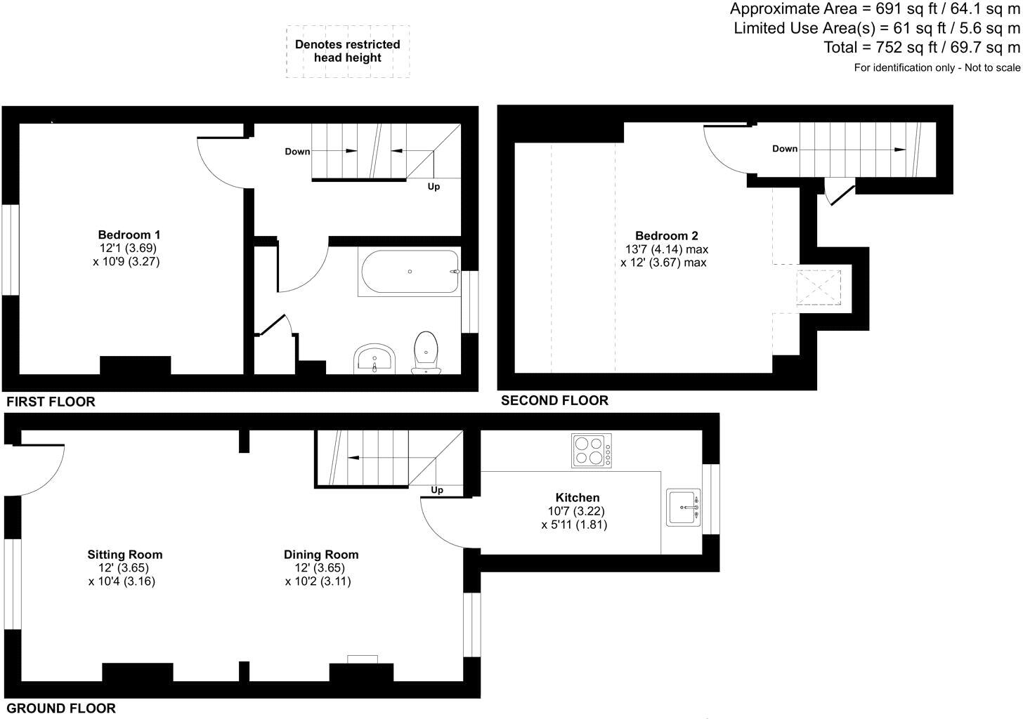
This is a two-bedroom terraced house located on Littlefield Road in Alton, Hampshire. The property is within close proximity to local schools and the Alton train station. The house is in need of some modernisation, particularly in the kitchen and bathroom. The property includes a garden that requires some maintenance. The listing price is £330,000, which is slightly above the average for the area, but may be justified by the location and potential for improvement.
Therefore, we give this property 6 / 10. *Disclaimer: This is our option and does constitute a recommendation or financial advice. Do your own research. *
- Price
- 7
- Condition
- 5
- Location
- 7
- Land
- 6
- Bedrooms
- 2
- Bathrooms
- 1
- Sqft (est)
- 752.00
The heatmap indicates the level of crime in the area. The color of the heatmap indicates the crime severity and recency.
Metrics Year-on-Year
- Average area value
- 317,500.00 £Increased by 26.46 %
- Est sale value
- 208,304.00 £Increased by 11.69 %
- Average area rental value
- 900.00 £/moDecreased by 13.71 %
- Est letting value
- 0.00 £/moDecreased by 100.00 %
- Est rental Yield
- 3.40 %Decreased by 31.86 %
- Crime Rate
- 23.00 %Unchanged by 0.00 %
Agent Activity
British Homesellers created the listing.
Nearby Schools
| Name | Type | Ofsted | Distance |
|---|---|---|---|
| Bushy Leaze Children'S Centre | Children's Centre | 0.10 KM | |
| Alton Infant School | Community School | Good | 0.14 KM |
| Anstey Junior School | Community School | Good | 0.21 KM |
| Bushy Leaze Early Years Centre | Local Authority Nursery School | Outstanding | 0.21 KM |
| Saint Lawrence Church Of England Primary School | Voluntary Controlled School | Good | 0.75 KM |
Images
Nearby Streets
| Name | Average Price | Average Sqft | Distance |
|---|---|---|---|
| Alexandra Road | £ 300,000 | 0 | 0.00 KM |
| Kingsmead | £ 0 | 0 | 0.00 KM |
| Porter Street | £ 0 | 0 | 0.00 KM |
| Copper Lane | £ 0 | 0 | 0.00 KM |
| Charrington Close | £ 0 | 0 | 0.00 KM |
Nearby Transport
| Name | NLC | TLC | Distance |
|---|---|---|---|
| Alton | 5544 | AON | 0.40 KM |
Nearby Listings
| Address | Price | Type | Score | Distance |
|---|---|---|---|---|
| Littlefield Road, Alton, Hampshire, GU34 | £ 335,000 | BUY | 5 / 10 | 0.00 KM |
| Littlefield Road, Alton, Hampshire, GU34 | £ 330,000 | BUY | 6 / 10 | 0.00 KM |
| Victoria Road, Alton, Hampshire, GU34 | £ 325,000 | BUY | 6 / 10 | 0.05 KM |
| Littlefield Road, Alton, Hampshire, GU34 | £ 450,000 | BUY | 7 / 10 | 0.06 KM |
| Normandy Street, Alton, Hampshire, GU34 | £ 194,000 | BUY | 7 / 10 | 0.10 KM |
Nearby Properties
| Address | Price | Distance |
|---|---|---|
| 10 Littlefield Road | £ 289,950 | 0.01 KM |
| 18 Littlefield Road | £ 250,000 | 0.01 KM |
| 6 Littlefield Road | £ 330,000 | 0.01 KM |
| 3 Littlefield Road | £ 295,000 | 0.01 KM |
| 8 Littlefield Road | £ 185,000 | 0.01 KM |