Barnard Marcus says ..
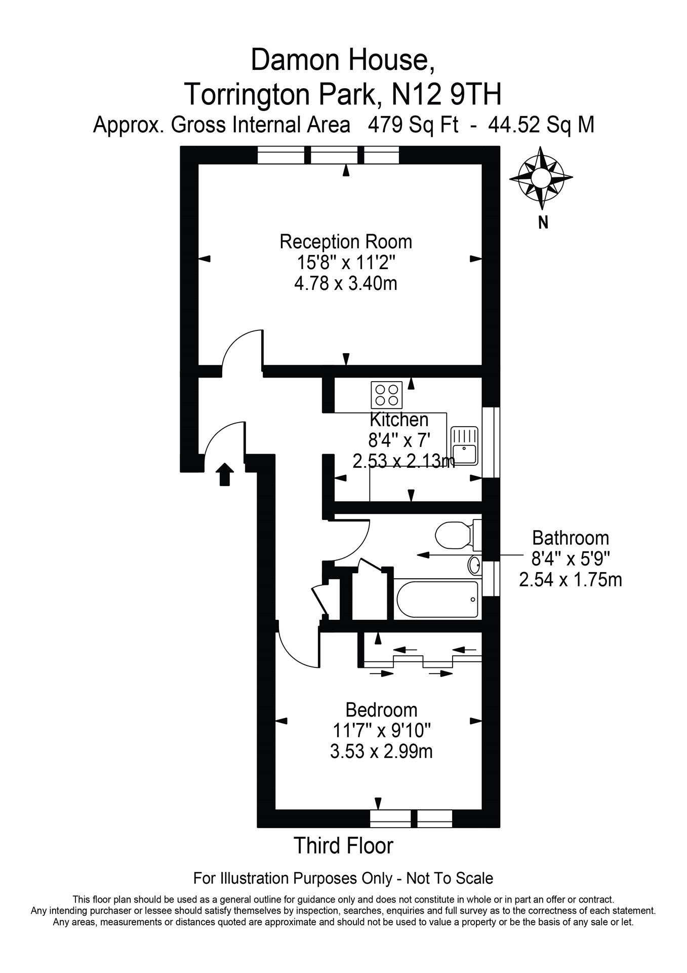
Situated on the third floor of Damon House, this one bedroom apartment offers well-proportioned accommodation in a popular North Finchley location.
Property Oracle says ..
This one bedroom flat is located in Torrington Park, London. The property is conveniently located near several schools, including Northside Primary School (rated Outstanding by Ofsted) and Wren Academy Finchley (also rated Outstanding). Public transport links are also within a reasonable distance, with Oakleigh Park station being approximately 2.5km away. The flat itself is of modest size (479.21 sqft) and appears to be in reasonable condition, although some modernisation may be desirable. The kitchen and bathroom appear dated but functional. The property benefits from access to communal garden space. Considering the average price per sqft in the area is £431, and this property is listed at £200,000, the price may be considered competitive, especially given its proximity to good schools and transport.
Therefore, we give this property 6 / 10. *Disclaimer: This is our option and does constitute a recommendation or financial advice. Do your own research. *
- Price
- 7
- Condition
- 6
- Location
- 8
- Land
- 4
- Bedrooms
- 1
- Bathrooms
- 1
- Sqft (est)
- 479.21
The heatmap indicates the level of crime in the area. The color of the heatmap indicates the crime severity and recency.
Metrics Year-on-Year
- Average area value
- 461,429.00 £Increased by 13.94 %
- Est sale value
- 264,523.92 £Increased by 13.58 %
- Average area rental value
- 1,822.00 £/moIncreased by 0.77 %
- Est letting value
- 958.42 £/moUnchanged by 0.00 %
- Est rental Yield
- 4.74 %Decreased by 11.57 %
- Crime Rate
- 5.00 %Unchanged by 0.00 %
Agent Activity
Barnard Marcus created the listing.
Nearby Schools
| Name | Type | Ofsted | Distance |
|---|---|---|---|
| Woodside School | Other Independent Special School | 0.21 KM | |
| Sacks Morasha Jewish Primary School | Academy Converter | 0.23 KM | |
| Northside Primary School | Community School | Outstanding | 0.58 KM |
| St Michael'S Catholic Grammar School | Voluntary Aided School | Outstanding | 0.78 KM |
| Wren Academy Finchley | Academy Sponsor Led | Outstanding | 0.80 KM |
Images
Nearby Streets
| Name | Average Price | Average Sqft | Distance |
|---|---|---|---|
| Castle Mews | £ 0 | 0 | 0.00 KM |
| High Road | £ 0 | 0 | 0.00 KM |
| A1003 | £ 379,000 | 0 | 0.00 KM |
| Coleridge Road | £ 0 | 0 | 0.00 KM |
| Woodside Court | £ 850,000 | 0 | 0.00 KM |
Nearby Transport
| Name | NLC | TLC | Distance |
|---|---|---|---|
| Oakleigh Park | 6020 | OKL | 2.50 KM |
| New Southgate | 6019 | NSG | 3.45 KM |
| New Barnet | 6018 | NBA | 3.55 KM |
| Hadley Wood | 6075 | HDW | 5.77 KM |
| Bowes Park | 6027 | BOP | 6.02 KM |
Nearby Listings
| Address | Price | Type | Score | Distance |
|---|---|---|---|---|
| Torrington Park, London | £ 200,000 | BUY | 6 / 10 | 0.00 KM |
| Torrington Park, North Finchley, London, N12 | £ 300,000 | BUY | Unknown | 0.04 KM |
| Fairfield Close, Finchley, N12 | £ 295,000 | BUY | 7 / 10 | 0.08 KM |
| Torrington Park, North Finchley, London, N12 | £ 1,600,000 | BUY | 8 / 10 | 0.10 KM |
| Fairfield Close, North Finchley, N12 | £ 300,000 | BUY | Unknown | 0.12 KM |
Nearby Properties
| Address | Price | Distance |
|---|---|---|
| 41 Torrington Park | £ 115,000 | 0.10 KM |
| 45 Torrington Park | £ 1,300,000 | 0.10 KM |
| 8 Torrington Close | £ 425,000 | 0.10 KM |
| 1 Torrington Close | £ 270,000 | 0.10 KM |
| 4 Torrington Close | £ 425,000 | 0.10 KM |