Platt Lane, Standish, Wigan
By Tracy Phillips Estates
£ 210,000
Reviews
3 out of 5 stars
Tracy Phillips Estates says ..
A Charming Two-Bedroom Cottage with Open Views and Off-Road Parking Enjoying a delightful position with lovely open views to both the front and rear, this beautiful two-bedroom cottage combines character, comfort, and convenience. The property has been tastefully renovated to create a warm and...
Property Oracle says ..
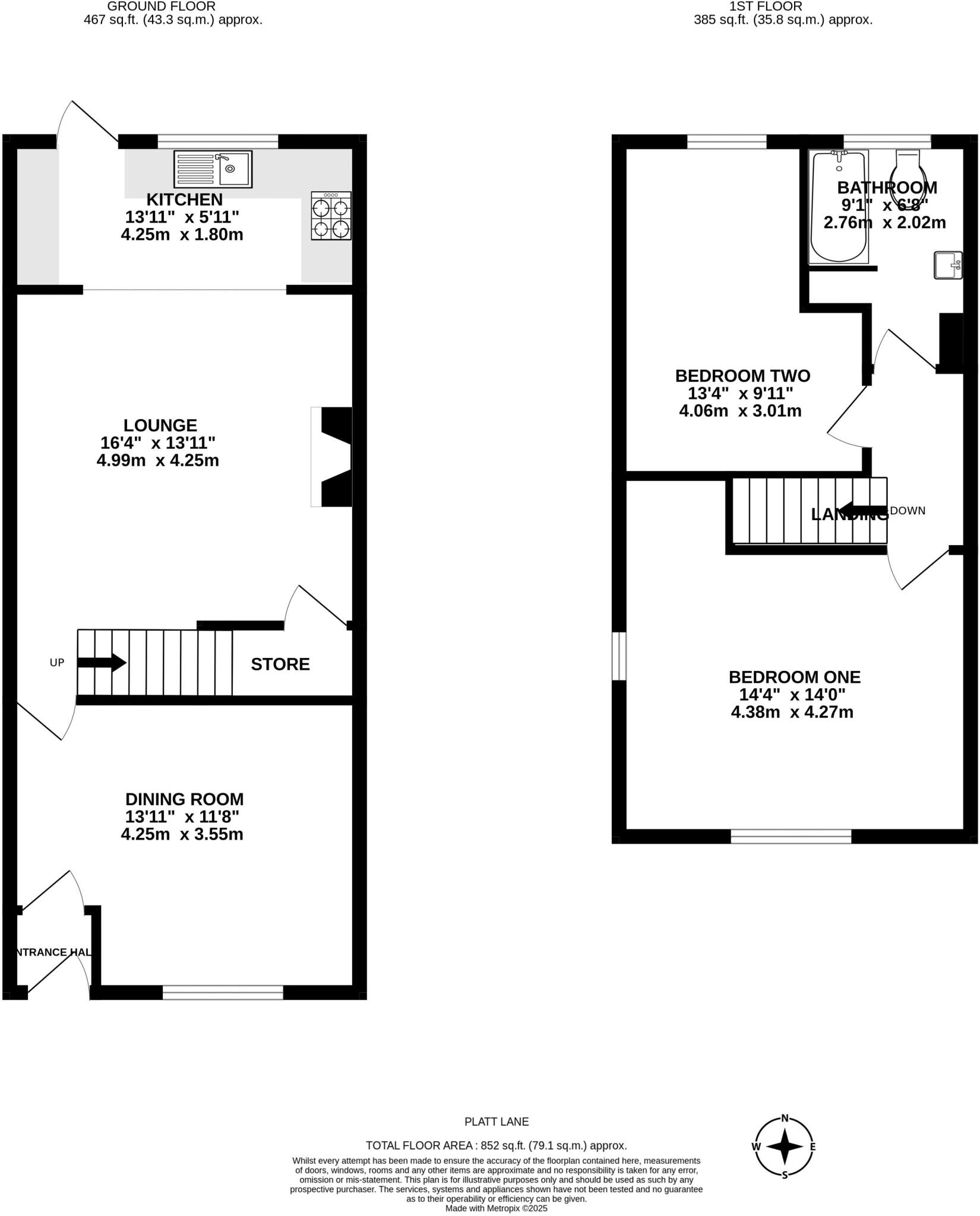
This is a two-bedroom end-of-terrace property located on Platt Lane in Standish, Wigan. The property is in a reasonable condition, with a modern kitchen and bathroom. However, some of the rooms are a little dated and could benefit from some redecoration. The property has a small garden to the rear, which is mainly laid to gravel. There is also a small patio area. The property is listed for £210,000, which is slightly above the average price for a two-bedroom end-of-terrace property in the area. However, the property is in reasonable condition and has a garden, which may justify the higher price. The property is located in a desirable area with good schools and amenities. However, the property is located on a busy road, which may be a concern for some buyers.
Therefore, we give this property 6 / 10. *Disclaimer: This is our option and does constitute a recommendation or financial advice. Do your own research. *
- Price
- 7
- Condition
- 7
- Location
- 6
- Land
- 6
- Bedrooms
- 2
- Bathrooms
- 1
- Sqft (est)
- 265.76
The heatmap indicates the level of crime in the area. The color of the heatmap indicates the crime severity and recency.
Metrics Year-on-Year
- Average area value
- 254,758.00 £Increased by 10.42 %
- Est sale value
- 72,020.96 £Increased by 24.88 %
- Average area rental value
- 938.00 £/moDecreased by 4.58 %
- Est letting value
- 0.00 £/mo
- Est rental Yield
- 4.42 %Decreased by 13.50 %
- Crime Rate
- 48.00 %Unchanged by 0.00 %
Agent Activity
Tracy Phillips Estates created the listing.
Nearby Schools
| Name | Type | Ofsted | Distance |
|---|---|---|---|
| Standish St Wilfrid'S Church Of England Primary Academy | Academy Converter | 1.91 KM | |
| Standish & Aspull Children'S Centre | Children's Centre Linked Site | 1.97 KM | |
| St Marie'S Catholic Primary School Standish | Voluntary Aided School | Outstanding | 2.62 KM |
| Wood Fold Primary School | Community School | Outstanding | 3.11 KM |
| Coppull Parish Church Of England Primary School | Voluntary Aided School | Good | 3.47 KM |
Images
Nearby Streets
| Name | Average Price | Average Sqft | Distance |
|---|---|---|---|
| Bradley Lane | £ 167,500 | 0 | 0.00 KM |
| White Bridge Close | £ 0 | 0 | 0.00 KM |
| North Union Drive | £ 0 | 0 | 0.00 KM |
| Bracken Close | £ 240,000 | 0 | 0.00 KM |
| Bramble Close | £ 399,950 | 0 | 0.00 KM |
Nearby Transport
| Name | NLC | TLC | Distance |
|---|---|---|---|
| Adlington (Lancashire) | 2641 | ADL | 4.60 KM |
| Wigan Wallgate | 2406 | WGW | 5.88 KM |
| Wigan North Western | 2363 | WGN | 6.01 KM |
| Chorley | 2745 | CRL | 6.38 KM |
| Gathurst | 2397 | GST | 7.20 KM |
Nearby Listings
| Address | Price | Type | Score | Distance |
|---|---|---|---|---|
| Platt Lane, Standish, Wigan | £ 200,000 | BUY | Unknown | 0.00 KM |
| Platt Lane, Standish, Wigan | £ 210,000 | BUY | 6 / 10 | 0.00 KM |
| Platt Lane, Standish | £ 210,000 | BUY | 7 / 10 | 0.00 KM |
| Platt Lane, Standish, Wigan | £ 130,000 | BUY | 5 / 10 | 0.00 KM |
| Platt Lane, Standish, WN1 | £ 190,000 | BUY | 6 / 10 | 0.03 KM |
Nearby Properties
| Address | Price | Distance |
|---|---|---|
| 4 Platt Lane | £ 195,000 | 0.01 KM |
| 16 Platt Lane | £ 107,500 | 0.01 KM |
| 12 Platt Lane | £ 142,000 | 0.01 KM |
| 13 Platt Lane | £ 122,000 | 0.01 KM |
| 14 Platt Lane | £ 158,250 | 0.01 KM |