Acorn says ..
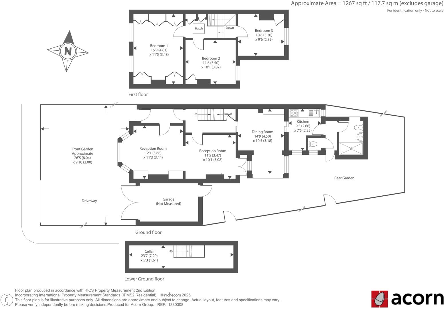
** GUIDE PRICE £625,000 - £650,000 ** Acorn are pleased to welcome to the market on Algernon Road, in the heart of Lewisham, this substantial three-bedroom, two reception plus dining room, semi-detached period house, with gas central heating (not tested), approximately 1,26...
Property Oracle says ..
This is a 3-bedroom house located on Algernon Road, Ladywell, London. The property requires significant renovation but offers a good opportunity for buyers looking to add value. The location is a strong point, with good access to transportation and schools. The garden is small and needs work. The price is relatively competitive, considering the size and location, but reflects the need for extensive refurbishment.
Therefore, we give this property 5 / 10. *Disclaimer: This is our option and does constitute a recommendation or financial advice. Do your own research. *
- Price
- 7
- Condition
- 3
- Location
- 7
- Land
- 4
- Bedrooms
- 3
- Bathrooms
- 1
- Sqft (est)
- 1,267.00
The heatmap indicates the level of crime in the area. The color of the heatmap indicates the crime severity and recency.
Metrics Year-on-Year
- Average area value
- 833,500.00 £Increased by 17.46 %
- Est sale value
- 1,080,751.00 £Increased by 26.18 %
- Average area rental value
- 1,579.00 £/moDecreased by 30.26 %
- Est letting value
- 1,267.00 £/moDecreased by 50.00 %
- Est rental Yield
- 2.27 %Decreased by 40.73 %
- Crime Rate
- 4.00 %Unchanged by 0.00 %
Agent Activity
Acorn created the listing.
Nearby Schools
| Name | Type | Ofsted | Distance |
|---|---|---|---|
| Prendergast Vale School | Foundation School | Good | 0.29 KM |
| Tlg Lewisham | Other Independent School | Good | 0.46 KM |
| Quaggy Children'S Centre | Children's Centre | 0.73 KM | |
| Morden Mount Primary School | Community School | Good | 0.78 KM |
| Ashmead Primary School | Community School | Good | 0.92 KM |
Images
Nearby Streets
| Name | Average Price | Average Sqft | Distance |
|---|---|---|---|
| Silver Road | £ 0 | 0 | 0.00 KM |
| Whitepost Lane | £ 0 | 0 | 0.00 KM |
| Yew Tree Close | £ 0 | 0 | 0.00 KM |
| Junction Approach | £ 0 | 0 | 0.00 KM |
| Orchard Hill | £ 0 | 0 | 0.00 KM |
Nearby Transport
| Name | NLC | TLC | Distance |
|---|---|---|---|
| Lewisham | 5051 | LEW | 0.54 KM |
| St Johns | 5059 | SAJ | 0.71 KM |
| Ladywell | 5057 | LAD | 0.91 KM |
| Greenwich | 5146 | GNW | 1.64 KM |
| Deptford | 5145 | DEP | 1.81 KM |
Nearby Listings
| Address | Price | Type | Score | Distance |
|---|---|---|---|---|
| Algernon Road, London | £ 625,000 | BUY | 5 / 10 | 0.00 KM |
| Algernon Road, Lewisham, London, SE13 | £ 650,000 | BUY | Unknown | 0.02 KM |
| Algernon Road, London | £ 425,000 | BUY | 6 / 10 | 0.04 KM |
| Algernon Road, Lewisham, London, SE13 | £ 425,000 | BUY | 6 / 10 | 0.04 KM |
| Algernon Road, Ladywell, London, SE13 | £ 850,000 | BUY | Unknown | 0.06 KM |
Nearby Properties
| Address | Price | Distance |
|---|---|---|
| 10 Algernon Road | £ 660,000 | 0.03 KM |
| 27 Algernon Road | £ 280,000 | 0.03 KM |
| 28 Algernon Road | £ 500,000 | 0.03 KM |
| 18 Algernon Road | £ 615,000 | 0.03 KM |
| 19 Algernon Road | £ 625,000 | 0.03 KM |