Chilbolton Avenue, Winchester, SO22
By Dybles
£ 1,100,000
Reviews
3 out of 5 stars
Dybles says ..
Stunning apartment with panoramic views over Royal Winchester Golf Club, offering no forward chain.
Property Oracle says ..
Therefore, we give this property 7 / 10. *Disclaimer: This is our option and does constitute a recommendation or financial advice. Do your own research. *
- Price
- 6
- Condition
- 9
- Location
- 8
- Land
- 8
- Bedrooms
- 3
- Bathrooms
- 2
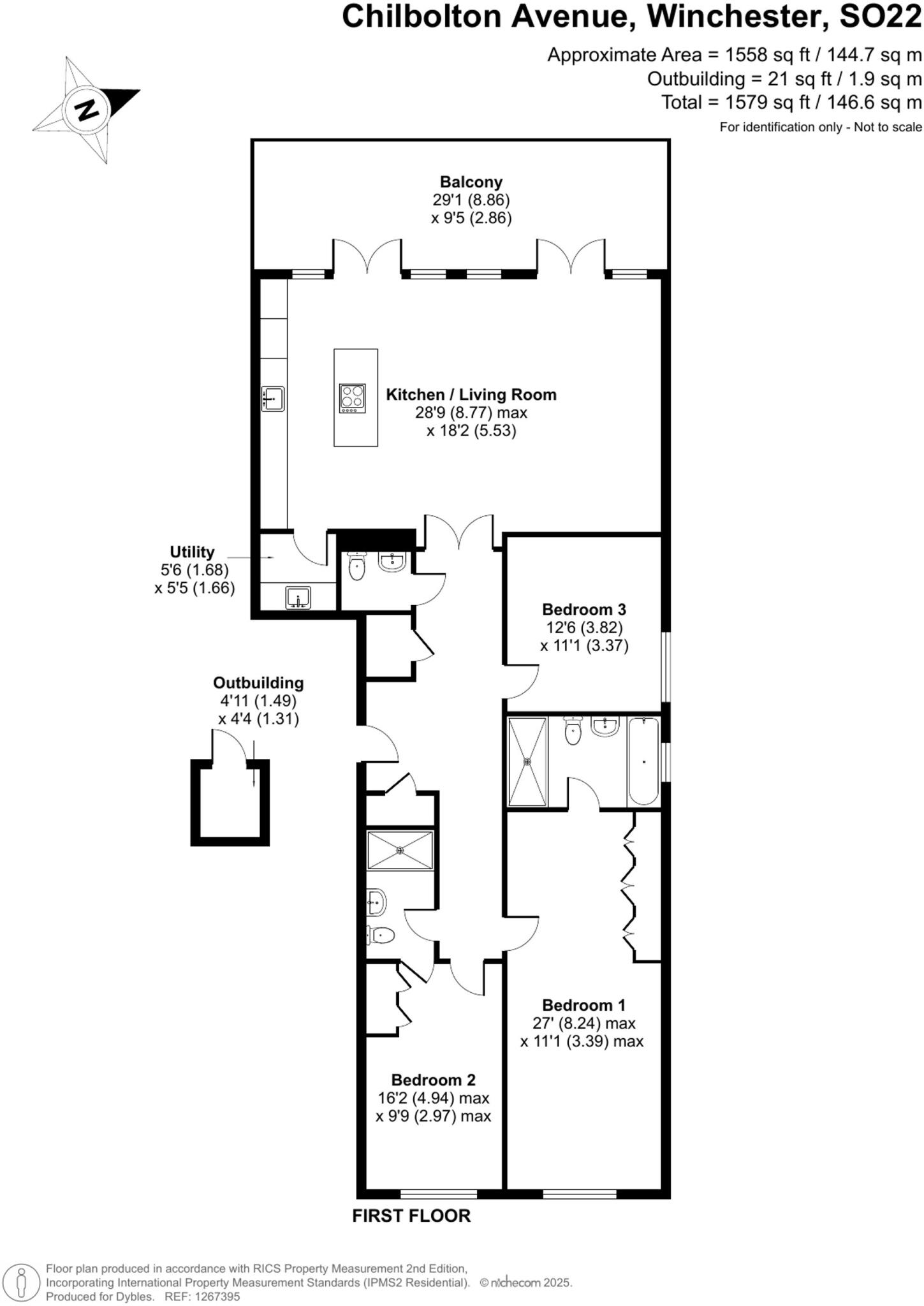
- Sqft (est)
- 1,445.14
The heatmap indicates the level of crime in the area. The color of the heatmap indicates the crime severity and recency.
Metrics Year-on-Year
- Average area value
- 670,260.00 £Decreased by 11.72 %
- Est sale value
- 897,431.94 £Increased by 33.84 %
- Average area rental value
- 1,555.00 £/moDecreased by 21.82 %
- Est letting value
- 1,445.14 £/moUnchanged by 0.00 %
- Est rental Yield
- 2.78 %Decreased by 11.46 %
- Crime Rate
- 1.00 %Unchanged by 0.00 %
from 759,256.00 £
from 670,544.96 £
from 1,989.00 £/mo
from 1,445.14 £/mo
from 3.14 %
from 1.00 %
Agent Activity
Dybles marked this listing as sold.
Dybles created the listing.
Nearby Schools
| Name | Type | Ofsted | Distance |
|---|---|---|---|
| Western Church Of England Primary School | Voluntary Controlled School | Good | 0.64 KM |
| Kings' School | Community School | Outstanding | 1.00 KM |
| The Westgate School | Community School | Good | 1.06 KM |
| The Carroll Children'S Centre | Children's Centre Linked Site | 1.30 KM | |
| University Of Winchester | Higher Education Institutions | 1.35 KM |
Images
Nearby Streets
| Name | Average Price | Average Sqft | Distance |
|---|---|---|---|
| Royal Crescent | £ 78,750 | 0 | 0.00 KM |
| Ashmore Road | £ 950,000 | 0 | 0.00 KM |
| Old Romsey Road | £ 0 | 0 | 0.00 KM |
| Kings Road | £ 1,050,000 | 0 | 0.00 KM |
| Queens Mead | £ 1,150,000 | 0 | 0.00 KM |
Nearby Transport
| Name | NLC | TLC | Distance |
|---|---|---|---|
| Winchester | 5924 | WIN | 2.14 KM |
| Shawford | 5929 | SHW | 4.74 KM |
Nearby Listings
| Address | Price | Type | Score | Distance |
|---|---|---|---|---|
| Chilbolton Avenue, Winchester, SO22 | £ 1,100,000 | BUY | 7 / 10 | 0.00 KM |
| Chilbolton Avenue, Winchester, Hampshire, SO22 | £ 325,000 | BUY | 8 / 10 | 0.10 KM |
| Winchester | £ 425,000 | BUY | 7 / 10 | 0.13 KM |
| Winchester | £ 300,000 | BUY | 7 / 10 | 0.14 KM |
| Fraser Gardens, Winchester, Hampshire, SO22 | £ 1,100,000 | BUY | 7 / 10 | 0.18 KM |
Nearby Properties
| Address | Price | Distance |
|---|---|---|
| 12 Chilbolton Avenue | £ 675,000 | 0.11 KM |
| 10 Chilbolton Avenue | £ 425,000 | 0.11 KM |
| 18 Chilbolton Avenue | £ 1,320,000 | 0.13 KM |
| 26 Chilbolton Avenue | £ 15,000 | 0.13 KM |
| 16 Chilbolton Avenue | £ 915,000 | 0.13 KM |