Cantlow Fold, Southport, Merseyside, PR8
By Spencer Gordon
£ 395,950
Reviews
3 out of 5 stars
Spencer Gordon says ..
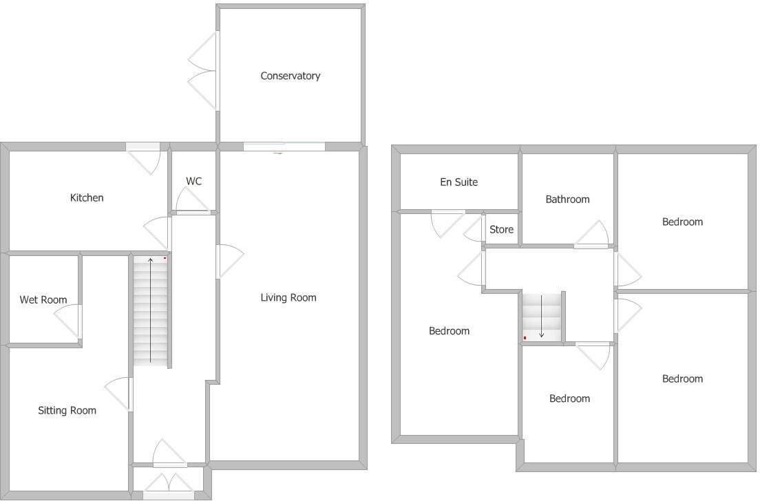
Spacious accommodation throughout (SEE FLOORPLAN), early viewings are advised to see exactly what is on offer here. Versatile layout, can be used as five bedrooms or extra reception space, three bathrooms, private garden and driveway. Excellent residential location, quiet, yet close to village.
Property Oracle says ..
This is a detached property located on Cantlow Fold, Southport. It features five bedrooms and three bathrooms, with a square footage of 1,490. The property includes a garden with a shed and patio area. The house is situated in a convenient location, close to local schools and transportation links. While generally well-maintained, some areas could benefit from cosmetic updates. The asking price of £395,950 appears reasonable compared to the average price per square foot in the area.
Therefore, we give this property 7 / 10. *Disclaimer: This is our option and does constitute a recommendation or financial advice. Do your own research. *
- Price
- 8
- Condition
- 7
- Location
- 7
- Land
- 7
- Bedrooms
- 5
- Bathrooms
- 3
- Sqft (est)
- 1,490.00
The heatmap indicates the level of crime in the area. The color of the heatmap indicates the crime severity and recency.
Metrics Year-on-Year
- Average area value
- 350,455.00 £Increased by 5.50 %
- Est sale value
- 470,840.00 £Increased by 24.41 %
- Average area rental value
- 10,875.00 £/moIncreased by 953.78 %
- Est letting value
- 13,410.00 £/mo
- Est rental Yield
- 37.24 %Increased by 898.39 %
- Crime Rate
- 23.00 %Unchanged by 0.00 %
Agent Activity
Spencer Gordon created the listing.
Nearby Schools
| Name | Type | Ofsted | Distance |
|---|---|---|---|
| Shoreside Primary School | Academy Sponsor Led | 0.11 KM | |
| Merefield School | Community Special School | Outstanding | 0.53 KM |
| Kings Meadow Primary School And Early Years Education Centre | Community School | Good | 2.02 KM |
| Kings Meadow Children'S Centre | Children's Centre Linked Site | 2.02 KM | |
| Ainsdale St John'S Church Of England Primary School | Voluntary Aided School | Outstanding | 2.34 KM |
Images
Nearby Streets
| Name | Average Price | Average Sqft | Distance |
|---|---|---|---|
| Kingsbury Close | £ 0 | 0 | 0.00 KM |
| Sevenoaks Avenue | £ 0 | 0 | 0.00 KM |
| Petworth Road | £ 380,000 | 0 | 0.00 KM |
| Penrith Avenue | £ 0 | 0 | 0.00 KM |
| Greenford Road | £ 0 | 0 | 0.00 KM |
Nearby Transport
| Name | NLC | TLC | Distance |
|---|---|---|---|
| Ainsdale | 2350 | ANS | 1.24 KM |
| Hillside | 2231 | HIL | 4.10 KM |
| Freshfield | 2355 | FRE | 4.16 KM |
| Formby | 2354 | FBY | 5.38 KM |
| Birkdale | 2352 | BDL | 5.83 KM |
Nearby Listings
| Address | Price | Type | Score | Distance |
|---|---|---|---|---|
| Cantlow Fold, Southport, Merseyside, PR8 | £ 395,950 | BUY | 7 / 10 | 0.00 KM |
| Cantlow Fold, Ainsdale, Merseyside, PR8 | £ 280,000 | BUY | 7 / 10 | 0.04 KM |
| Lighthorne Drive, Southport, Merseyside, PR8 2SU | £ 375,000 | BUY | 7 / 10 | 0.09 KM |
| Lighthorne Drive, Southport, Merseyside, PR8 | £ 395,000 | BUY | 8 / 10 | 0.12 KM |
| Rothwell Drive, Ainsdale, Southport | £ 425,000 | BUY | 7 / 10 | 0.14 KM |
Nearby Properties
| Address | Price | Distance |
|---|---|---|
| 5 Cantlow Fold | £ 190,000 | 0.00 KM |
| 7 Cantlow Fold | £ 265,000 | 0.00 KM |
| 10 Cantlow Fold | £ 280,000 | 0.00 KM |
| 35 Pershore Grove | £ 215,588 | 0.07 KM |
| 26 Pershore Grove | £ 217,500 | 0.07 KM |