Venditum says ..
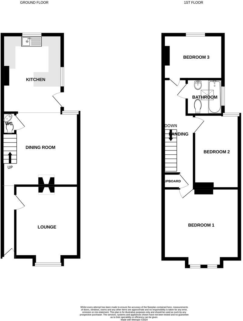
A beautifully presented Edwardian style home sitting within this perennially popular location, a short walk from the Cathedral Close. 28 Harnham Road is a traditionally laid out three bedroom property with a number of useful refinements. The general condition of the house is excellent with the cu...
Property Oracle says ..
This three-bedroom property located on Harnham Road in Salisbury, Wiltshire, offers a blend of city convenience and residential tranquility. The property’s exterior presents a well-maintained red-brick façade, typical of the area’s architecture. Inside, the images showcase a lived-in but comfortable interior. Rooms appear adequately sized, and the property benefits from a small garden area which offers some outdoor space, however, the size is limited. The property’s proximity to the city center, Salisbury Cathedral, and local schools adds to its appeal. The provided list price, while requiring more comparative data for definitive analysis, appears reasonably situated within the market value of similar properties in the area based on the limited data available. The lack of square footage information, however, makes a definitive pricing analysis challenging. Further information on the property’s specific features and dimensions, such as precise plot size and internal square footage would allow for a more comprehensive property appraisal. Overall, the property seems suitable for a small family or as a buy-to-let investment in a popular area.
Therefore, we give this property 6 / 10. *Disclaimer: This is our option and does constitute a recommendation or financial advice. Do your own research. *
- Price
- 7
- Condition
- 6
- Location
- 7
- Land
- 4
- Bedrooms
- 3
- Bathrooms
- 1
The heatmap indicates the level of crime in the area. The color of the heatmap indicates the crime severity and recency.
Metrics Year-on-Year
- Average area value
- 338,333.00 £Decreased by 35.33 %
- Average area rental value
- 580.00 £/moDecreased by 51.38 %
- Est rental Yield
- 2.06 %Decreased by 24.82 %
- Crime Rate
- 3.00 %Unchanged by 0.00 %
Agent Activity
Venditum created the listing.
Nearby Schools
| Name | Type | Ofsted | Distance |
|---|---|---|---|
| Salisbury Cathedral School | Other Independent School | 0.53 KM | |
| St Osmund'S Catholic Primary School, Salisbury | Voluntary Aided School | Good | 0.53 KM |
| Bishop Wordsworth'S Church Of England Grammar School | Academy Converter | 0.78 KM | |
| Harnham Infants' School | Community School | Good | 0.92 KM |
| Harnham Church Of England Controlled Junior School | Voluntary Controlled School | Good | 0.92 KM |
Images
Nearby Streets
| Name | Average Price | Average Sqft | Distance |
|---|---|---|---|
| Cecil Avenue | £ 241,667 | 0 | 0.00 KM |
| Exeter Street Roundabout | £ 0 | 0 | 0.00 KM |
| Swiftdown | £ 0 | 0 | 0.00 KM |
| Saint Mary's Road | £ 0 | 0 | 0.00 KM |
| Bishops Drive | £ 0 | 0 | 0.00 KM |
Nearby Transport
| Name | NLC | TLC | Distance |
|---|---|---|---|
| Salisbury | 5663 | SAL | 1.54 KM |
Nearby Listings
| Address | Price | Type | Score | Distance |
|---|---|---|---|---|
| Harnham Road, Salisbury | £ 400,000 | BUY | 6 / 10 | 0.00 KM |
| Harnham Road, Salisbury, SP2 | £ 250,000 | BUY | Unknown | 0.05 KM |
| Harnham Road, Salisbury | £ 425,000 | BUY | 7 / 10 | 0.15 KM |
| Harnham Road, Salisbury | £ 480,000 | BUY | 7 / 10 | 0.15 KM |
| Ayleswade Road, Salisbury | £ 179,950 | BUY | 5 / 10 | 0.17 KM |
Nearby Properties
| Address | Price | Distance |
|---|---|---|
| 14 Old Street | £ 337,000 | 0.05 KM |
| 7 Old Street | £ 265,000 | 0.05 KM |
| 3 Old Street | £ 220,000 | 0.05 KM |
| 9 Old Street | £ 169,000 | 0.05 KM |
| Highlands | £ 280,000 | 0.05 KM |