Mount View, Church Lane West, Aldershot, Hampshire, GU11
By Bridges Estate Agents
£ 375,000
Reviews
3 out of 5 stars
Bridges Estate Agents says ..
This terraced property is presented in good order throughout and sold with NO ONWARD CHAIN. The property is situated in a well regarded residential no through road, within walking distance to the mainline train station with a direct train to London Waterloo. You are also close to popular schools ...
Property Oracle says ..
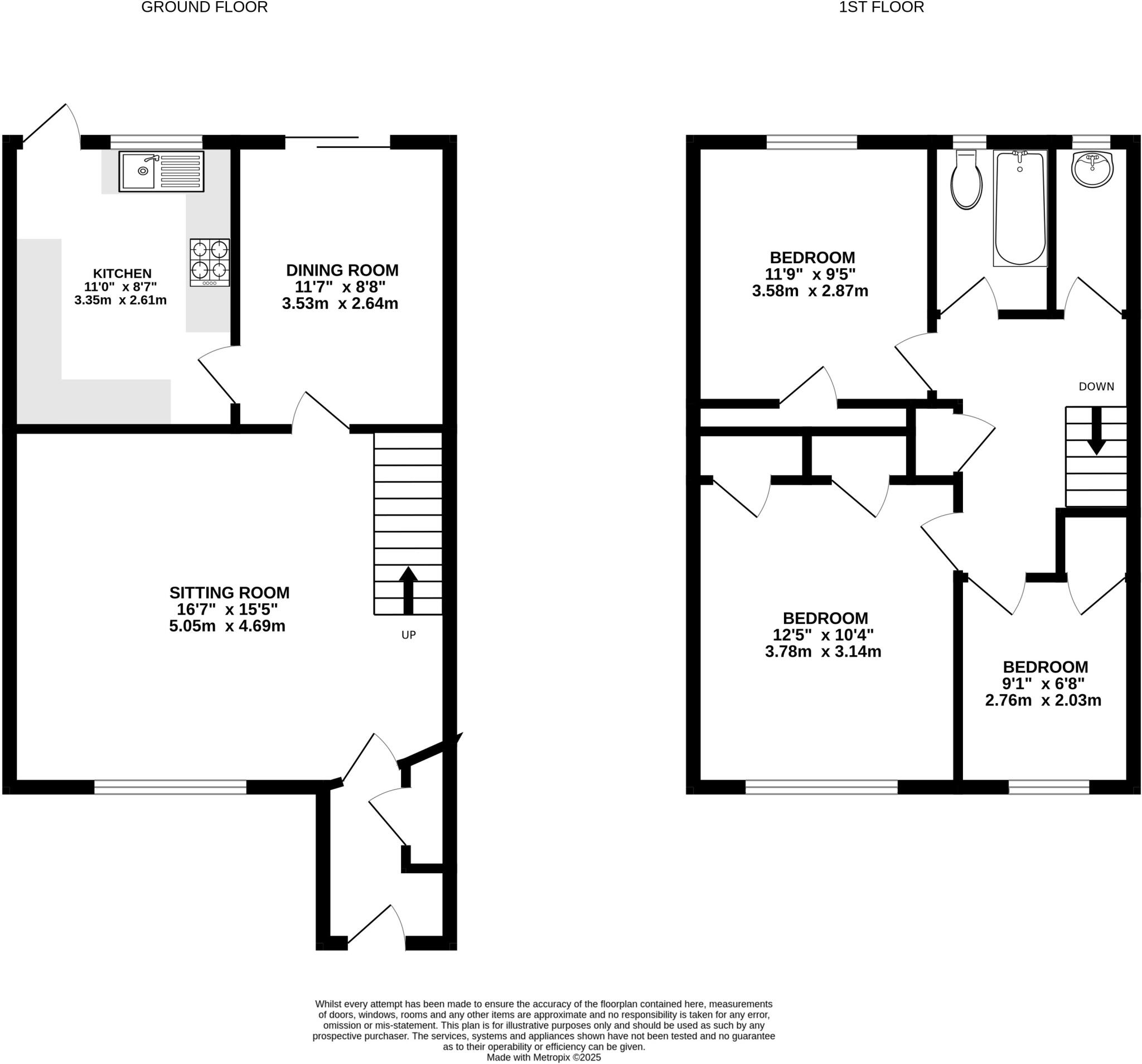
This three-bedroom terraced house in Aldershot is listed at £375,000. The property benefits from a convenient location, close to local schools and transport links. The average house price in the area is £393,569, with an average price per square foot of £353. This property is slightly below average in size at 985.87 sqft. Images show the property to be in generally good condition, though some modernisation may be desirable in the kitchen. The property includes a garden, though it appears to be relatively small. The asking price seems reasonable considering the location and condition, although a full survey would be recommended to assess any potential issues.
Therefore, we give this property 6 / 10. *Disclaimer: This is our option and does constitute a recommendation or financial advice. Do your own research. *
- Price
- 7
- Condition
- 7
- Location
- 8
- Land
- 4
- Bedrooms
- 3
- Bathrooms
- 1
- Sqft (est)
- 985.87
The heatmap indicates the level of crime in the area. The color of the heatmap indicates the crime severity and recency.
Metrics Year-on-Year
- Average area value
- 332,500.00 £Decreased by 10.87 %
- Est sale value
- 537,299.15 £Increased by 55.71 %
- Average area rental value
- 1,008.00 £/moDecreased by 24.27 %
- Est letting value
- 985.87 £/moUnchanged by 0.00 %
- Est rental Yield
- 3.64 %Decreased by 14.95 %
- Crime Rate
- 5.00 %Unchanged by 0.00 %
Agent Activity
Bridges Estate Agents created the listing.
Nearby Schools
| Name | Type | Ofsted | Distance |
|---|---|---|---|
| St Joseph'S Catholic Primary School | Academy Converter | Outstanding | 0.43 KM |
| Rowhill School | Pupil Referral Unit | Good | 0.68 KM |
| Talavera Infant School | Community School | Good | 1.10 KM |
| Talavera Junior School | Community School | Outstanding | 1.10 KM |
| Wellington Community Primary School | Community School | Outstanding | 1.17 KM |
Images
Nearby Streets
| Name | Average Price | Average Sqft | Distance |
|---|---|---|---|
| St Benedict'S Close | £ 210,000 | 0 | 0.00 KM |
| Laburnum Road | £ 0 | 0 | 0.00 KM |
| Larkspur Close | £ 0 | 0 | 0.00 KM |
| Holbrook Close | £ 850,000 | 0 | 0.00 KM |
| Glebe Close | £ 0 | 0 | 0.00 KM |
Nearby Transport
| Name | NLC | TLC | Distance |
|---|---|---|---|
| Aldershot | 5623 | AHT | 0.88 KM |
| Farnham | 5545 | FNH | 4.46 KM |
| North Camp | 5636 | NCM | 5.38 KM |
| Ash Vale | 5547 | AHV | 5.98 KM |
| Ash | 5641 | ASH | 6.04 KM |
Nearby Listings
| Address | Price | Type | Score | Distance |
|---|---|---|---|---|
| Mount View, Church Lane West, Aldershot, Hampshire, GU11 | £ 375,000 | BUY | 6 / 10 | 0.00 KM |
| Mount View, Church Lane West, Aldershot, Hampshire, GU11 | £ 375,000 | BUY | 6 / 10 | 0.01 KM |
| Mount View, Church Lane West, Aldershot, Hampshire, GU11 | £ 525,000 | BUY | 6 / 10 | 0.04 KM |
| Church Lane West, Aldershot, GU11 3LH | £ 350,000 | BUY | 7 / 10 | 0.05 KM |
| Church Lane West, Aldershot, Hampshire, GU11 | £ 750,000 | BUY | Unknown | 0.13 KM |
Nearby Properties
| Address | Price | Distance |
|---|---|---|
| 43 Church Lane West | £ 223,000 | 0.04 KM |
| 6 Church Lane West | £ 179,950 | 0.04 KM |
| 8 Church Lane West | £ 167,000 | 0.04 KM |
| 11 Church Lane West | £ 224,950 | 0.04 KM |
| 13 Church Lane West | £ 320,000 | 0.05 KM |