Clarkes Road, Gorleston, Great Yarmouth, Norfolk, NR31
By YOUR MOVE Oliver James
£ 190,000
Reviews
3 out of 5 stars
YOUR MOVE Oliver James says ..
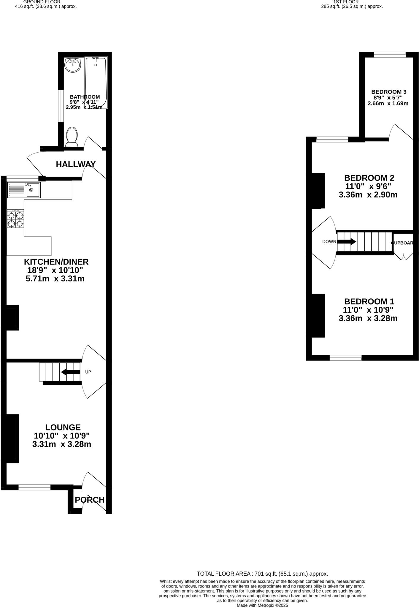
Your Move are delighted to present this beautifully finished three-bedroom terrace on Clarkes Road, perfectly positioned just moments from Gorleston High Street and an excellent range of local amenities. This impressive home has been thoughtfully modernised throughout, combining contem...
Property Oracle says ..
This terraced house on Clarkes Road in Gorleston presents a well-maintained living space in a convenient location. The property benefits from its proximity to local schools and transportation links, making it suitable for families and commuters alike. The interior boasts modern fixtures and fittings, suggesting that it is ready for immediate occupancy. While the plot size is not specified, the property includes a garden, offering outdoor space. The asking price of £190,000 appears competitive, especially when compared to the average price per square foot in the area. Overall, this property offers a blend of comfort, convenience, and value for money.
Therefore, we give this property 7 / 10. *Disclaimer: This is our option and does constitute a recommendation or financial advice. Do your own research. *
- Price
- 7
- Condition
- 8
- Location
- 7
- Land
- 6
- Bedrooms
- 0
- Bathrooms
- 0
- Sqft (est)
- 700.73
The heatmap indicates the level of crime in the area. The color of the heatmap indicates the crime severity and recency.
Metrics Year-on-Year
- Average area value
- 424,643.00 £Increased by 10.49 %
- Est sale value
- 306,919.74 £Increased by 29.97 %
- Average area rental value
- 1,206.00 £/moIncreased by 0.50 %
- Est letting value
- 700.73 £/moUnchanged by 0.00 %
- Est rental Yield
- 3.41 %Decreased by 9.07 %
- Crime Rate
- 5.00 %Unchanged by 0.00 %
Agent Activity
YOUR MOVE Oliver James created the listing.
Nearby Schools
| Name | Type | Ofsted | Distance |
|---|---|---|---|
| Stradbroke Primary Academy | Academy Sponsor Led | Good | 0.10 KM |
| Gorleston And Hopton Children'S Centre | Children's Centre | 0.18 KM | |
| St Mary And St Peter Catholic Primary School | Academy Converter | Requires improvement | 0.60 KM |
| East Norfolk Sixth Form College | Academy 16-19 Converter | Good | 0.65 KM |
| Peterhouse Cofe Primary Academy | Academy Sponsor Led | Good | 1.08 KM |
Images
Nearby Streets
| Name | Average Price | Average Sqft | Distance |
|---|---|---|---|
| Nelson Road | £ 0 | 0 | 0.00 KM |
| Keppel Road | £ 0 | 0 | 0.00 KM |
| Colomb Road | £ 150,000 | 0 | 0.00 KM |
| Back Chapel Lane | £ 199,500 | 0 | 0.00 KM |
| Addison Road | £ 160,000 | 0 | 0.00 KM |
Nearby Transport
| Name | NLC | TLC | Distance |
|---|---|---|---|
| Great Yarmouth | 7328 | GYM | 3.98 KM |
Nearby Listings
| Address | Price | Type | Score | Distance |
|---|---|---|---|---|
| Clarkes Road, Gorleston, Great Yarmouth, Norfolk, NR31 | £ 190,000 | BUY | 7 / 10 | 0.00 KM |
| Roslyn Road, Gorleston | £ 165,000 | BUY | 7 / 10 | 0.06 KM |
| Roslyn Road, Gorleston, NR31 | £ 220,000 | BUY | 7 / 10 | 0.07 KM |
| Roslyn Road, Gorleston | £ 230,000 | BUY | 7 / 10 | 0.08 KM |
| Lowestoft Road, Gorleston | £ 225,000 | BUY | 7 / 10 | 0.11 KM |
Nearby Properties
| Address | Price | Distance |
|---|---|---|
| 14 Clarkes Road | £ 129,950 | 0.04 KM |
| 8 Clarkes Road | £ 106,000 | 0.04 KM |
| 22 Clarkes Road | £ 230,000 | 0.04 KM |
| 6 Clarkes Road | £ 130,000 | 0.04 KM |
| 16 Clarkes Road | £ 185,000 | 0.06 KM |