SI
Chestnut Avenue, West Wickham, BR4
By Sinclair Hammelton
£ 665,000
Reviews
3 out of 5 stars
Sinclair Hammelton says ..
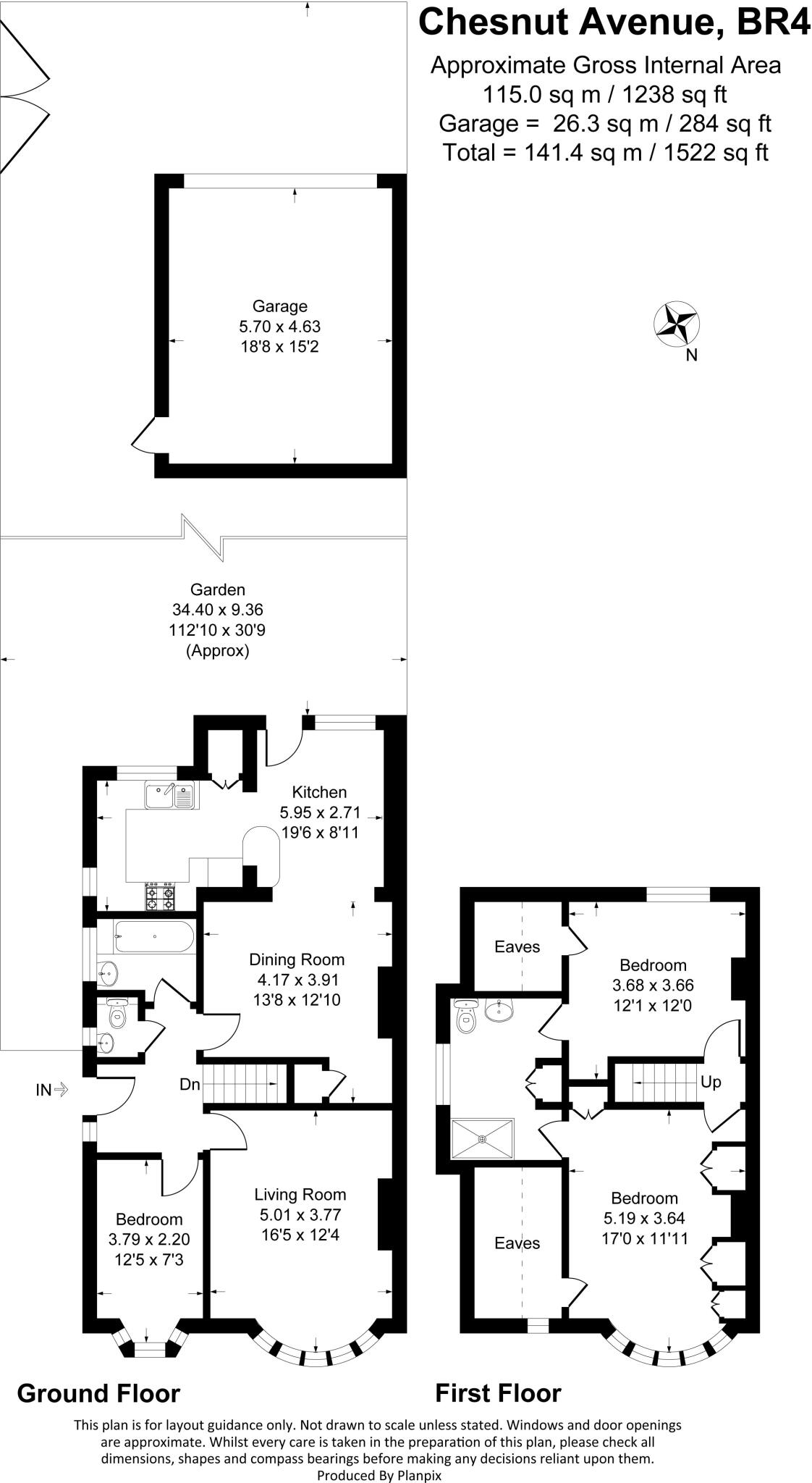
**OPEN DAY SATURDAY 21ST JUNE, BOOK BY APPOINTMENT ONLY** Three bedroom semi detached set on a large corner plot - fantastic location for primary and secondary school catchments - potential to extend STPP - modern shower room and family bathroom - well maintained gardens - walking distance to loc...
Property Oracle says ..
Therefore, we give this property 7 / 10. *Disclaimer: This is our option and does constitute a recommendation or financial advice. Do your own research. *
- Price
- 7
- Condition
- 7
- Location
- 7
- Land
- 8
- Bedrooms
- 3
- Bathrooms
- 2
The heatmap indicates the level of crime in the area. The color of the heatmap indicates the crime severity and recency.
Metrics Year-on-Year
- Average area value
- 816,250.00 £Increased by 11.20 %
- Average area rental value
- 1,675.00 £/moDecreased by 16.67 %
- Est rental Yield
- 2.46 %Decreased by 25.23 %
- Crime Rate
- 4.00 %Unchanged by 0.00 %
from 734,045.00 £
from 2,010.00 £/mo
from 3.29 %
from 4.00 %
Agent Activity
Sinclair Hammelton created the listing.
Nearby Schools
| Name | Type | Ofsted | Distance |
|---|---|---|---|
| Wickham Court School | Other Independent School | 0.66 KM | |
| Livability Nash College | Special Post 16 Institution | Requires improvement | 0.80 KM |
| Wickham Common Primary School | Academy Converter | Good | 1.14 KM |
| Glebe School | Academy Special Converter | Outstanding | 1.34 KM |
| Hawes Down Primary School | Academy Converter | Good | 1.42 KM |
Images
Nearby Streets
| Name | Average Price | Average Sqft | Distance |
|---|---|---|---|
| Montcalm Close | £ 467,500 | 0 | 0.00 KM |
| Phoenix Close | £ 0 | 0 | 0.00 KM |
| Martins Close | £ 375,000 | 0 | 0.00 KM |
| Warren Road | £ 0 | 0 | 0.00 KM |
| Ridgeway | £ 0 | 0 | 0.00 KM |
Nearby Transport
| Name | NLC | TLC | Distance |
|---|---|---|---|
| Hayes | 5050 | HYS | 1.56 KM |
| West Wickham | 5054 | WWI | 2.43 KM |
| Eden Park | 5056 | EDN | 4.07 KM |
| Bromley South | 5064 | BMS | 4.19 KM |
| Shortlands | 5084 | SRT | 4.44 KM |
Nearby Listings
| Address | Price | Type | Score | Distance |
|---|---|---|---|---|
| Chestnut Avenue, West Wickham, BR4 | £ 665,000 | BUY | 7 / 10 | 0.00 KM |
| Chestnut Avenue, West Wickham, Kent, BR4 | £ 700,000 | BUY | Unknown | 0.00 KM |
| Queensway, West Wickham, BR4 | £ 850,000 | BUY | 8 / 10 | 0.15 KM |
| Queensway, West Wickham, Bromley, BR4 | £ 875,000 | BUY | Unknown | 0.17 KM |
| Chestnut Avenue, West Wickham | £ 725,000 | BUY | 6 / 10 | 0.19 KM |
Nearby Properties
| Address | Price | Distance |
|---|---|---|
| 38 Chestnut Avenue | £ 279,000 | 0.01 KM |
| 30 Chestnut Avenue | £ 344,000 | 0.01 KM |
| 42 Chestnut Avenue | £ 320,000 | 0.01 KM |
| 12 Chestnut Avenue | £ 340,000 | 0.01 KM |
| 20 Chestnut Avenue | £ 405,000 | 0.01 KM |