Weston Road, Rochester, Kent, ME2
By Phoenix Property Services
£ 245,000
Reviews
3 out of 5 stars
Phoenix Property Services says ..
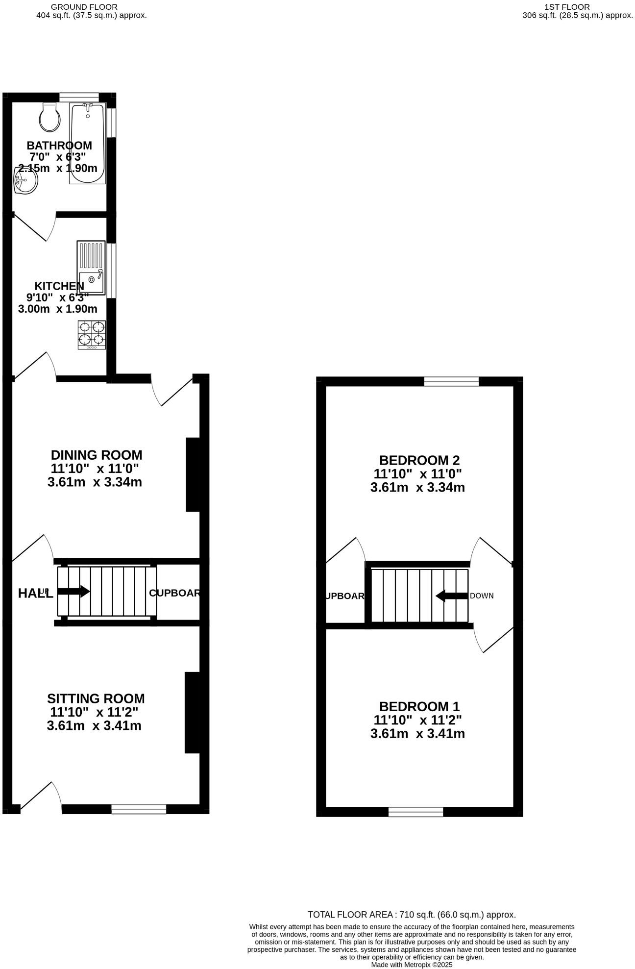
Two Bedroom End Of Terrace,2 Reception rooms, Kitchen, Central Heating, Double Glazing, Downstairs Bathroom, Nice size Garden, EPC Rating D
Property Oracle says ..
This is a 2-bedroom end-of-terrace house in Strood North, Rochester. The property is listed for £245,000 by Phoenix Property Services. It has one bathroom and is 710 sqft. The house is located near local schools and transportation, with Strood (Kent) station within a kilometer. While the property requires some modernisation, it benefits from having a garden. The price appears reasonable when compared to the average price per square foot in the area.
Therefore, we give this property 6 / 10. *Disclaimer: This is our option and does constitute a recommendation or financial advice. Do your own research. *
- Price
- 7
- Condition
- 4
- Location
- 7
- Land
- 6
- Bedrooms
- 2
- Bathrooms
- 1
- Sqft (est)
- 710.00
The heatmap indicates the level of crime in the area. The color of the heatmap indicates the crime severity and recency.
Metrics Year-on-Year
- Average area value
- 224,000.00 £Decreased by 29.61 %
- Est sale value
- 238,560.00 £Increased by 13.13 %
- Average area rental value
- 1,116.00 £/moDecreased by 12.40 %
- Est letting value
- 710.00 £/moUnchanged by 0.00 %
- Est rental Yield
- 5.98 %Increased by 24.58 %
- Crime Rate
- 18.00 %Unchanged by 0.00 %
Agent Activity
Phoenix Property Services created the listing.
Nearby Schools
| Name | Type | Ofsted | Distance |
|---|---|---|---|
| All Faiths Children'S Academy | Academy Converter | Good | 0.28 KM |
| Gun Lane Children'S Centre | Children's Centre | 0.30 KM | |
| Gordons Children'S Academy, Junior | Academy Sponsor Led | Good | 0.51 KM |
| Gordons Children'S Academy, Infant | Academy Sponsor Led | Good | 0.51 KM |
| St Nicholas Church Of England Voluntary Controlled Infant School | Voluntary Controlled School | Outstanding | 0.55 KM |
Images
Nearby Streets
| Name | Average Price | Average Sqft | Distance |
|---|---|---|---|
| Edward Street | £ 0 | 0 | 0.00 KM |
| Kaler Mews | £ 0 | 0 | 0.00 KM |
| Taylor's Lane | £ 0 | 0 | 0.00 KM |
| Watermill Close | £ 0 | 0 | 0.00 KM |
| RRX60 | £ 280,000 | 0 | 0.00 KM |
Nearby Transport
| Name | NLC | TLC | Distance |
|---|---|---|---|
| Strood (Kent) | 5191 | SOO | 0.96 KM |
| Rochester | 5203 | RTR | 2.57 KM |
| Chatham | 5199 | CTM | 3.88 KM |
| Higham | 5202 | HGM | 4.11 KM |
| Cuxton | 5201 | CUX | 4.48 KM |
Nearby Listings
| Address | Price | Type | Score | Distance |
|---|---|---|---|---|
| Weston Road, Rochester, Kent, ME2 | £ 245,000 | BUY | 6 / 10 | 0.00 KM |
| Collis Street, Strood, Rochester, ME2 3BE | £ 299,950 | BUY | 6 / 10 | 0.05 KM |
| Weston Road, Strood | £ 230,000 | BUY | Unknown | 0.06 KM |
| 106B Brompton Lane, Rochester, Kent, ME2 3BB | £ 75,000 | BUY | 5 / 10 | 0.07 KM |
| Brompton Lane, Rochester | £ 130,000 | BUY | 4 / 10 | 0.07 KM |
Nearby Properties
| Address | Price | Distance |
|---|---|---|
| 134 Weston Road | £ 50,500 | 0.00 KM |
| 145 Weston Road | £ 57,500 | 0.00 KM |
| 149 Weston Road | £ 100,000 | 0.00 KM |
| 141 Weston Road | £ 230,000 | 0.00 KM |
| 139 Weston Road | £ 120,000 | 0.00 KM |