Highfield Avenue, Whelley, Wigan
By Addisons Estate and Letting Agent
£ 90,000
Reviews
3 out of 5 stars
Addisons Estate and Letting Agent says ..
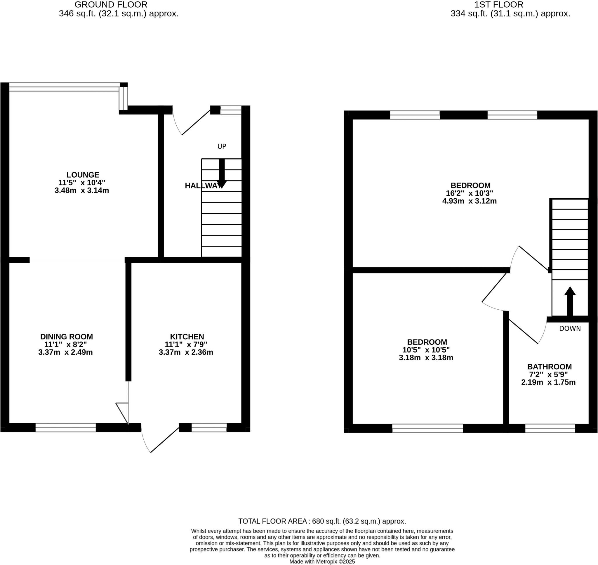
** Being Sold via Secure Sale online bidding. Terms & Conditions apply. Starting Bid £90,000 ** Situated in a popular location within walking distance of the local amenities and only a few minutes drive from the Town Centre. The property requires a little modernisation but has accommodatio...
Property Oracle says ..
This is a two-bedroom semi-detached property located on Highfield Avenue in Whelley, Wigan. The property is listed for £90,000. The property is located close to local schools and transportation links. The property has a good-sized garden. The property would benefit from some modernisation.
Therefore, we give this property 6 / 10. *Disclaimer: This is our option and does constitute a recommendation or financial advice. Do your own research. *
- Price
- 9
- Condition
- 5
- Location
- 6
- Land
- 7
- Bedrooms
- 2
- Bathrooms
- 1
- Sqft (est)
- 195.80
The heatmap indicates the level of crime in the area. The color of the heatmap indicates the crime severity and recency.
Metrics Year-on-Year
- Average area value
- 254,758.00 £Increased by 10.42 %
- Est sale value
- 53,061.80 £Increased by 24.88 %
- Average area rental value
- 938.00 £/moDecreased by 4.58 %
- Est letting value
- 0.00 £/mo
- Est rental Yield
- 4.42 %Decreased by 13.50 %
- Crime Rate
- 86.00 %Unchanged by 0.00 %
Agent Activity
Addisons Estate and Letting Agent created the listing.
Nearby Schools
| Name | Type | Ofsted | Distance |
|---|---|---|---|
| Canon Sharples Church Of England Primary School And Nursery | Academy Sponsor Led | Good | 0.45 KM |
| St Catharine'S Cofe Primary School | Voluntary Aided School | Good | 0.80 KM |
| Dean Trust Rose Bridge | Academy Sponsor Led | 0.86 KM | |
| St Patrick'S Catholic Primary School | Voluntary Aided School | Outstanding | 1.03 KM |
| Douglas Valley Sure Start Children'S Centre | Children's Centre Linked Site | 1.04 KM |
Images
Nearby Streets
| Name | Average Price | Average Sqft | Distance |
|---|---|---|---|
| Highfield Avenue | £ 0 | 0 | 0.00 KM |
| Hawthorn Rise | £ 0 | 0 | 0.00 KM |
| Platt Lane | £ 0 | 0 | 0.00 KM |
| Essex Street | £ 0 | 0 | 0.00 KM |
| Wild Cherry Close | £ 0 | 0 | 0.00 KM |
Nearby Transport
| Name | NLC | TLC | Distance |
|---|---|---|---|
| Ince (Manchester) | 2236 | INC | 1.58 KM |
| Wigan Wallgate | 2406 | WGW | 2.17 KM |
| Wigan North Western | 2363 | WGN | 2.24 KM |
| Hindley | 2398 | HIN | 4.54 KM |
| Pemberton | 2403 | PEM | 6.58 KM |
Nearby Listings
| Address | Price | Type | Score | Distance |
|---|---|---|---|---|
| Highfield Avenue, Whelley, Wigan | £ 90,000 | BUY | 6 / 10 | 0.00 KM |
| Highfield Avenue, Wigan, WN1 | £ 175,000 | BUY | 7 / 10 | 0.04 KM |
| Highfield Avenue, Whelley, Wigan, Greater Manchester, WN1 3UF | £ 90,000 | BUY | 6 / 10 | 0.07 KM |
| Whelley, Whelley, Wigan, WN1 3PX | £ 189,995 | BUY | 5 / 10 | 0.08 KM |
| Durham Street, Whelley, Wigan, WN1 3YQ | £ 165,000 | BUY | 7 / 10 | 0.15 KM |
Nearby Properties
| Address | Price | Distance |
|---|---|---|
| 28 Highfield Avenue | £ 75,000 | 0.00 KM |
| 3 Highfield Avenue | £ 95,000 | 0.00 KM |
| 1 Highfield Avenue | £ 103,000 | 0.00 KM |
| 30 Highfield Avenue | £ 60,000 | 0.00 KM |
| 14 Highfield Avenue | £ 77,950 | 0.00 KM |