Chancellors says ..
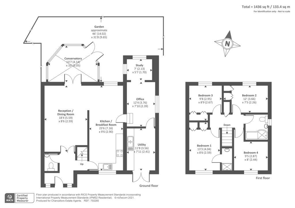
A four bedroom family home located in a cul-de-sac in Stanmore. Comprised of entrance porch, through lounge open plan into kitchen breakfast room. Conservatory, study and playroom. Upstairs offers the bedrooms with family bathroom and en-suite.
Property Oracle says ..
This four-bedroom house located in Stanmore, Middlesex, is listed for £700,000. The property is situated in a cul-de-sac, suggesting a relatively quiet residential environment. Images showcase a modern kitchen with black cabinetry and a contemporary bathroom with dark tiling. The property also includes a conservatory, which adds extra living space. Bedrooms appear of good size, with a mix of flooring styles (carpet and wood). The garden is visible in the photos; however, a precise measurement isn’t provided, and its size seems average for the area. The property benefits from its location in a desirable area of Stanmore, known for good schooling and transport links (though those links are not immediately walkable). While not a brand-new build, the property appears to be well-maintained and offers a comfortable living environment. The lack of key details like total square footage limits a comprehensive comparative market analysis. However, relative to similar properties in the nearby vicinity, the list price appears to be within the expected range, making it neither exceptionally expensive nor unusually inexpensive. Overall, it seems to be a solid family home in a great school district but potential buyers should get a professional valuation before committing to the purchase. Further due diligence is advised to ascertain the property’s exact dimensions and full details of its condition.
Therefore, we give this property 6 / 10. *Disclaimer: This is our option and does constitute a recommendation or financial advice. Do your own research. *
- Price
- 7
- Condition
- 6
- Location
- 7
- Land
- 4
- Bedrooms
- 4
- Bathrooms
- 2
The heatmap indicates the level of crime in the area. The color of the heatmap indicates the crime severity and recency.
Metrics Year-on-Year
- Average area value
- 892,211.00 £Increased by 5.89 %
- Average area rental value
- 2,230.00 £/moDecreased by 30.05 %
- Est rental Yield
- 3.00 %Decreased by 33.92 %
- Crime Rate
- 1.00 %Unchanged by 0.00 %
Agent Activity
Chancellors created the listing.
Nearby Schools
| Name | Type | Ofsted | Distance |
|---|---|---|---|
| Weald Rise Primary School | Community School | Good | 0.53 KM |
| Belmont School | Community School | Outstanding | 0.97 KM |
| Stanmore Park | Children's Centre Linked Site | 1.15 KM | |
| St Joseph'S Catholic Primary School | Academy Converter | 1.17 KM | |
| The Helix Education Centre | Pupil Referral Unit | Good | 1.17 KM |
Images
Nearby Streets
| Name | Average Price | Average Sqft | Distance |
|---|---|---|---|
| Cairn Way | £ 340,000 | 632 | 0.00 KM |
| Tallack Close | £ 350,000 | 0 | 0.00 KM |
| Greenacres Drive | £ 0 | 0 | 0.00 KM |
| Kenton Lane | £ 0 | 0 | 0.00 KM |
| Dunnock Drive | £ 0 | 0 | 0.00 KM |
Nearby Transport
| Name | NLC | TLC | Distance |
|---|---|---|---|
| Harrow And Wealdstone | 1397 | HRW | 2.00 KM |
| Kenton | 1399 | KNT | 3.15 KM |
| Headstone Lane | 1434 | HDL | 3.43 KM |
| Harrow-On-The-Hill | 598 | HOH | 3.45 KM |
| Hatch End | 1398 | HTE | 4.63 KM |
Nearby Listings
| Address | Price | Type | Score | Distance |
|---|---|---|---|---|
| Stanmore, Middlesex, HA7 | £ 700,000 | BUY | 6 / 10 | 0.00 KM |
| Caddis Close, Stanmore | £ 679,950 | BUY | 7 / 10 | 0.01 KM |
| Caddis Close, Stanmore, HA7 | £ 600,000 | BUY | Unknown | 0.02 KM |
| Caddis Close, Stanmore, HA7 | £ 600,000 | BUY | Unknown | 0.02 KM |
| Caddis Close, Stanmore, HA7 | £ 810,000 | BUY | 6 / 10 | 0.05 KM |
Nearby Properties
| Address | Price | Distance |
|---|---|---|
| 18 Caddis Close | £ 310,000 | 0.01 KM |
| 15 Caddis Close | £ 390,000 | 0.01 KM |
| 7 Caddis Close | £ 347,000 | 0.01 KM |
| 5 Caddis Close | £ 680,000 | 0.01 KM |
| 13 Caddis Close | £ 318,000 | 0.01 KM |