Homefinders says ..
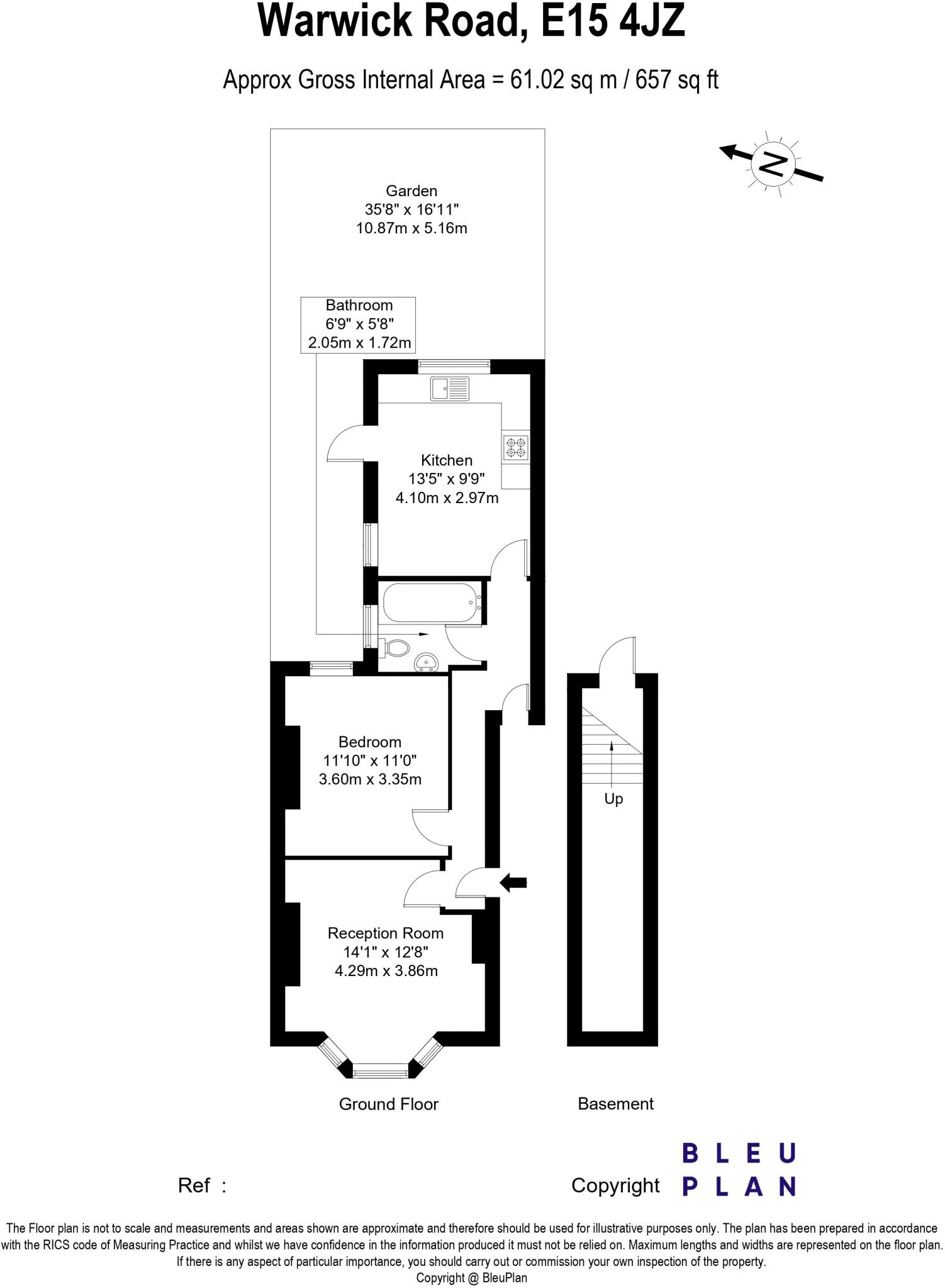
Nestled in a sought-after pocket of Stratford, this generously sized ground-floor Victorian conversion offers a perfect blend of period charm and incredible potential.Flooded with natural light, the spacious layout includes a well-proportioned double bedroom, a well-appointed bathroom, and a larg...
Property Oracle says ..
This property is a 1 bedroom flat located in Stratford, Newham. It benefits from being close to several schools which have been rated as good by Ofsted, and also benefits from being within a reasonable distance of several transport links. The property itself is in need of modernisation, however it does benefit from having a small garden. Based on the information provided, the property is significantly underpriced compared to the average price per sqft in the area.
Therefore, we give this property 5 / 10. *Disclaimer: This is our option and does constitute a recommendation or financial advice. Do your own research. *
- Price
- 8
- Condition
- 3
- Location
- 7
- Land
- 4
- Bedrooms
- 1
- Bathrooms
- 1
- Sqft (est)
- 1,083.41
- Lot (est)
- 657.00
The heatmap indicates the level of crime in the area. The color of the heatmap indicates the crime severity and recency.
Metrics Year-on-Year
- Average area value
- 534,167.00 £Increased by 13.39 %
- Est sale value
- 919,815.09 £Increased by 54.93 %
- Average area rental value
- 1,996.00 £/moDecreased by 1.19 %
- Est letting value
- 3,250.23 £/moIncreased by 50.00 %
- Est rental Yield
- 4.48 %Decreased by 13.01 %
- Crime Rate
- 3.00 %Unchanged by 0.00 %
Agent Activity
Homefinders created the listing.
Nearby Schools
| Name | Type | Ofsted | Distance |
|---|---|---|---|
| Park Primary School | Community School | Good | 0.23 KM |
| Earlham Primary School | Academy Converter | Good | 0.44 KM |
| Azhar Academy Girls School | Other Independent School | Good | 0.53 KM |
| St James' Cofe Junior School | Voluntary Controlled School | Good | 0.68 KM |
| Odessa Infant School | Community School | Good | 0.74 KM |
Images
Nearby Streets
| Name | Average Price | Average Sqft | Distance |
|---|---|---|---|
| Crownage Close | £ 0 | 0 | 0.00 KM |
| Adler Court | £ 0 | 0 | 0.00 KM |
| Ferns Road | £ 0 | 0 | 0.00 KM |
| Louise Road | £ 399,995 | 0 | 0.00 KM |
| Vicarage Lane | £ 0 | 0 | 0.00 KM |
Nearby Transport
| Name | NLC | TLC | Distance |
|---|---|---|---|
| Forest Gate | 6876 | FOG | 1.11 KM |
| Maryland | 6970 | MYL | 1.24 KM |
| Wanstead Park | 7408 | WNP | 1.43 KM |
| West Ham | 7474 | WEH | 2.04 KM |
| Stratford | 6969 | SRA | 2.22 KM |
Nearby Listings
| Address | Price | Type | Score | Distance |
|---|---|---|---|---|
| Warwick Road, Stratford, E15 | £ 299,995 | BUY | 5 / 10 | 0.00 KM |
| Elm Road, Forest Gate, London | £ 895,000 | BUY | Unknown | 0.07 KM |
| Stork Road, London, E7 | £ 350,000 | BUY | 6 / 10 | 0.08 KM |
| Stork Road, London, E7 | £ 350,000 | BUY | 6 / 10 | 0.08 KM |
| Bolton Road, London, E15 | £ 700,000 | BUY | 7 / 10 | 0.09 KM |
Nearby Properties
| Address | Price | Distance |
|---|---|---|
| 21 Warwick Road | £ 225,000 | 0.00 KM |
| 63a Warwick Road | £ 79,995 | 0.00 KM |
| 57 Warwick Road | £ 95,000 | 0.00 KM |
| 45 Warwick Road | £ 52,000 | 0.00 KM |
| 23 Warwick Road | £ 305,000 | 0.00 KM |