Renacres Lane, Halsall, L39
By Churcher Estates
£ 400,000
Reviews
3 out of 5 stars
Churcher Estates says ..
Churcher Estates are proud to present this delightful three-bedroom cottage to the open market, located in the heart of the charming and historic village of Halsall. Renowned for its picturesque countryside, friendly community, and rich heritage, Halsall is one of West Lancashire's most desirable se
Property Oracle says ..
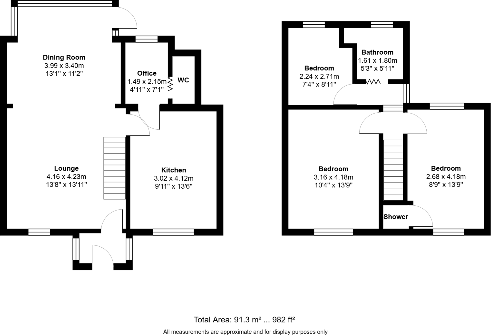
This charming cottage is located in Halsall, West Lancashire. The property features three bedrooms and one bathroom within approximately 983 square feet.
The location benefits from being close to Halsall St Cuthbert’s Church of England Primary School, which boasts an “Outstanding” Ofsted rating, and Scarisbrick St Mark’s Church of England Primary School, which has a “Good” rating. However, the nearest train station is approximately 4.79 KM away.
The interior of the cottage appears to be well-maintained and retains a traditional style. The kitchen and bathroom have a modern feel, while the living areas showcase the cottage’s original character with exposed beams and a fireplace.
The property includes a well-maintained garden with a shed, offering outdoor space and storage.
The list price of £400,000 is slightly above the average price in the area (£382,533). The price per square foot is approximately £407, which is also higher than the average of £368. Considering the condition and the charm of the cottage, the price seems reasonable, although potentially at the higher end of the market.
Therefore, we give this property 7 / 10. *Disclaimer: This is our option and does constitute a recommendation or financial advice. Do your own research. *
- Price
- 6
- Condition
- 8
- Location
- 7
- Land
- 7
- Bedrooms
- 3
- Bathrooms
- 1
- Sqft (est)
- 982.75
The heatmap indicates the level of crime in the area. The color of the heatmap indicates the crime severity and recency.
Metrics Year-on-Year
- Average area value
- 382,533.00 £Increased by 3.77 %
- Est sale value
- 361,652.00 £Increased by 5.44 %
- Average area rental value
- 1,090.00 £/moDecreased by 17.67 %
- Est letting value
- 982.75 £/moUnchanged by 0.00 %
- Est rental Yield
- 3.42 %Decreased by 20.65 %
- Crime Rate
- 0.00 %
Agent Activity
Churcher Estates created the listing.
Nearby Schools
| Name | Type | Ofsted | Distance |
|---|---|---|---|
| Halsall St Cuthbert'S Church Of England Primary School | Voluntary Aided School | Outstanding | 1.94 KM |
| Scarisbrick St Mark'S Church Of England Primary School | Voluntary Controlled School | Good | 1.96 KM |
| Pinfold Primary School | Community School | Good | 3.04 KM |
| Scarisbrick Hall School | Other Independent School | 3.44 KM | |
| St Mary'S Catholic Primary School, Scarisbrick | Voluntary Aided School | Good | 3.73 KM |
Images
Nearby Streets
| Name | Average Price | Average Sqft | Distance |
|---|---|---|---|
| Cross Lane | £ 0 | 0 | 0.00 KM |
Nearby Transport
| Name | NLC | TLC | Distance |
|---|---|---|---|
| Bescar Lane | 2351 | BES | 4.79 KM |
| Meols Cop | 2357 | MEC | 5.84 KM |
| Southport | 2262 | SOP | 7.70 KM |
| Aughton Park | 2215 | AUG | 7.98 KM |
| Birkdale | 2352 | BDL | 7.99 KM |
Nearby Listings
| Address | Price | Type | Score | Distance |
|---|---|---|---|---|
| Renacres Lane, Halsall, L39 | £ 400,000 | BUY | 7 / 10 | 0.00 KM |
| Sintons Nurseries and 44 Renacres Lane, Ormskirk | £ 1,250,000 | BUY | Unknown | 0.13 KM |
| Morris Lane, Halsall, L39 | £ 560,000 | BUY | 6 / 10 | 1.11 KM |
| North Moor Villas, North Moor Lane, Halsall, L39 | £ 725,000 | BUY | 7 / 10 | 1.16 KM |
| Halsall Road, Halsall, L39 | £ 899,950 | BUY | 7 / 10 | 1.20 KM |
Nearby Properties
| Address | Price | Distance |
|---|---|---|
| 36 Gregory Lane | £ 170,000 | 1.03 KM |
| 56 Gregory Lane | £ 260,000 | 1.03 KM |
| 40 Gregory Lane | £ 395,000 | 1.03 KM |
| 10 Gregory Lane | £ 270,790 | 1.03 KM |
| 31 North Moor Lane | £ 415,000 | 1.29 KM |