Barnard Marcus says ..
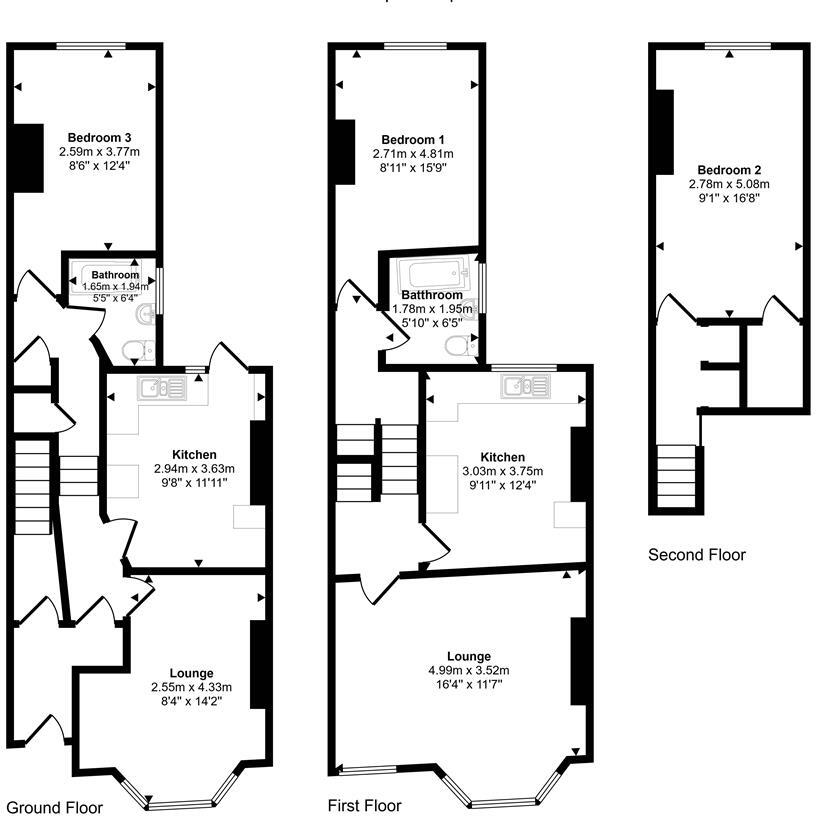
AUCTION SALE 18 November 2025 - Freehold three floor building arranged as two self-contained flats/maisonettes1 x one bed garden flat, 1 x two bed upper maisonetteRequiring updatingFull vacant possession
Property Oracle says ..
This is a terraced property in Tulse Hill, London, requiring renovation. The location is a strong point, with proximity to good schools and transportation. The property includes a garden, which needs work. The price seems a bit high considering the condition and small square footage.
Therefore, we give this property 5 / 10. *Disclaimer: This is our option and does constitute a recommendation or financial advice. Do your own research. *
- Price
- 6
- Condition
- 3
- Location
- 7
- Land
- 6
- Bedrooms
- 3
- Bathrooms
- 2
- Sqft (est)
- 269.31
The heatmap indicates the level of crime in the area. The color of the heatmap indicates the crime severity and recency.
Metrics Year-on-Year
- Average area value
- 419,375.00 £Decreased by 32.04 %
- Est sale value
- 232,683.84 £Increased by 26.87 %
- Average area rental value
- 1,984.00 £/moDecreased by 10.47 %
- Est letting value
- 1,077.24 £/moIncreased by 100.00 %
- Est rental Yield
- 5.68 %Increased by 31.79 %
- Crime Rate
- 4.00 %Unchanged by 0.00 %
Agent Activity
Barnard Marcus created the listing.
Nearby Schools
| Name | Type | Ofsted | Distance |
|---|---|---|---|
| Holy Trinity Church Of England Primary School | Voluntary Aided School | Good | 0.14 KM |
| Elm Court School | Community Special School | Outstanding | 0.19 KM |
| Tree House Children'S Centre At Holmewood Nursery School | Children's Centre | 0.25 KM | |
| Holmewood Nursery School | Local Authority Nursery School | Outstanding | 0.26 KM |
| The Orchard School | Voluntary Aided School | Outstanding | 0.54 KM |
Images
Nearby Streets
| Name | Average Price | Average Sqft | Distance |
|---|---|---|---|
| China Mews | £ 0 | 0 | 0.00 KM |
| Fairview Place | £ 0 | 0 | 0.00 KM |
| Marnfield Crescent | £ 500,000 | 0 | 0.00 KM |
| Hartwell Close | £ 0 | 0 | 0.00 KM |
| Rickards Close | £ 0 | 0 | 0.00 KM |
Nearby Transport
| Name | NLC | TLC | Distance |
|---|---|---|---|
| Streatham Hill | 5435 | SRH | 1.55 KM |
| Brixton | 5081 | BRX | 1.67 KM |
| Tulse Hill | 5390 | TUH | 1.75 KM |
| Herne Hill | 5066 | HNH | 1.82 KM |
| Clapham High Street | 5301 | CLP | 2.45 KM |
Nearby Listings
| Address | Price | Type | Score | Distance |
|---|---|---|---|---|
| Ostade Road, London | £ 545,000 | BUY | 5 / 10 | 0.00 KM |
| Craster Road, London, SW2 | £ 650,000 | BUY | 7 / 10 | 0.04 KM |
| Craster Road, Brixton | £ 1,350,000 | BUY | Unknown | 0.04 KM |
| Craster Road, Brixton | £ 1,250,000 | BUY | 7 / 10 | 0.04 KM |
| Craster Road, SW2 | £ 370,000 | BUY | Unknown | 0.06 KM |
Nearby Properties
| Address | Price | Distance |
|---|---|---|
| 5 Ostade Road | £ 1,000,000 | 0.00 KM |
| 7 Ostade Road | £ 350,000 | 0.00 KM |
| 2 Ostade Road | £ 168,000 | 0.03 KM |
| 13 Craster Road | £ 1,000,000 | 0.03 KM |
| 27 Craster Road | £ 200,000 | 0.03 KM |