Arkle Court, Alnwick, Northumberland, NE66
By George F.White
£ 225,000
Reviews
3 out of 5 stars
George F.White says ..
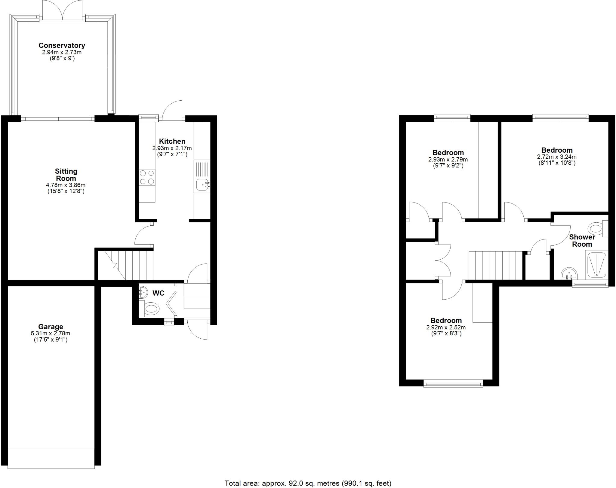
Attractive three bedroom terraced property. The accommodation comprises a sitting room, kitchen, conservatory, three bedrooms, ground floor WC, and a bathroom. There is a private garden to the rear and a garage.
Property Oracle says ..
The property is a 3 bedroom house located in Alnwick, Northumberland. The property is in a reasonable condition but would benefit from some modernisation. The property has a good sized garden with a shed and a patio area. The property is located close to local amenities and schools. The property is listed for £225,000 which is a reasonable price for the area.
Therefore, we give this property 7 / 10. *Disclaimer: This is our option and does constitute a recommendation or financial advice. Do your own research. *
- Price
- 8
- Condition
- 6
- Location
- 7
- Land
- 7
- Bedrooms
- 3
- Bathrooms
- 2
- Sqft (est)
- 990.28
The heatmap indicates the level of crime in the area. The color of the heatmap indicates the crime severity and recency.
Metrics Year-on-Year
- Average area value
- 625,000.00 £Increased by 9.15 %
- Est sale value
- 655,565.36 £Increased by 24.67 %
- Average area rental value
- 1,525.00 £/moIncreased by 1.26 %
- Est letting value
- 990.28 £/moUnchanged by 0.00 %
- Est rental Yield
- 2.93 %Decreased by 7.28 %
- Crime Rate
- 9.00 %Unchanged by 0.00 %
Agent Activity
George F.White created the listing.
Nearby Schools
| Name | Type | Ofsted | Distance |
|---|---|---|---|
| Swansfield Park Primary School | Community School | Outstanding | 0.74 KM |
| The Duchess'S Community High School | Community School | Good | 0.81 KM |
| St Paul'S Catholic Primary School, Alnwick | Academy Converter | 1.21 KM | |
| Alnwick/Rothbury Children'S Centre | Children's Centre | 1.67 KM | |
| St Michael'S Church Of England Primary School | Voluntary Aided School | Good | 1.67 KM |
Images
Nearby Streets
| Name | Average Price | Average Sqft | Distance |
|---|---|---|---|
| Armourers Court | £ 233,125 | 0 | 0.00 KM |
| Park View | £ 105,052 | 0 | 0.00 KM |
| Malthouse Road | £ 0 | 0 | 0.00 KM |
| Back Duke Street | £ 150,000 | 0 | 0.00 KM |
| Clifton Terrace | £ 0 | 0 | 0.00 KM |
Nearby Transport
| Name | NLC | TLC | Distance |
|---|---|---|---|
| Alnmouth | 7787 | ALM | 7.49 KM |
Nearby Listings
| Address | Price | Type | Score | Distance |
|---|---|---|---|---|
| Arkle Court, Alnwick, Northumberland, NE66 | £ 225,000 | BUY | 7 / 10 | 0.00 KM |
| Arkle Court, Alnwick, Northumberland, NE66 | £ 230,000 | BUY | 6 / 10 | 0.00 KM |
| Arkle Court, Alnwick | £ 50,000 | BUY | 6 / 10 | 0.00 KM |
| Arkle Court, Alnwick | £ 190,000 | BUY | 7 / 10 | 0.00 KM |
| Arkle Court, Alnwick | £ 199,950 | BUY | 6 / 10 | 0.00 KM |
Nearby Properties
| Address | Price | Distance |
|---|---|---|
| 31 Arkle Court | £ 50,000 | 0.01 KM |
| 14 Arkle Court | £ 127,000 | 0.01 KM |
| 7 Arkle Court | £ 95,000 | 0.01 KM |
| 49 Arkle Court | £ 105,000 | 0.01 KM |
| 48 Arkle Court | £ 165,000 | 0.01 KM |