Percy Gardens, Tynemouth
By Brannen & Partners
£ 385,000
Reviews
3 out of 5 stars
Brannen & Partners says ..
BEAUTIFULLY POSITIONED OVERLOOKING LONGSANDS BEACH IN TYNEMOUTH IS THIS IMMACULATELY PRESENTED TWO BEDROOM FIRST FLOOR APARTMENT Brannen & Partners are delighted to offer to the market this spacious two bedroom first floor apartment which is ideally situated in the heart of Tynemouth. B...
Property Oracle says ..
The property is located in Percy Gardens, Tynemouth, a desirable area known for its coastal views and proximity to local amenities. The images show a well-maintained property that appears to be in excellent condition, with modern fixtures and fittings. However, the lack of plot size information is a significant drawback, as it limits the potential for outdoor space. The list price of £385,000 is significantly lower than the average price for the area (£525,346), and the price per square foot is also lower than the average (£302). Considering the property’s apparent condition and location, the price appears reasonable, potentially representing good value for money. However, further investigation into the specifics of the property (e.g., leasehold/freehold, service charges) would be necessary to make a definitive assessment.
Therefore, we give this property 6 / 10. *Disclaimer: This is our option and does constitute a recommendation or financial advice. Do your own research. *
- Price
- 8
- Condition
- 9
- Location
- 9
- Land
- 1
- Bedrooms
- 2
- Bathrooms
- 1
- Sqft (est)
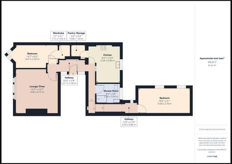
- 878.44
The heatmap indicates the level of crime in the area. The color of the heatmap indicates the crime severity and recency.
Metrics Year-on-Year
- Average area value
- 911,990.00 £Increased by 52.54 %
- Est sale value
- 419,894.32 £Decreased by 4.59 %
- Average area rental value
- 1,200.00 £/moDecreased by 18.81 %
- Est letting value
- 0.00 £/moDecreased by 100.00 %
- Est rental Yield
- 1.58 %Decreased by 46.80 %
- Crime Rate
- 9.00 %Unchanged by 0.00 %
Agent Activity
Brannen & Partners marked this listing as sold.
Brannen & Partners created the listing.
Nearby Schools
| Name | Type | Ofsted | Distance |
|---|---|---|---|
| Kings Priory School | Academy Sponsor Led | Good | 0.55 KM |
| Sir James Knott Memorial Nursery School | Local Authority Nursery School | Good | 1.41 KM |
| Cullercoats Primary School | Community School | Good | 1.87 KM |
| Marden High School | Foundation School | Good | 2.26 KM |
| Hadrian Primary School | Community School | Outstanding | 2.36 KM |
Images
Nearby Streets
| Name | Average Price | Average Sqft | Distance |
|---|---|---|---|
| Knott Memorial Flats | £ 0 | 0 | 0.00 KM |
| Kingsway | £ 700,000 | 0 | 0.00 KM |
| Park Avenue | £ 375,000 | 0 | 0.00 KM |
| Victoria Crescent | £ 125,000 | 0 | 0.00 KM |
| Walker Place | £ 300,000 | 0 | 0.00 KM |
Nearby Listings
| Address | Price | Type | Score | Distance |
|---|---|---|---|---|
| Percy Gardens, Tynemouth | £ 385,000 | BUY | 6 / 10 | 0.00 KM |
| Percy Gardens, Tynemouth | £ 400,000 | BUY | 5 / 10 | 0.11 KM |
| Percy Gardens, North Shields, Tyne & Wear, NE30 | £ 675,000 | BUY | 7 / 10 | 0.14 KM |
| Percy Gardens, North Shields | £ 450,000 | BUY | 5 / 10 | 0.16 KM |
| Percy Gardens, North Shields | £ 430,000 | BUY | 5 / 10 | 0.16 KM |
Nearby Properties
| Address | Price | Distance |
|---|---|---|
| 47 Percy Gardens | £ 450,000 | 0.13 KM |
| 49 Percy Gardens | £ 500,000 | 0.13 KM |
| 48 Percy Gardens | £ 479,999 | 0.13 KM |
| 48a Percy Gardens | £ 277,500 | 0.13 KM |
| 46 Percy Gardens | £ 765,000 | 0.13 KM |