Chancellors says ..
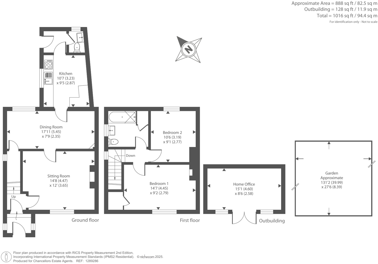
Two bedroom village property, with sitting room kitchen,utility area, two double bedrooms family bathroom, to the rear a fantastic garden with insulated log cabin, to the front on road parking for two vehicles
Property Oracle says ..
This property is a 2 bedroom, 1 bathroom semi-detached house located in Bladon, Oxfordshire. The property is well presented and benefits from a recently updated kitchen and bathroom. The property also benefits from a good size garden. The location is excellent, with a primary school within walking distance and good transport links to Oxford and Hanborough train station. The property is priced slightly above average for the area, but this is likely due to its condition and location.
Therefore, we give this property 7 / 10. *Disclaimer: This is our option and does constitute a recommendation or financial advice. Do your own research. *
- Price
- 7
- Condition
- 8
- Location
- 9
- Land
- 7
- Bedrooms
- 2
- Bathrooms
- 1
- Sqft (est)
- 1,016.00
- Lot (est)
- 131.20
The heatmap indicates the level of crime in the area. The color of the heatmap indicates the crime severity and recency.
Metrics Year-on-Year
- Average area value
- 270,000.00 £Increased by 41.58 %
- Est sale value
- 368,808.00 £Increased by 61.33 %
- Average area rental value
- 936.00 £/moDecreased by 3.51 %
- Est letting value
- 1,016.00 £/moUnchanged by 0.00 %
- Est rental Yield
- 4.16 %Decreased by 31.80 %
- Crime Rate
- 49.00 %Unchanged by 0.00 %
Agent Activity
Chancellors created the listing.
Nearby Schools
| Name | Type | Ofsted | Distance |
|---|---|---|---|
| Bladon Church Of England Primary School | Voluntary Controlled School | Good | 0.45 KM |
| Woodstock Church Of England Primary School | Voluntary Controlled School | Outstanding | 2.37 KM |
| The Marlborough Church Of England School | Academy Converter | Good | 2.54 KM |
| Lvs Oxford | Other Independent Special School | 2.68 KM | |
| St Peter'S Church Of England Primary School, Cassington | Academy Converter | Good | 3.80 KM |
Images
Nearby Streets
| Name | Average Price | Average Sqft | Distance |
|---|---|---|---|
| Park End Cottages | £ 575,000 | 0 | 0.00 KM |
| Taylors Close | £ 0 | 0 | 0.00 KM |
| Turrils Row | £ 512,500 | 0 | 0.00 KM |
| Rose Drive | £ 0 | 0 | 0.00 KM |
| Youngs Way | £ 250,000 | 0 | 0.00 KM |
Nearby Transport
| Name | NLC | TLC | Distance |
|---|---|---|---|
| Hanborough | 3007 | HND | 2.83 KM |
| Combe (Oxon) | 3005 | CME | 5.13 KM |
| Tackley | 3195 | TAC | 8.22 KM |
| Oxford Parkway | 3121 | OXP | 8.52 KM |
Nearby Listings
| Address | Price | Type | Score | Distance |
|---|---|---|---|---|
| Bladon, Oxfordshire, OX20 | £ 550,000 | BUY | 7 / 10 | 0.00 KM |
| Heath Lane, Bladon, OX20 | £ 650,000 | BUY | 7 / 10 | 0.07 KM |
| Heath Lane, Bladon, OX20 | £ 500,000 | BUY | 7 / 10 | 0.10 KM |
| Heath Lane, Bladon, Woodstock | £ 650,000 | BUY | 8 / 10 | 0.13 KM |
| Heath Lane, Bladon, OX20 | £ 420,000 | BUY | 7 / 10 | 0.25 KM |
Nearby Properties
| Address | Price | Distance |
|---|---|---|
| 73 Heath Lane | £ 518,000 | 0.05 KM |
| 39 Heath Lane | £ 305,000 | 0.05 KM |
| 21 Heath Lane | £ 410,000 | 0.05 KM |
| 17 Heath Lane | £ 395,000 | 0.05 KM |
| 23 Heath Lane | £ 592,500 | 0.05 KM |