Inkerman Road, Knaphill, Woking, GU21
By Pacey Wingent Dickson
£ 490,000
Reviews
3 out of 5 stars
Pacey Wingent Dickson says ..
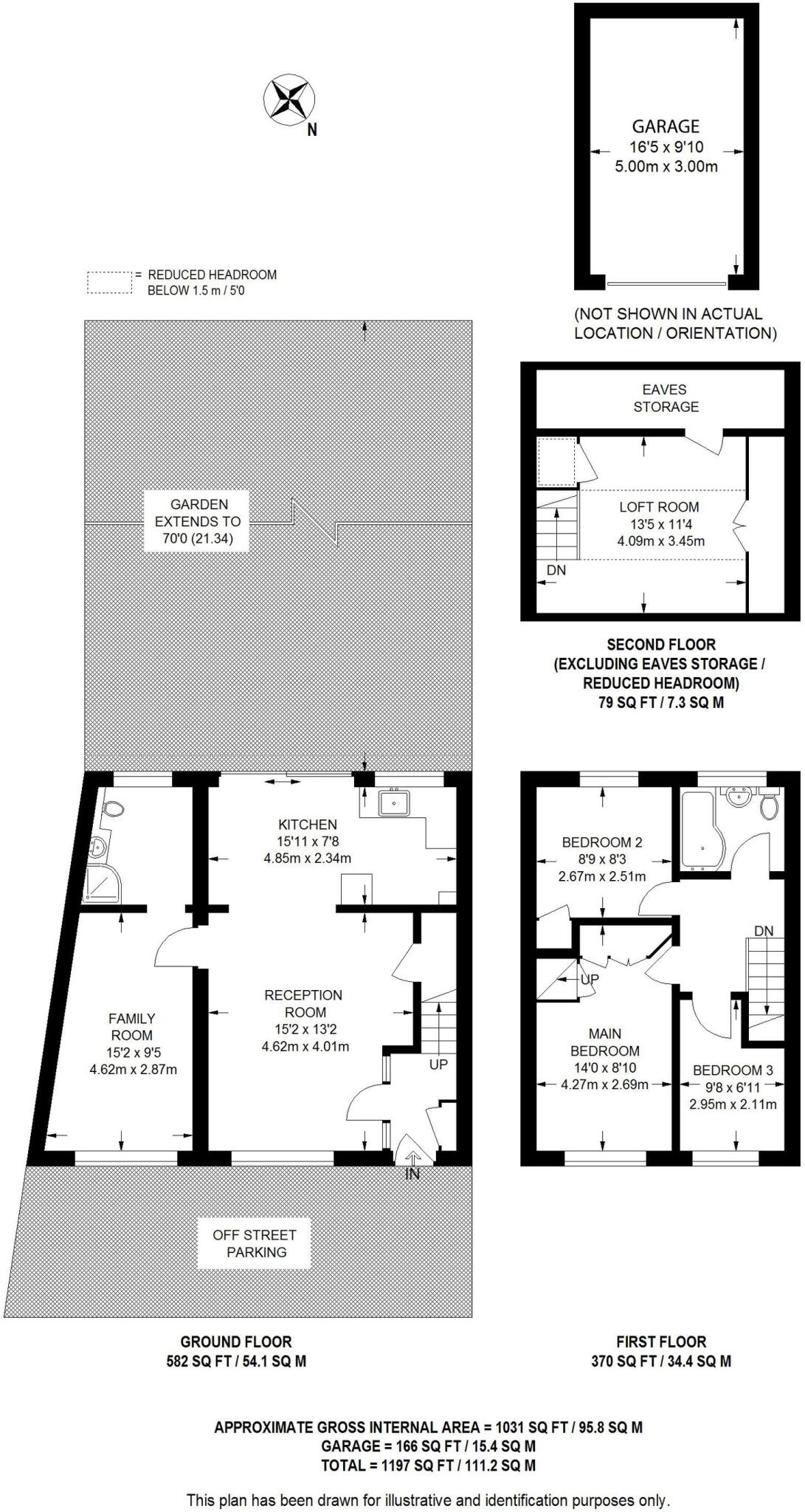
Presented in good order throughout, this spacious three-bedroom end-of-terrace family home is located in Knaphill, just a short walk from local amenities and highly regarded schools. The ground floor offers open-plan living with a lounge leading into the kitchen/dining area, complete wi...
Property Oracle says ..
The property is located in Knaphill, Woking, Surrey. It is an end of terrace house with three bedrooms and two bathrooms, and a plot size of 700 sqft. The list price is £490,000. The average house price in the area is £511,523, with an average price per sqft of £483. This property is slightly below average in price, but it has a larger than average sqft at 1,197 sqft. Nearby schools include St John’s Primary School (Requires Improvement Ofsted rating) and St Hugh of Lincoln Catholic Primary School (Good Ofsted rating), both within a reasonable distance. Several other schools are also nearby. Transportation links appear good, with several train stations within a reasonable distance. Based on the provided images, the property appears to be in good condition. There is no obvious evidence of significant repair or renovation needs. The property benefits from a garden, which is a desirable feature. Considering the property’s condition, location, and land, the list price of £490,000 appears to be reasonable and in line with the local market. The property is slightly below the average price for the area but larger than average in size. The proximity to good schools and transport links further enhances its desirability.
Therefore, we give this property 7 / 10. *Disclaimer: This is our option and does constitute a recommendation or financial advice. Do your own research. *
- Price
- 7
- Condition
- 8
- Location
- 8
- Land
- 7
- Bedrooms
- 3
- Bathrooms
- 2
- Sqft (est)
- 1,197.00
- Lot (est)
- 700.00
The heatmap indicates the level of crime in the area. The color of the heatmap indicates the crime severity and recency.
Metrics Year-on-Year
- Average area value
- 586,400.00 £Increased by 18.76 %
- Est sale value
- 569,772.00 £Increased by 6.01 %
- Average area rental value
- 2,150.00 £/moIncreased by 9.47 %
- Est letting value
- 1,197.00 £/moUnchanged by 0.00 %
- Est rental Yield
- 4.40 %Decreased by 7.76 %
- Crime Rate
- 8.00 %Unchanged by 0.00 %
Agent Activity
Pacey Wingent Dickson created the listing.
Nearby Schools
| Name | Type | Ofsted | Distance |
|---|---|---|---|
| St John'S Primary School | Academy Sponsor Led | Requires improvement | 0.11 KM |
| St John'S Primary School And Sure Start Children'S Centre | Children's Centre | 0.11 KM | |
| St Hugh Of Lincoln Catholic Primary School | Academy Converter | Good | 0.54 KM |
| The Oaktree School | Academy Converter | 0.63 KM | |
| The Hermitage School | Academy Converter | Good | 0.72 KM |
Images
Nearby Streets
| Name | Average Price | Average Sqft | Distance |
|---|---|---|---|
| Beechwood Close | £ 0 | 0 | 0.00 KM |
| Oakway | £ 475,000 | 0 | 0.00 KM |
| Elmgrove Close | £ 425,000 | 0 | 0.00 KM |
| Oakwood Road | £ 0 | 0 | 0.00 KM |
| Robin Hood Roundabout cycle path | £ 0 | 0 | 0.00 KM |
Nearby Transport
| Name | NLC | TLC | Distance |
|---|---|---|---|
| Brookwood | 5687 | BKO | 3.34 KM |
| Worplesdon | 5686 | WPL | 4.07 KM |
| Woking | 5685 | WOK | 5.65 KM |
| Longcross | 5674 | LNG | 7.89 KM |
| Sunningdale | 5671 | SNG | 8.94 KM |
Nearby Listings
| Address | Price | Type | Score | Distance |
|---|---|---|---|---|
| Inkerman Road, Knaphill, Woking, GU21 | £ 490,000 | BUY | 7 / 10 | 0.00 KM |
| Knaphill | £ 385,000 | BUY | 6 / 10 | 0.11 KM |
| Inkerman Road, Knaphill, Woking, Surrey, GU21 | £ 485,000 | BUY | 6 / 10 | 0.16 KM |
| Victoria Road, Knaphill, Woking, Surrey, GU21 | £ 425,000 | BUY | 6 / 10 | 0.17 KM |
| Burnham Road, Knaphill, Woking, Surrey, GU21 | £ 439,950 | BUY | 6 / 10 | 0.19 KM |
Nearby Properties
| Address | Price | Distance |
|---|---|---|
| 24 Inkerman Road | £ 327,500 | 0.01 KM |
| 14 Inkerman Road | £ 360,000 | 0.01 KM |
| 32 Inkerman Road | £ 394,000 | 0.01 KM |
| 38 Inkerman Road | £ 207,000 | 0.01 KM |
| 18 Inkerman Road | £ 259,500 | 0.01 KM |