Blue Stone Lane, Mawdesley, L40 2RJ
Home Truths logo

Blue Stone Lane, Mawdesley, L40 2RJ

By Home Truths

£ 550,000

Reviews

4 out of 5 stars

Home Truths says ..

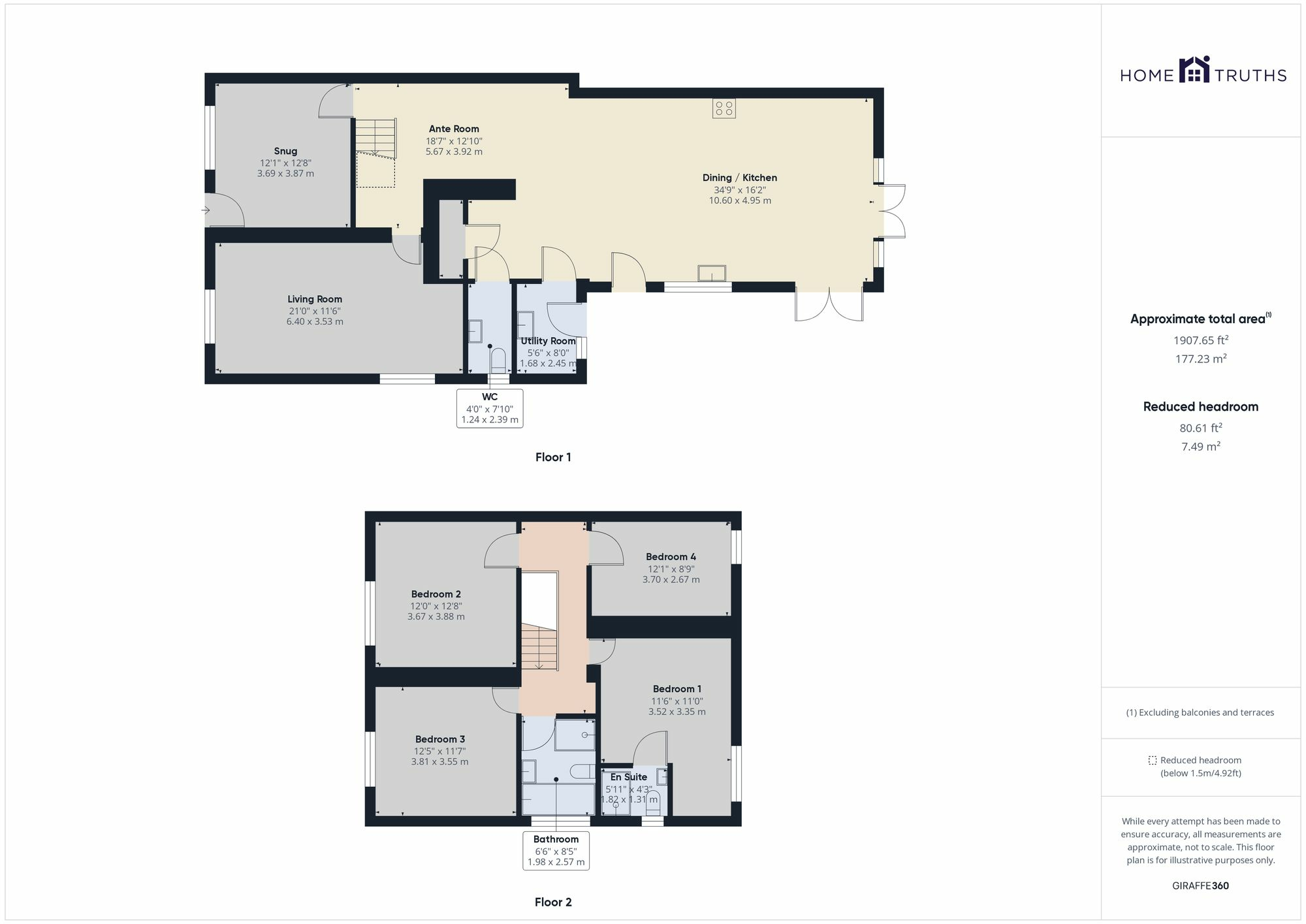
Striking four bedroom detached property with stunning family room, ample off road parking and 1900 square feet of delightful accommodation. In a sought after location within easy reach of local villages this spacious family home is available with no upward chain.

Property Oracle says ..

This property is located in Mawdesley, Lancashire, and is currently listed for £550,000. The area has an average house price of £533,569 and an average price per square foot of £226. This property is 1,907.65 sqft, which is smaller than the average for the area. The images show a property that has undergone significant modernisation and extension works. The property appears to be in excellent condition, with a modern kitchen and bathrooms. There is a sizeable garden to the rear of the property. Given the size, condition, and location, the asking price appears reasonable, although slightly above average for the area. However, the modern upgrades and the condition of the property may justify the higher price.

Therefore, we give this property 8 / 10. *Disclaimer: This is our option and does constitute a recommendation or financial advice. Do your own research. *

Price
8
Condition
10
Location
7
Land
7
Bedrooms
4
Bathrooms
3
Sqft (est)
1,907.65

The heatmap indicates the level of crime in the area. The color of the heatmap indicates the crime severity and recency.

Metrics Year-on-Year

Average area value
362,000.00 £
Decreased by 15.58 %
from 428,824.00 £
Est sale value
419,683.00 £
Decreased by 20.58 %
from 528,419.05 £
Average area rental value
1,148.00 £/mo
Increased by 13.55 %
from 1,011.00 £/mo
Est letting value
0.00 £/mo
from 0.00 £/mo
Est rental Yield
3.81 %
Increased by 34.63 %
from 2.83 %
Crime Rate
32.00 %
Unchanged by 0.00 %
from 32.00 %

Agent Activity

  • Home Truths created the listing.

Nearby Schools

NameTypeOfstedDistance
St Peter And Paul Catholic Primary School, MawdesleyVoluntary Aided SchoolGood1.18 KM
Mawdesley St Peter'S Church Of England Primary SchoolVoluntary Aided SchoolGood2.12 KM
Richard Durning'S Endowed Primary SchoolVoluntary Controlled SchoolOutstanding2.78 KM
Eccleston Primary SchoolCommunity SchoolGood2.86 KM
Eccleston St Mary'S Church Of England Primary SchoolVoluntary Aided SchoolGood3.19 KM

Images

Living room Rear elevation Reception two Reception two Living room Kitchen Kitchen Lots of light Cloakroom First floor landing Bedroom one Bedroom two Bedroom Bedroom Bathroom The approach Heart of the house Dining hallway Heart of the house Kitchen Plenty of space Bedroom one En suite Bedroom Bathroom Bathroom Plot Plot Garden

Nearby Streets

NameAverage PriceAverage SqftDistance
Hand Lane £ 000.00 KM
Syd Brook Lane £ 1,531,66700.00 KM
Bentley Lane £ 000.00 KM

Nearby Transport

NameNLCTLCDistance
Croston2313CSO4.76 KM
Parbold2402PBL5.29 KM
Rufford2315RUF6.30 KM
Appley Bridge2396APB7.08 KM
Hoscar2399HSC7.16 KM

Nearby Listings

AddressPriceTypeScoreDistance
Blue Stone Lane, Mawdesley L40 £ 785,000BUY7 / 100.11 KM
Sherford, Blue Stone Lane, L40 2RH £ 489,950BUY6 / 100.11 KM
Clay Hollow Lane, Mawdesley £ 1,600,000BUY9 / 100.23 KM
Clay Hollow Lane, Mawdesley, L40 £ 1,600,000BUY8 / 100.23 KM
Blue Stone Lane, Mawdesley, L40 £ 570,000BUY7 / 100.61 KM

Nearby Properties

AddressPriceDistance
Chase Cottage £ 150,0000.08 KM
Moorhey £ 310,0000.08 KM
Debryn £ 391,5000.71 KM
Bro Dawel £ 260,0000.71 KM
Holly Cottage £ 200,0000.72 KM