BE
Eaton Place, London, SW1X
By Beauchamp Estates Ltd
£ 9,950,000
Reviews
3 out of 5 stars
Beauchamp Estates Ltd says ..
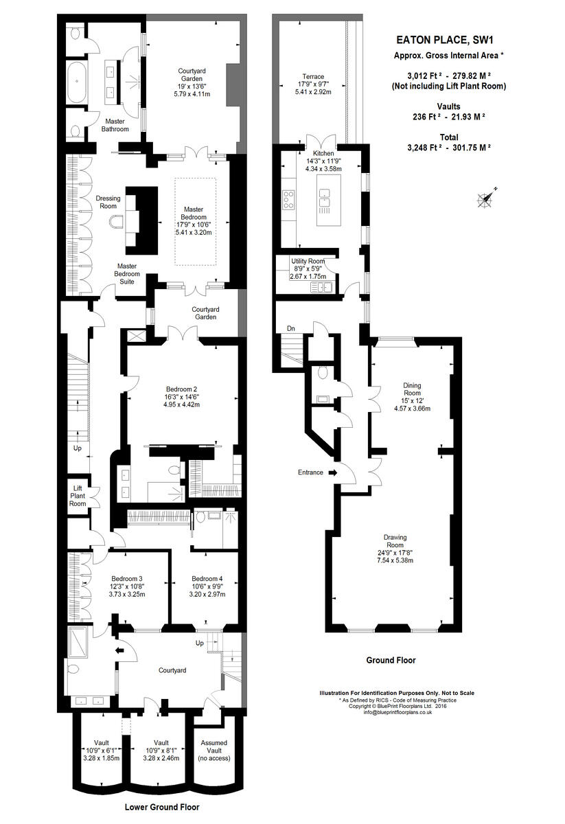
A luxurious Grade II listed stucco-fronted maisonette in Belgravia
Property Oracle says ..
This is a well-presented apartment in a prime central London location. The property benefits from modern interiors and a small outdoor space. While the price is high compared to the average price per square foot in the area, the location and condition justify a premium.
Therefore, we give this property 7 / 10. *Disclaimer: This is our option and does constitute a recommendation or financial advice. Do your own research. *
- Price
- 6
- Condition
- 9
- Location
- 9
- Land
- 6
- Bedrooms
- 4
- Bathrooms
- 4
- Sqft (est)
- 627.32
The heatmap indicates the level of crime in the area. The color of the heatmap indicates the crime severity and recency.
Metrics Year-on-Year
- Average area value
- 6,127,143.00 £Decreased by 20.04 %
- Est sale value
- 2,284,699.44 £Increased by 42.27 %
- Average area rental value
- 6,577.00 £/moDecreased by 13.72 %
- Est letting value
- 1,881.96 £/moIncreased by 50.00 %
- Est rental Yield
- 1.29 %Increased by 8.40 %
- Crime Rate
- 1.00 %Unchanged by 0.00 %
from 7,663,125.00 £
from 1,605,939.20 £
from 7,623.00 £/mo
from 1,254.64 £/mo
from 1.19 %
from 1.00 %
Agent Activity
Beauchamp Estates Ltd created the listing.
Nearby Schools
| Name | Type | Ofsted | Distance |
|---|---|---|---|
| Inchbald School Of Design | Miscellaneous | 0.30 KM | |
| Eaton House School | Other Independent School | 0.31 KM | |
| Holy Trinity Cofe Primary School | Voluntary Aided School | Good | 0.49 KM |
| Francis Holland School | Other Independent School | 0.58 KM | |
| More House School | Other Independent School | 0.65 KM |
Images
Nearby Streets
| Name | Average Price | Average Sqft | Distance |
|---|---|---|---|
| Eaton Place | £ 0 | 0 | 0.00 KM |
| Caroline Terrace | £ 0 | 0 | 0.00 KM |
| Bourne Street | £ 0 | 0 | 0.00 KM |
| Cadogan Place | £ 0 | 0 | 0.00 KM |
| Palace Mews | £ 0 | 0 | 0.00 KM |
Nearby Transport
| Name | NLC | TLC | Distance |
|---|---|---|---|
| Victoria | 5426 | VIC | 1.04 KM |
| Battersea Park | 5420 | BAK | 2.31 KM |
| Queenstown Road (Battersea) | 5596 | QRB | 2.55 KM |
| Marylebone | 1475 | MYB | 3.04 KM |
| Paddington | 3087 | PAD | 3.27 KM |
Nearby Listings
| Address | Price | Type | Score | Distance |
|---|---|---|---|---|
| Eaton Place, London, SW1X | £ 9,950,000 | BUY | 7 / 10 | 0.00 KM |
| Eaton Place, London, SW1X | £ 4,850,000 | BUY | 6 / 10 | 0.00 KM |
| Eaton Place, London | £ 2,995,000 | BUY | 7 / 10 | 0.01 KM |
| Eaton Place, Belgravia, United Kingdom | £ 9,900,000 | BUY | 7 / 10 | 0.02 KM |
| Eaton Place, Belgravia, London, SW1X, United Kingdom | £ 9,950,000 | BUY | 7 / 10 | 0.02 KM |
Nearby Properties
| Address | Price | Distance |
|---|---|---|
| 47 Eaton Place | £ 1,300,000 | 0.02 KM |
| 55 Eaton Place | £ 3,470,000 | 0.02 KM |
| 51 Eaton Place | £ 1,275,000 | 0.02 KM |
| 49 Eaton Place | £ 846,800 | 0.02 KM |
| 70 Eaton Place | £ 5,800,000 | 0.06 KM |