Chiswick Green Studios, Chiswick, London, W4
By Foxtons
£ 875,000
Reviews
3 out of 5 stars
Foxtons says ..
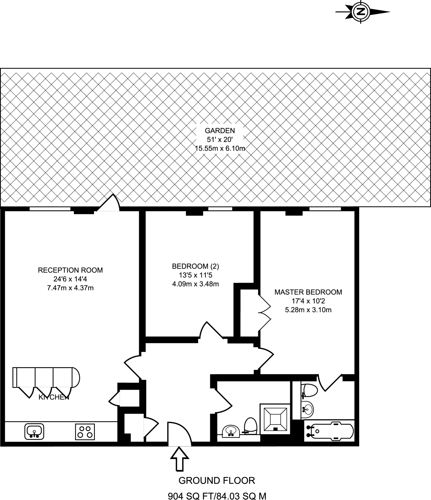
Situated within one of Chiswick's most desirable portered developments, a 2 bedroom ground floor flat with a large private garden, high ceilings and modern décor, secure portered entrance and underground parking.
Property Oracle says ..
Therefore, we give this property 7 / 10. *Disclaimer: This is our option and does constitute a recommendation or financial advice. Do your own research. *
- Price
- 7
- Condition
- 7
- Location
- 9
- Land
- 6
- Bedrooms
- 2
- Bathrooms
- 2
- Sqft (est)
- 904.00
- Lot (est)
- 1,020.00
The heatmap indicates the level of crime in the area. The color of the heatmap indicates the crime severity and recency.
Metrics Year-on-Year
- Average area value
- 1,041,354.00 £Increased by 4.07 %
- Est sale value
- 817,216.00 £Decreased by 9.51 %
- Average area rental value
- 2,091.00 £/moIncreased by 6.25 %
- Est letting value
- 904.00 £/moUnchanged by 0.00 %
- Est rental Yield
- 2.41 %Increased by 2.12 %
- Crime Rate
- 2.00 %Unchanged by 0.00 %
from 1,000,583.00 £
from 903,096.00 £
from 1,968.00 £/mo
from 904.00 £/mo
from 2.36 %
from 2.00 %
Agent Activity
Foxtons created the listing.
Nearby Schools
| Name | Type | Ofsted | Distance |
|---|---|---|---|
| Belmont Primary School | Community School | Outstanding | 0.53 KM |
| Heathfield House School | Other Independent School | 0.72 KM | |
| Ark Priory Primary Academy | Academy Sponsor Led | Outstanding | 0.89 KM |
| Orchard House School | Other Independent School | 0.93 KM | |
| Berrymede Infant School | Community School | Good | 1.04 KM |
Images
Nearby Streets
| Name | Average Price | Average Sqft | Distance |
|---|---|---|---|
| Cleveland Road | £ 1,150,000 | 0 | 0.00 KM |
| Clements Close | £ 0 | 0 | 0.00 KM |
| Evelyn Road | £ 785,000 | 0 | 0.00 KM |
| Priory Road | £ 723,000 | 0 | 0.00 KM |
| Holkham Lane | £ 0 | 0 | 0.00 KM |
Nearby Transport
| Name | NLC | TLC | Distance |
|---|---|---|---|
| South Acton | 1452 | SAT | 0.55 KM |
| Gunnersbury | 5588 | GUN | 1.16 KM |
| Acton Central | 1404 | ACC | 1.37 KM |
| Chiswick | 5583 | CHK | 1.76 KM |
| Acton Main Line | 3000 | AML | 2.26 KM |
Nearby Listings
| Address | Price | Type | Score | Distance |
|---|---|---|---|---|
| Evershed Walk, Chiswick, London, W4 | £ 900,000 | BUY | 6 / 10 | 0.00 KM |
| Chiswick Green Studios, Chiswick, London, W4 | £ 875,000 | BUY | 7 / 10 | 0.00 KM |
| Evershed Walk, London, W4 | £ 750,000 | BUY | 6 / 10 | 0.03 KM |
| Chiswick Green Studios, 1 Evershed Walk, London, W4 | £ 2,800,000 | BUY | 7 / 10 | 0.03 KM |
| Chiswick Green Studios, 1 Evershed Walk, London, W4 | £ 3,950,000 | BUY | Unknown | 0.03 KM |
Nearby Properties
| Address | Price | Distance |
|---|---|---|
| 25 Disraeli Close | £ 490,000 | 0.09 KM |
| 9 Disraeli Close | £ 485,000 | 0.09 KM |
| 18 Disraeli Close | £ 465,000 | 0.09 KM |
| 23 Disraeli Close | £ 510,000 | 0.09 KM |
| 16 Disraeli Close | £ 630,000 | 0.09 KM |