Southerton Road, Brackenbury Village , Hammersmith , W6
By Horton and Garton
£ 500,000
Reviews
3 out of 5 stars
Horton and Garton says ..
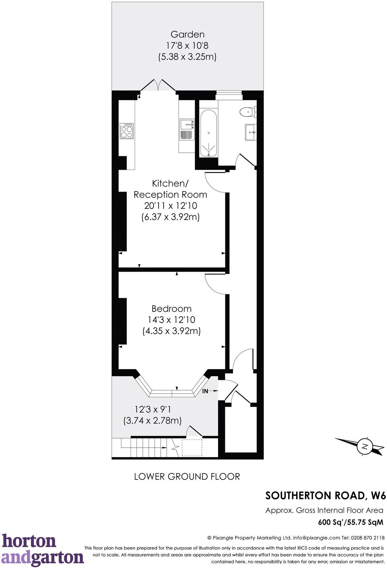
A spacious and characterful garden flat, circa 600 Sq’ – 55.75 SqM, with its own private front door, front bedroom with pretty bay window and a 20’11ft open-plan kitchen/living room. Located in Brackenbury Village close by all the transport links, shops and amenities of ...
Property Oracle says ..
This is a one-bedroom flat in Brackenbury Village, Hammersmith. The property benefits from a desirable location with good transport links and proximity to schools. The flat includes a garden with a shed. The interior appears to be in good condition, with a modern kitchen and bathroom, although some aspects are slightly dated. The price seems reasonable given the location, size, and condition of the property.
Therefore, we give this property 7 / 10. *Disclaimer: This is our option and does constitute a recommendation or financial advice. Do your own research. *
- Price
- 7
- Condition
- 7
- Location
- 8
- Land
- 6
- Bedrooms
- 1
- Bathrooms
- 1
- Sqft (est)
- 600.09
The heatmap indicates the level of crime in the area. The color of the heatmap indicates the crime severity and recency.
Metrics Year-on-Year
- Average area value
- 834,279.00 £Decreased by 5.94 %
- Est sale value
- 541,881.27 £Decreased by 8.23 %
- Average area rental value
- 2,797.00 £/moIncreased by 4.68 %
- Est letting value
- 1,800.27 £/moIncreased by 50.00 %
- Est rental Yield
- 4.02 %Increased by 11.36 %
- Crime Rate
- 4.00 %Unchanged by 0.00 %
Agent Activity
Horton and Garton created the listing.
Nearby Schools
| Name | Type | Ofsted | Distance |
|---|---|---|---|
| The Godolphin And Latymer School | Other Independent School | 0.19 KM | |
| West London Free School Primary | Free Schools | Outstanding | 0.29 KM |
| Earl'S Court Free School Primary | Free Schools | Outstanding | 0.31 KM |
| Westside School | Free Schools Alternative Provision | Outstanding | 0.56 KM |
| Tlg West London | Other Independent School | Good | 0.58 KM |
Images
Nearby Streets
| Name | Average Price | Average Sqft | Distance |
|---|---|---|---|
| Trussley Road | £ 0 | 0 | 0.00 KM |
| Glenthorne Road | £ 0 | 0 | 0.00 KM |
| Sussex Place | £ 0 | 0 | 0.00 KM |
| Samuels Close | £ 0 | 0 | 0.00 KM |
| King Street | £ 0 | 0 | 0.00 KM |
Nearby Transport
| Name | NLC | TLC | Distance |
|---|---|---|---|
| Shepherd'S Bush | 9587 | SPB | 1.58 KM |
| Kensington (Olympia) | 3092 | KPA | 2.00 KM |
| Barnes | 5551 | BNS | 3.55 KM |
| West Brompton | 8875 | WBP | 3.75 KM |
| Barnes Bridge | 5580 | BNI | 3.78 KM |
Nearby Listings
| Address | Price | Type | Score | Distance |
|---|---|---|---|---|
| Southerton Road, Brackenbury Village , Hammersmith , W6 | £ 500,000 | BUY | 7 / 10 | 0.00 KM |
| Overstone Road, Brackenbury Village, London, W6 | £ 450,000 | BUY | 6 / 10 | 0.03 KM |
| Southerton Road, Brackenbury Village, Hammersmith, W6 | £ 1,400,000 | BUY | 6 / 10 | 0.05 KM |
| Overstone Road, Hammersmith, W6 | £ 1,750,000 | BUY | Unknown | 0.07 KM |
| Overstone Road, Brackenbury Village , Hammersmith, W6 | £ 1,750,000 | BUY | 8 / 10 | 0.08 KM |
Nearby Properties
| Address | Price | Distance |
|---|---|---|
| 42 Southerton Road | £ 674,000 | 0.01 KM |
| 72 Southerton Road | £ 1,680,000 | 0.01 KM |
| 62 Southerton Road | £ 410,000 | 0.01 KM |
| 20b Southerton Road | £ 45,000 | 0.01 KM |
| 34 Southerton Road | £ 1,302,500 | 0.01 KM |