Finnieston Street, Finnieston, Glasgow City
RE

Finnieston Street, Finnieston, Glasgow City

By Rettie & Co

£ 245,000

Reviews

3 out of 5 stars

Rettie & Co says ..

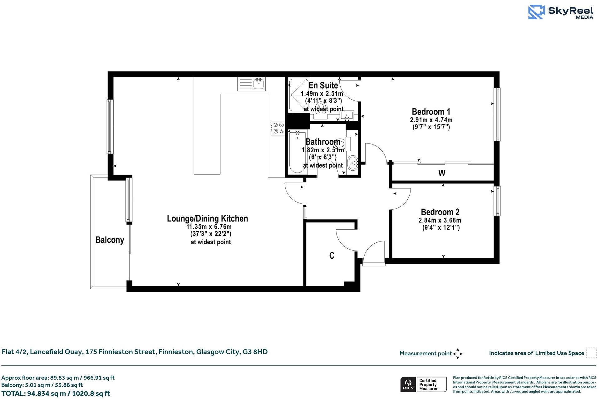
Stylish and having been comprehensively upgraded by the current owner, this generous fourth floor two bedroom flat offers the significant advantage of secure allocated parking space. Located in Finnieston, an area ideally positioned for both the thriving City Centres Financial Services District a...

Property Oracle says ..

This is a modern two-bedroom apartment located in the popular Finnieston area of Glasgow. The property is well-presented and benefits from good transport links and local amenities. The apartment would be ideally suited to a young professional or couple.

Therefore, we give this property 6 / 10. *Disclaimer: This is our option and does constitute a recommendation or financial advice. Do your own research. *

Price
6
Condition
8
Location
7
Land
3
Bedrooms
2
Bathrooms
2
Sqft (est)
219.69

The heatmap indicates the level of crime in the area. The color of the heatmap indicates the crime severity and recency.

Metrics Year-on-Year

Average area value
187,350.00 £
Decreased by 5.41 %
from 198,063.00 £
Est sale value
55,361.88 £
Increased by 16.13 %
from 47,672.73 £
Average area rental value
1,626.00 £/mo
Increased by 1.75 %
from 1,598.00 £/mo
Est letting value
439.38 £/mo
Increased by 100.00 %
from 219.69 £/mo
Est rental Yield
10.41 %
Increased by 7.54 %
from 9.68 %
Crime Rate
0.00 %
from 0.00 %

Agent Activity

  • Rettie & Co created the listing.

Images

Picture No. 14 Picture No. 20 Picture No. 21 Picture No. 02 Picture No. 03 Picture No. 04 Picture No. 05 Picture No. 06 Picture No. 07 Picture No. 09 Picture No. 10 Picture No. 13 Picture No. 15 Picture No. 16 Picture No. 17 Picture No. 18 Picture No. 22 Picture No. 23 Picture No. 24 Picture No. 25 Picture No. 26 Picture No. 27 Picture No. 28 Picture No. 32 Picture No. 33 Picture No. 34 Picture No. 35 Picture No. 36 Picture No. 41 Picture No. 42 Picture No. 43 Picture No. 44 Picture No. 45

Nearby Streets

NameAverage PriceAverage SqftDistance
Stobcross Road £ 000.00 KM
Mair Street £ 000.00 KM
Marine Crescent £ 225,00000.00 KM
Lancefield Street £ 000.00 KM
Stanley Street £ 000.00 KM

Nearby Transport

NameNLCTLCDistance
Exhibition Centre (Glasgow)9914EXG0.42 KM
Anderston9965AND1.17 KM
Charing Cross (Glasgow)9911CHC1.47 KM
Pollokshields West9623PLW2.38 KM
Pollokshields East9821PLE2.39 KM

Nearby Listings

AddressPriceTypeScoreDistance
Finnieston Street, Finnieston, Glasgow City £ 245,000BUY6 / 100.00 KM
6/1, 171 Finnieston Street, Glasgow, Glasgow City, G3 £ 390,000BUY8 / 100.04 KM
Finnieston Street, Finnieston, Glasgow City £ 249,000BUY7 / 100.04 KM
Finnieston Street, Finnieston £ 230,000BUYUnknown0.05 KM
5/1, 171 Finnieston Street, Glasgow, City of Glasgow, G3 8HD £ 215,000BUYUnknown0.05 KM