Chetwode Road, SW17
RA

Chetwode Road, SW17

By Rampton Baseley

£ 450,000

Reviews

3 out of 5 stars

Rampton Baseley says ..

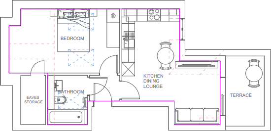
This one-bedroom apartment has been created with modern living in mind and to the highest specification throughout. Newly built in the Victorian style and measuring approximately 425 sq ft, the property also benefits from a private terrace.

Property Oracle says ..

This one-bedroom apartment located on Chetwode Road, SW17, is presented as a modern and well-appointed property. The images showcase a high-quality finish, with a contemporary design throughout the kitchen, bedroom and bathroom. The inclusion of a private terrace adds a desirable outdoor element, although the exact dimensions of the space are not provided. The property’s location in the Nightingale area of Wandsworth offers proximity to good transport links such as Balham and Wandsworth Common stations, making it convenient for commuters. The presence of several well-regarded schools nearby enhances the family-friendliness of the area. However, more information regarding the apartment’s precise square footage is needed to comprehensively assess the value for money. The listed price of £450,000, while seemingly in line with local market trends based on comparable properties without exact square footage information, cannot be firmly judged as exceptionally good value without that data. Overall, the property represents an attractive option for a single person or couple seeking a modern and well-located one-bedroom apartment in a convenient part of South West London.

Therefore, we give this property 6 / 10. *Disclaimer: This is our option and does constitute a recommendation or financial advice. Do your own research. *

Price
7
Condition
9
Location
7
Land
2
Bedrooms
1
Bathrooms
1

The heatmap indicates the level of crime in the area. The color of the heatmap indicates the crime severity and recency.

Metrics Year-on-Year

Average area value
1,130,667.00 £
Increased by 13.32 %
from 997,755.00 £
Average area rental value
2,767.00 £/mo
Increased by 5.85 %
from 2,614.00 £/mo
Est rental Yield
2.94 %
Decreased by 6.37 %
from 3.14 %
Crime Rate
11.00 %
Unchanged by 0.00 %
from 11.00 %

Agent Activity

  • Rampton Baseley created the listing.

Nearby Schools

NameTypeOfstedDistance
St Anselm'S Catholic Primary SchoolVoluntary Aided SchoolOutstanding0.24 KM
Rutherford House SchoolFree SchoolsGood0.48 KM
Hillbrook Primary School And Centre For Childen & FamiliesChildren's Centre0.55 KM
Eveline Day SchoolOther Independent School0.60 KM
Fircroft Primary SchoolCommunity SchoolGood0.63 KM

Images

Picture No. 07 Picture No. 04 Picture No. 03 Picture No. 01 Picture No. 05 Picture No. 09 Picture No. 14 Picture No. 15 Picture No. 13 Picture No. 20 Picture No. 25 Picture No. 11 Picture No. 12 Picture No. 16 Picture No. 17 Picture No. 18 Picture No. 19 Picture No. 22 Picture No. 23 Picture No. 26 Picture No. 21 Picture No. 24

Nearby Streets

NameAverage PriceAverage SqftDistance
Fovant Hut £ 000.00 KM
Upper Tooting Park £ 480,00000.00 KM
Brook Close £ 000.00 KM
Topsham Road £ 750,00000.00 KM
Pavilion Square £ 450,00000.00 KM

Nearby Transport

NameNLCTLCDistance
Balham5399BAL1.01 KM
Wandsworth Common5395WSW1.11 KM
Tooting5389TOO1.93 KM
Earlsfield5584EAD3.21 KM
Clapham Junction5595CLJ3.26 KM

Nearby Listings

AddressPriceTypeScoreDistance
Chetwode Road, SW17 £ 675,000BUY7 / 100.00 KM
Chetwode Road, SW17 £ 825,000BUY7 / 100.00 KM
Chetwode Road, SW17 £ 600,000BUYUnknown0.00 KM
Chetwode Road, SW17 £ 450,000BUY6 / 100.00 KM
Chetwode Road, Tooting Bec, London, SW17 £ 700,000BUY7 / 100.03 KM

Nearby Properties

AddressPriceDistance
19 Chetwode Road £ 157,5000.05 KM
48 Chetwode Road £ 1,050,0000.05 KM
10 Chetwode Road £ 67,0000.05 KM
47 Chetwode Road £ 1,010,0000.05 KM
7 Chetwode Road £ 350,0000.05 KM