Foxtons says ..
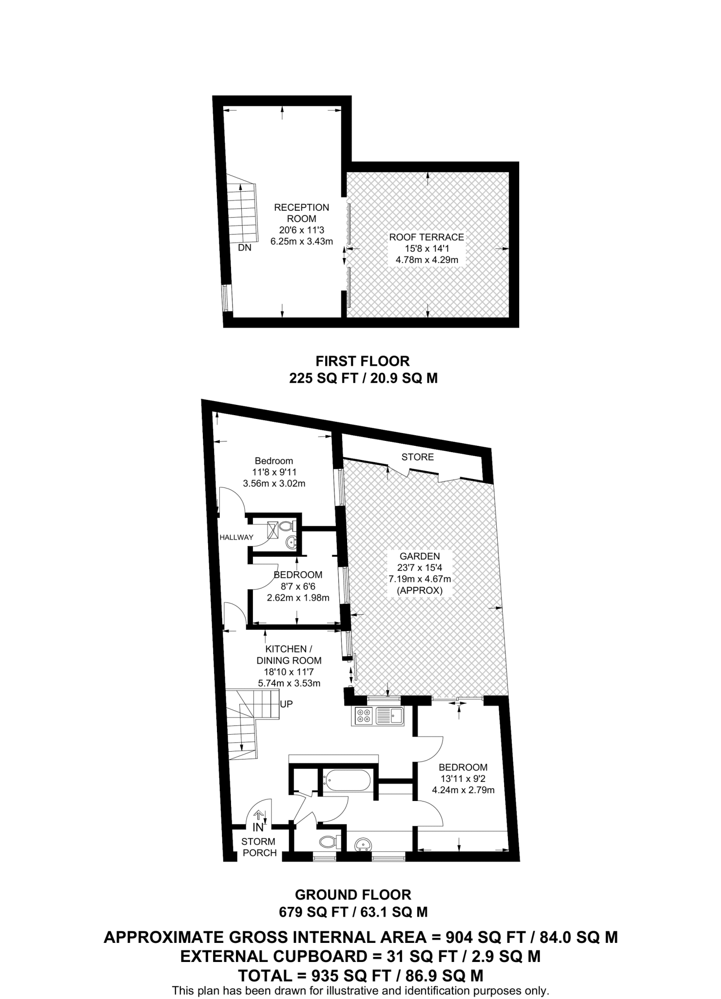
Located in a small gated development, moments from New Malden station and high street, this bright 3 bedroom house boasts a nice open plan living/kitchen area, sunny garden and roof terrace, and good storage throughout.
Property Oracle says ..
Therefore, we give this property 6 / 10. *Disclaimer: This is our option and does constitute a recommendation or financial advice. Do your own research. *
- Price
- 7
- Condition
- 6
- Location
- 7
- Land
- 7
- Bedrooms
- 4
- Bathrooms
- 2
- Sqft (est)
- 741.00
The heatmap indicates the level of crime in the area. The color of the heatmap indicates the crime severity and recency.
Metrics Year-on-Year
- Average area value
- 376,667.00 £Decreased by 11.42 %
- Est sale value
- 221,559.00 £Decreased by 27.43 %
- Average area rental value
- 1,100.00 £/moIncreased by 18.92 %
- Est letting value
- 0.00 £/mo
- Est rental Yield
- 3.50 %Increased by 34.10 %
- Crime Rate
- 8.00 %Unchanged by 0.00 %
from 425,220.00 £
from 305,292.00 £
from 925.00 £/mo
from 0.00 £/mo
from 2.61 %
from 8.00 %
Agent Activity
Foxtons created the listing.
Nearby Schools
| Name | Type | Ofsted | Distance |
|---|---|---|---|
| Christ Church New Malden Cofe Primary School | Voluntary Aided School | Good | 0.62 KM |
| The Holy Cross School | Academy Converter | 0.69 KM | |
| Coombe Girls' School | Academy Converter | Outstanding | 0.76 KM |
| Westbury House School | Other Independent School | 0.78 KM | |
| Corpus Christi Catholic Primary School | Voluntary Aided School | Good | 0.91 KM |
Images
Nearby Streets
| Name | Average Price | Average Sqft | Distance |
|---|---|---|---|
| Beeline Way | £ 605,000 | 0 | 0.00 KM |
| Burlington Road | £ 0 | 0 | 0.00 KM |
| Walton Avenue | £ 0 | 0 | 0.00 KM |
| Green Lane | £ 649,167 | 0 | 0.00 KM |
| Welbeck Close | £ 925,000 | 0 | 0.00 KM |
Nearby Transport
| Name | NLC | TLC | Distance |
|---|---|---|---|
| New Malden | 5567 | NEM | 0.51 KM |
| Malden Manor | 5599 | MAL | 2.15 KM |
| Berrylands | 5581 | BRS | 2.30 KM |
| Motspur Park | 5645 | MOT | 2.52 KM |
| Norbiton | 5568 | NBT | 2.76 KM |
Nearby Listings
| Address | Price | Type | Score | Distance |
|---|---|---|---|---|
| Acacia Grove, New Malden, KT3 | £ 700,000 | BUY | 6 / 10 | 0.00 KM |
| Acacia Grove, New Malden | £ 725,000 | BUY | 7 / 10 | 0.03 KM |
| Acacia Grove, Kingston, New Malden, KT3 | £ 350,000 | BUY | 5 / 10 | 0.06 KM |
| Acacia Grove, New Malden, KT3 | £ 1,350,000 | BUY | 7 / 10 | 0.07 KM |
| Linden Grove, New Malden, KT3 | £ 275,000 | BUY | Unknown | 0.08 KM |
Nearby Properties
| Address | Price | Distance |
|---|---|---|
| 33 Acacia Grove | £ 425,795 | 0.06 KM |
| 36 Acacia Grove | £ 149,950 | 0.06 KM |
| 44 Acacia Grove | £ 583,000 | 0.06 KM |
| 40 Acacia Grove | £ 635,000 | 0.06 KM |
| 51 Acacia Grove | £ 430,000 | 0.06 KM |