Angel Waterside, Graham Street, Islington, London, N1
By Scotts
£ 850,000
Reviews
3 out of 5 stars
Scotts says ..
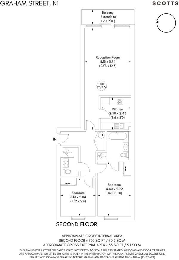
A contemporary two-bedroom, two-bathroom apartment fronting the picturesque City Road Basin, offering a sleek modern design and a wealth of amenities. This secure, concierge-serviced development boasts a spacious balcony with stunning water views, perfectly blending comfort and tranquility within...
Property Oracle says ..
This modern apartment is located in the desirable Islington area of London, close to Angel. The property boasts a waterfront location with views of the canal. The apartment itself appears to be in excellent condition, with modern fixtures and fittings. The open-plan living area is spacious and bright, and the kitchen is well-equipped. There is a balcony overlooking the canal. The location is convenient for transport links and local amenities. However, the lack of plot size may be a drawback for some buyers. The price is slightly above the average price per square foot for the area, but this is likely due to the desirable location and waterfront views. Overall, this is a well-presented apartment in a great location.
Therefore, we give this property 7 / 10. *Disclaimer: This is our option and does constitute a recommendation or financial advice. Do your own research. *
- Price
- 8
- Condition
- 9
- Location
- 10
- Land
- 1
- Bedrooms
- 2
- Bathrooms
- 2
- Sqft (est)
- 759.93
The heatmap indicates the level of crime in the area. The color of the heatmap indicates the crime severity and recency.
Metrics Year-on-Year
- Average area value
- 489,766.00 £Increased by 6.36 %
- Est sale value
- 526,631.49 £Increased by 54.34 %
- Average area rental value
- 2,264.00 £/moIncreased by 11.14 %
- Est letting value
- 2,279.79 £/moIncreased by 200.00 %
- Est rental Yield
- 5.55 %Increased by 4.52 %
- Crime Rate
- 4.00 %Unchanged by 0.00 %
Agent Activity
Scotts created the listing.
Nearby Schools
| Name | Type | Ofsted | Distance |
|---|---|---|---|
| Hanover Primary School | Community School | Good | 0.25 KM |
| Moreland Primary School | Community School | Good | 0.34 KM |
| Moreland Children'S Centre | Children's Centre | 0.36 KM | |
| Packington Children'S Centre | Children's Centre | 0.55 KM | |
| Richard Cloudesley School | Community Special School | Outstanding | 0.58 KM |
Images
Nearby Streets
| Name | Average Price | Average Sqft | Distance |
|---|---|---|---|
| Saint Peter's Street | £ 0 | 0 | 0.00 KM |
| Macclesfield Road | £ 0 | 0 | 0.00 KM |
| President Street | £ 425,000 | 0 | 0.00 KM |
| Baldwin Terrace | £ 0 | 0 | 0.00 KM |
| New Charles Street | £ 0 | 0 | 0.00 KM |
Nearby Transport
| Name | NLC | TLC | Distance |
|---|---|---|---|
| Essex Road | 6004 | EXR | 1.10 KM |
| Old Street | 6003 | OLD | 1.16 KM |
| Farringdon | 577 | ZFD | 1.46 KM |
| Moorgate | 6005 | MOG | 1.69 KM |
| Highbury And Islington | 6009 | HHY | 1.83 KM |
Nearby Listings
| Address | Price | Type | Score | Distance |
|---|---|---|---|---|
| Angel Waterside, Graham Street, Islington, London, N1 | £ 850,000 | BUY | 7 / 10 | 0.00 KM |
| Angel Waterside, Graham Street, Islington, London, N1 | £ 750,000 | BUY | 6 / 10 | 0.00 KM |
| Angel Waterside, Graham Street, Islington, N1 | £ 750,000 | BUY | Unknown | 0.01 KM |
| Angel Waterside, Graham Street, London, N1 | £ 380,000 | BUY | 5 / 10 | 0.03 KM |
| Graham Street, Islington | £ 25,000 | BUY | 5 / 10 | 0.06 KM |
Nearby Properties
| Address | Price | Distance |
|---|---|---|
| 79 City Garden Row | £ 740,000 | 0.12 KM |
| 1 Haverstock Place | £ 277,000 | 0.13 KM |
| 10 Haverstock Place | £ 234,500 | 0.13 KM |
| 8 Haverstock Place | £ 169,000 | 0.13 KM |
| 5 Haverstock Place | £ 160,000 | 0.13 KM |