Plot 7 at Bowling Green Gardens, Blaby.
By Carlton Estates
£ 540,000
Reviews
4 out of 5 stars
Carlton Estates says ..
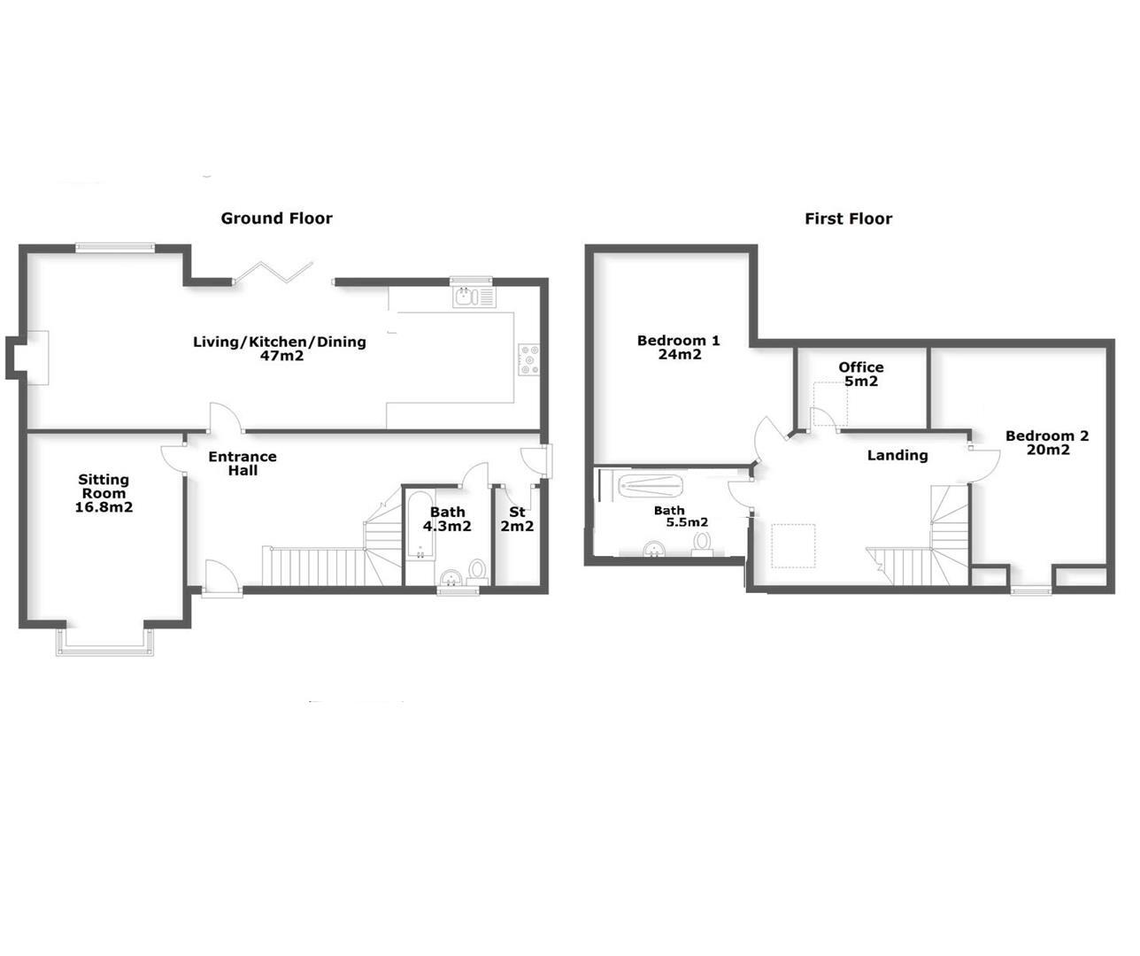
Introducing the long-awaited, FIRST RELEASE at BOWLING GREEN GARDENS, BLABY, a select development of just 12 BRAND NEW, EXECUTIVE HOMES within easy reach of Blaby Town Centre. Phase one comprises of FOUR, BRAND NEW, HIGH SPECIFICATION properties. Plot 7 is an IMPOSING DORMER B...
Property Oracle says ..
The property is a new build detached house located in Blaby, Leicestershire. The location benefits from being relatively close to several primary schools, with Glen Hills Primary School receiving a good Ofsted rating. Transport links appear reasonable, with several train stations within a reasonable distance. The property itself is modern in design and appears to be in excellent condition based on the provided images. It includes a garden. While the plot size is not specified, the images suggest a manageable garden area. The list price of £540,000 is higher than the average house price in the area (£309,996), but the property is larger than average (1341 sqft vs 923 sqft average). The average price per sqft in the area is £335. This property, given its new build status, modern design, and seemingly good condition, would likely command a higher price per sqft than the area average. More information on the plot size would be beneficial to accurately assess the price.
Therefore, we give this property 8 / 10. *Disclaimer: This is our option and does constitute a recommendation or financial advice. Do your own research. *
- Price
- 7
- Condition
- 10
- Location
- 8
- Land
- 7
- Bedrooms
- 3
- Bathrooms
- 1
- Sqft (est)
- 1,341.18
The heatmap indicates the level of crime in the area. The color of the heatmap indicates the crime severity and recency.
Metrics Year-on-Year
- Average area value
- 292,600.00 £Decreased by 8.13 %
- Est sale value
- 375,530.40 £Decreased by 2.78 %
- Average area rental value
- 1,188.00 £/moIncreased by 19.88 %
- Est letting value
- 1,341.18 £/mo
- Est rental Yield
- 4.87 %Increased by 30.56 %
- Crime Rate
- 5.00 %Unchanged by 0.00 %
Agent Activity
Carlton Estates created the listing.
Nearby Schools
| Name | Type | Ofsted | Distance |
|---|---|---|---|
| Blaby Stokes Church Of England Primary School | Academy Sponsor Led | 0.47 KM | |
| St Peter'S Church Of England Primary School Whetstone | Academy Converter | 1.02 KM | |
| Glen Hills Primary School | Academy Converter | Good | 1.17 KM |
| Blaby Thistly Meadow Primary School | Community School | Good | 1.30 KM |
| Foxfields Academy | Free Schools Special | 1.87 KM |
Images
Nearby Streets
| Name | Average Price | Average Sqft | Distance |
|---|---|---|---|
| Villers Court | £ 0 | 0 | 0.00 KM |
| The Close | £ 0 | 0 | 0.00 KM |
| Mill Hill Close | £ 365,000 | 0 | 0.00 KM |
| Hazlemere Close | £ 650,000 | 0 | 0.00 KM |
| Trinity Road | £ 205,000 | 0 | 0.00 KM |
Nearby Transport
| Name | NLC | TLC | Distance |
|---|---|---|---|
| Narborough | 1881 | NBR | 3.81 KM |
| South Wigston | 1949 | SWS | 3.94 KM |
| Leicester | 1947 | LEI | 7.82 KM |
Nearby Listings
| Address | Price | Type | Score | Distance |
|---|---|---|---|---|
| Plot 7 at Bowling Green Gardens, Blaby. | £ 540,000 | BUY | 8 / 10 | 0.00 KM |
| West Street, Blaby, Leicester, LE8 | £ 240,000 | BUY | 7 / 10 | 0.06 KM |
| Clark Gardens, Blaby, Leicester | £ 310,000 | BUY | 7 / 10 | 0.06 KM |
| West Street, Blaby, Leicester, Leicestershire, LE8 | £ 390,000 | BUY | Unknown | 0.07 KM |
| James Street, Blaby, Leicester, LE8 4GH | £ 220,000 | BUY | 6 / 10 | 0.10 KM |
Nearby Properties
| Address | Price | Distance |
|---|---|---|
| 15 West Street | £ 235,000 | 0.05 KM |
| 27 West Street | £ 264,000 | 0.05 KM |
| 35 West Street | £ 318,000 | 0.05 KM |
| 2 West Street | £ 405,000 | 0.05 KM |
| 32 West Street | £ 275,000 | 0.05 KM |