White Orchards, Totteridge
RE

White Orchards, Totteridge

By Real Estates

£ 1,950,000

Reviews

3 out of 5 stars

Real Estates says ..

Real Estates are delighted to offer for sale a well presented 5/6 bedroom residence, tucked away in a corner of this desirable cul de sac in the heart of Totteridge Village, just moments from Greenbelt and South Herts Golf Club. The Orange Tree public house and the open spaces of Totteridge Gre...

Property Oracle says ..

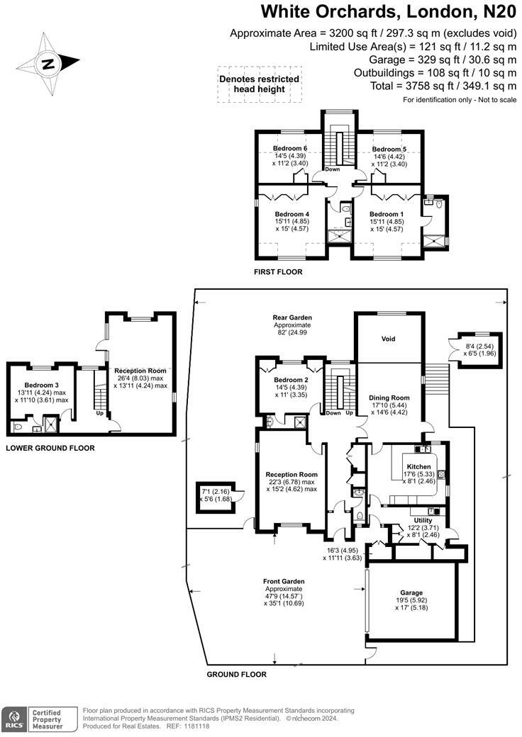
This 6-bedroom, 5-bathroom property in Totteridge, Barnet, offers a substantial living space of 3758 sq ft. Situated in a desirable cul-de-sac location, it benefits from the area’s reputation for excellent schooling, including nearby highly-rated primary and secondary schools. The property is described as “well-presented” but the photographs show an interior that appears dated, requiring significant modernization to appeal to contemporary tastes. The kitchen and some bathrooms display a clear need for updates. The exterior is well-maintained, with a modest garden. Although the property is located close to excellent schools and green spaces, there is a 3km distance to the nearest train station which may appeal to those who prefer a more secluded setting but require access to public transport. The absence of plot size data makes a definitive evaluation challenging, but based on comparable properties in Totteridge, the asking price seems neither overly inflated nor an exceptional bargain. Potential buyers should factor in substantial renovation costs into their budget.

Therefore, we give this property 6 / 10. *Disclaimer: This is our option and does constitute a recommendation or financial advice. Do your own research. *

Price
7
Condition
6
Location
8
Land
4
Bedrooms
6
Bathrooms
5
Sqft (est)
3,758.00

The heatmap indicates the level of crime in the area. The color of the heatmap indicates the crime severity and recency.

Metrics Year-on-Year

Average area value
1,077,389.00 £
Increased by 1.83 %
from 1,058,005.00 £
Est sale value
2,450,216.00 £
Increased by 8.49 %
from 2,258,558.00 £
Average area rental value
2,772.00 £/mo
Increased by 5.36 %
from 2,631.00 £/mo
Est letting value
3,758.00 £/mo
Unchanged by 0.00 %
from 3,758.00 £/mo
Est rental Yield
3.09 %
Increased by 3.69 %
from 2.98 %
Crime Rate
4.00 %
Unchanged by 0.00 %
from 4.00 %

Agent Activity

  • Real Estates created the listing.

Nearby Schools

NameTypeOfstedDistance
The Totteridge AcademyAcademy Sponsor LedGood0.36 KM
St Andrew'S Cofe Voluntary Aided Primary School, TotteridgeVoluntary Aided SchoolGood0.74 KM
Underhill SchoolCommunity SchoolRequires improvement1.25 KM
Underhill Infants School And Children'S CentreChildren's Centre1.32 KM
Grasvenor Avenue Infant SchoolAcademy ConverterGood1.41 KM

Images

1181118 (10).jpg 1181118 (17).jpg 1181118 (24).jpg 1181118 (4).jpg 1181118 (9).jpg 1181118 (3).jpg 1181118 (5).jpg 1181118 (15).jpg 1181118 (6).jpg 1181118 (8).jpg 1181118 (1).jpg 1181118 (16).jpg 1181118 (19).jpg 1181118 (11).jpg 1181118 (12).jpg 1181118 (2).jpg 1181118 (18).jpg 1181118 (7).jpg 1181118 (14).jpg 1181118 (20).jpg 1181118 (21).jpg 1181118 (22).jpg 1181118 (25).jpg

Nearby Streets

NameAverage PriceAverage SqftDistance
The Close £ 3,950,00000.00 KM
Hermes Close £ 000.00 KM
Finch Close £ 000.00 KM
Oyster Close £ 725,00000.00 KM
Underhill £ 325,00000.00 KM

Nearby Transport

NameNLCTLCDistance
New Barnet6018NBA3.29 KM
Oakleigh Park6020OKL3.72 KM
Hadley Wood6075HDW4.48 KM
Mill Hill Broadway1527MIL6.02 KM
New Southgate6019NSG6.72 KM

Nearby Listings

AddressPriceTypeScoreDistance
White Orchards, Totteridge £ 1,950,000BUY6 / 100.00 KM
White Orchards, Totteridge, N20 £ 1,850,000BUYUnknown0.02 KM
White Orchards, Totteridge £ 1,250,000BUY7 / 100.04 KM
White Orchards, Totteridge, London, N20 £ 1,850,000BUY7 / 100.06 KM
White Orchards, Totteridge, N20 £ 1,750,000BUY6 / 100.06 KM

Nearby Properties

AddressPriceDistance
Hideaway Point £ 2,745,0000.09 KM
Chestnut Cottage £ 855,0000.09 KM
Ashleigh £ 1,950,0000.09 KM
Waen Havon £ 1,850,0000.09 KM
Birchwood £ 1,735,0000.09 KM