Brabyns Road, Gee Cross
By On the Move Property Boutique
£ 285,000
Reviews
3 out of 5 stars
On the Move Property Boutique says ..
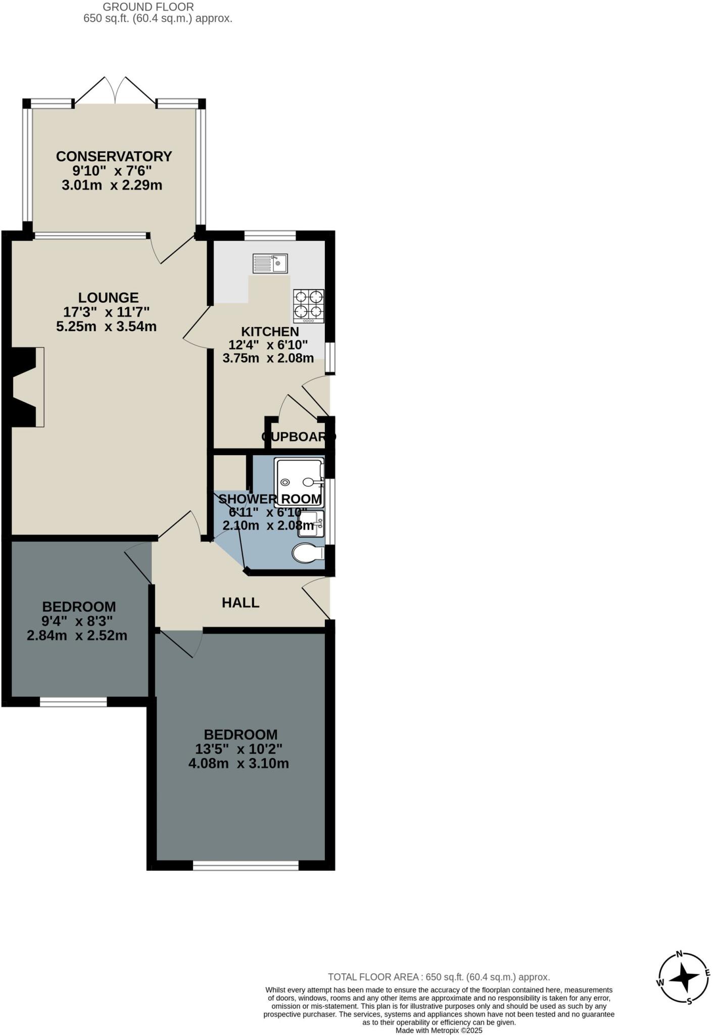
A traditional bungalow on the popular Brabyns Road of Gee Cross, close to the friendly village centre.
Property Oracle says ..
The property is a well-maintained semi-detached bungalow in a convenient location close to good schools and transport links. The modern kitchen and bathroom are desirable features, and the inclusion of a conservatory and garden add to its appeal. The asking price seems reasonable in comparison to similar properties in the area, although a lack of sqft data for those properties limits a precise comparison.
Therefore, we give this property 7 / 10. *Disclaimer: This is our option and does constitute a recommendation or financial advice. Do your own research. *
- Price
- 7
- Condition
- 8
- Location
- 8
- Land
- 6
- Bedrooms
- 2
- Bathrooms
- 1
- Lot (est)
- 650.00
The heatmap indicates the level of crime in the area. The color of the heatmap indicates the crime severity and recency.
Metrics Year-on-Year
- Average area value
- 349,167.00 £Increased by 12.91 %
- Average area rental value
- 1,000.00 £/moDecreased by 13.49 %
- Est rental Yield
- 3.44 %Decreased by 23.39 %
- Crime Rate
- 0.00 %
Agent Activity
On the Move Property Boutique created the listing.
Nearby Schools
| Name | Type | Ofsted | Distance |
|---|---|---|---|
| Gee Cross Holy Trinity Cofe (Vc) Primary School | Voluntary Controlled School | Good | 0.32 KM |
| Dowson Primary Academy | Academy Converter | Good | 0.54 KM |
| Alder Community High School | Community School | Good | 0.89 KM |
| Greenfield Primary Academy | Academy Sponsor Led | 1.04 KM | |
| Endeavour Primary Academy | Academy Converter | 1.14 KM |
Images
Nearby Streets
| Name | Average Price | Average Sqft | Distance |
|---|---|---|---|
| Hill Street | £ 0 | 0 | 0.00 KM |
| Queens Close | £ 210,000 | 0 | 0.00 KM |
| Nether Street | £ 0 | 0 | 0.00 KM |
| Queens Drive | £ 0 | 0 | 0.00 KM |
| Fern Bank Street | £ 300,000 | 0 | 0.00 KM |
Nearby Transport
| Name | NLC | TLC | Distance |
|---|---|---|---|
| Newton For Hyde | 2789 | NWN | 1.95 KM |
| Godley | 2948 | GDL | 2.10 KM |
| Hyde Central | 2829 | HYC | 2.32 KM |
| Flowery Field | 2786 | FLF | 2.89 KM |
| Woodley | 2835 | WLY | 2.92 KM |
Nearby Listings
| Address | Price | Type | Score | Distance |
|---|---|---|---|---|
| Brabyns Road, Gee Cross | £ 285,000 | BUY | 7 / 10 | 0.00 KM |
| The Cedar, Church Mead, Gee Cross | £ 439,500 | BUY | 8 / 10 | 0.00 KM |
| Mottram Old Road, Hyde, Greater Manchester, SK14 | £ 220,000 | BUY | 5 / 10 | 0.06 KM |
| Stockport Road, Gee Cross | £ 350,000 | BUY | 7 / 10 | 0.06 KM |
| The Hawthorn, Church Mead, Gee Cross | £ 399,950 | BUY | 7 / 10 | 0.09 KM |
Nearby Properties
| Address | Price | Distance |
|---|---|---|
| 23 Mottram Old Road | £ 130,000 | 0.11 KM |
| 16 Mottram Old Road | £ 100,000 | 0.11 KM |
| 18 Mottram Old Road | £ 105,000 | 0.11 KM |
| 14 Mottram Old Road | £ 130,000 | 0.11 KM |
| 5 Harrison Street | £ 59,950 | 0.12 KM |